EasyManua.ls Logo

Betafence Robusta - Gates opening to the right

Default Icon
21 pages
Print Icon
To Next Page IconTo Next Page
To Next Page IconTo Next Page
To Previous Page IconTo Previous Page
To Previous Page IconTo Previous Page
Loading...
Bekamatic
®
Industry
ed. April 2006 ENGLISH
5/21
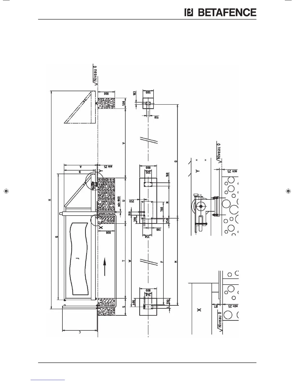
3.1 Gates opening to the right
60761BM IM Ind_ENG.indd 560761BM IM Ind_ENG.indd 5 08-05-2006 09:11:1308-05-2006 09:11:13

Other manuals for Betafence Robusta