EasyManua.ls Logo

BFT ALPHA BOM - Page 49

BFT ALPHA BOM
Print Icon
To Next Page IconTo Next Page
To Next Page IconTo Next Page
To Previous Page IconTo Previous Page
To Previous Page IconTo Previous Page
Loading...
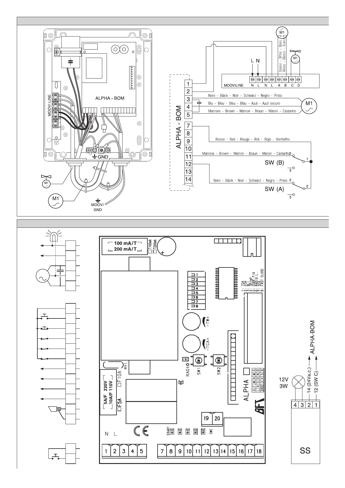
Fig. 16
Fig. 15
18
17
16
15
14
13
12
11
10
9
8
7
L
N
M
5
4
3
2
1
SW.C
NC
SW.O
NC
PHOT
NC
STOP
START/OPEN
NC
NA
0V
2CH
SCA
24V
~
ANTENNE
ANTENNE
ANTENA
ANTENNA
ANTENNE
ANTENNA
20
19
PED/CLOSE
JP1
JP2
JP3
MOOVI 30-50 - ALPHA BOM Ver. 05 - 49
D811471_05

Other manuals for BFT ALPHA BOM

Related product manuals