EasyManua.ls Logo

Bison HangTime - Page 3

Bison HangTime
18 pages
Print Icon
To Next Page IconTo Next Page
To Next Page IconTo Next Page
To Previous Page IconTo Previous Page
To Previous Page IconTo Previous Page
Loading...
3
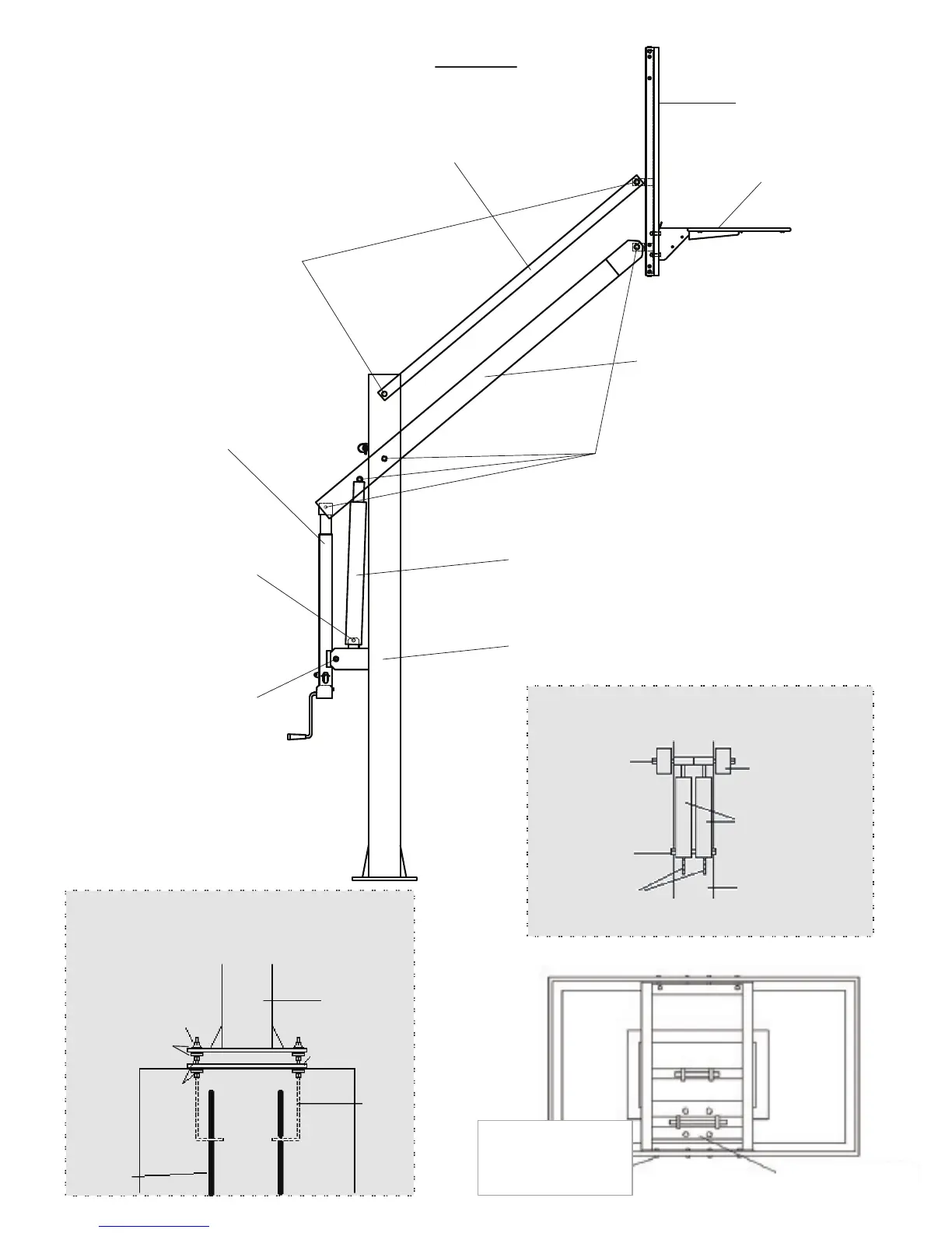
Figure A.2
Vertical Post (A) Mounted to Concrete Footing
5/8” J-Bolt
Flanged Hex
Nut With Built-In
Washer (BB)
5/8”
J-Bolt
Hex
Nuts
(L)
#4 Rebars
(M)
Concrete
Pier
5/8” Washers (Z)
Vertical
Post (A)
5/8”
Anchor
J-Bolts
(K)
Anchor Template
(N)
3/8" X 1 1/4" Hex Bolt (R)
3/8" Flat washer (S)
3/8" Lock washer (T)
3/8" Hex Nut (U)
Pre-Assembled
Backboard Assembly (D)
Figure A
3/4” x 11 1/4” Hex Bolt (O)
with 3/4” Lock Nut (Q)
5/8” x 8” Hex Bolt (I)
with 5/8” Lock Nut (J)
5/8” x 6” Hex Bolt (H)
with 5/8” Lock Nut (J)
3/4” x 12 1/2” Hex Bolt (P)
with 3/4” Lock Nut (Q)
3/4" X 12 1/2"
5/8" X 8"
Hex Bolt (P)
Main Extension
Arm (B)
Hex Bolt (I)
Rear View of Spring-Assist Cartridges Assembly
Spring-Assist
Vertical Post (A)
Welded Tabs
Cartridges (E)
Figure A.1 (E)
Crank Adjustment Cylinder (F)
Backboard Assembly (D)
Main Extension Arm (B)
Spring-Assist Cartridges (E)
Vertical Post (A)
Parallel Linkages (C)
Breakaway Rim (II)
REV. 10/10/17