EasyManua.ls Logo

Bitzer HSKC 64 - Page 23

Bitzer HSKC 64
44 pages
Print Icon
To Next Page IconTo Next Page
To Next Page IconTo Next Page
To Previous Page IconTo Previous Page
To Previous Page IconTo Previous Page
Loading...
23
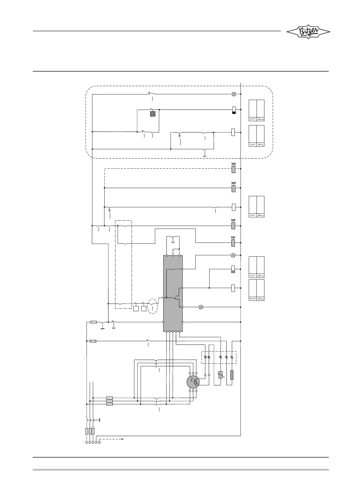
L1
L2
L3
N
PE
F1
1
0
Q1
F2
K1
9
K2
13
M1
1
2
3
M3
R3-8
T1
T2
7
8
9
F3
4A
S1
0 1
S2
schwarz/black
braun/brown
blau/blue
H1
L1
L2
L3
1
2
11
24
14
INT 389R
12
N
L
Z
B1
B2
S3
R2
R1
3
4
5
11
12
K1
9
F4
F5
F6
B2
K1
9
K2
13
K3T
10
P>
P<
H2
K1
K3T
Y6
Y7
K2
Y2
0.5 s
3/3/3/12/
13
6
13 5/5/5/12
Y3
N
17
K4T
F8
90 s
K4
8/17/17
19
K4
17
K4
17
K1
9
K4T
18
S4
H4
K4
17
Option
1 2 3 4 5 6 7 8 9 10 11 12 13 14 15 16 17 18 19
Nach einer Spannungsunterbrechung muß über Drucktaster S4 entriegelt werden.
After a tension breakage the button S4 must be used for dislocking.
Après une interruption de tension il faut deverrouiller par l'auxiliare de commande manuel S4.
K4
17
K1
9
Legende siehe Seite 21 For legend refer to page 21
Перечень обозначений см. на стр.21.
HSKC 64/74 (Option)
Motorschutz: INT 389R
HSKC 64/74 (Option)
Motor protection: INT 389R
HSKC 64/74 (Исполнение по запросу)
Защитное устройство INT 389R
После отключения (пропадания) электропитания необходимо для снятия блокировки нажать кнопку S4.
SH-150-2
www.holodim.ru (495) 921-4126

Related product manuals