EasyManua.ls Logo

Bitzer SE-C1 - CSH: Part Winding Start; 4-Step Capacity Control

Bitzer SE-C1
24 pages
Print Icon
To Next Page IconTo Next Page
To Next Page IconTo Next Page
To Previous Page IconTo Previous Page
To Previous Page IconTo Previous Page
Loading...
15
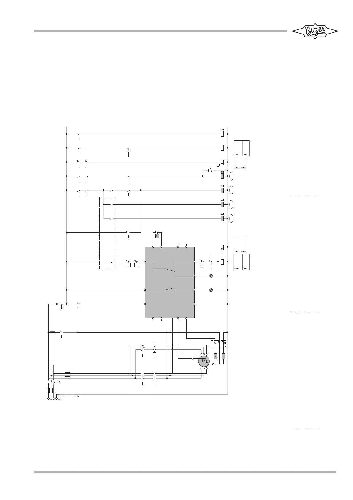
CSH: Teilwicklungsanlauf
4-stufige Leistungsregelung
CSH: Part winding start
4-step capacity control
CSH: Démarrage à bobinage partiel
Régulation de puissance à 4 etages
ST-121-2
1 2 3 4 5 6 7 8 9 1 0 1 1 1 2 1 3 1 4 1 5 1 6 1 7 1 8 1 9
K 1
1 0
K 2
1 8
Y 2
C R 3C R 2
C R 1
C R 4
U
K 5 T
1 7
4 / 4 / 4 / 1 5
1 5 / 1 6 / 1 7
3 1 / 3 2
1 2
1 6
1 0 s / 1 0 s
1
L 1
L 2
L 3
N
P E
F 1
1
0
Q 1
F 2
K 2
1 8
S 2
F 1 4
1 0
K 2
1 8
0 . 5 s
2 / 2 / 2 / 1 5
1 6 / 1 7 / 1 8
1 9 / 3 1 / 3 2
5 / 4 2
1 8
F 1 3
2
M 1
1
2
3
R 3 - 8
T 1
7
8
9
s c h w a r z / b l a c k / n o i r
b r a u n / b r o w n / m a r r o n
b l a u / b l u e / b l e u
R 2
M 3
T 2
M 3
H 2
F 5
B 2
P >
S E - C 1
N
L
L 3
L 2
L 1
1
2
2 1
7
4
3
F 1 4
4
1 1
2 4
1 2 1 4
K 3 T
K 1
1 0
F 1 3
1 0
H 1
F 6
P <
K 2
1 8
Y 1 Y 3 Y 4
K 1 K 2
K 5 T
K 1
1 0
K 2
1 8
K 1
1 0
K 1
1 0
K 3 T
1 1
K 1
1 0
K 2
1 8
8
5
6
0 1
S 1
F 3
4 AF 4
K 1
1 0
R 1
5
1 1
1 2
Y 5
F 8
Relais batteur adjustable 10 s / 10 s,
voir aussi manuel SH-170.
Options:
fonctionnement ECO, injection de liquide et
contrôle de niveau d’huile
schémas de principe (chemins 31 à 44) voir
aussi SH-170.
Adjustable time pulse relay 10 s / 10 s,
see also Applications Manual SH-170.
Options:
ECO operation, liquid injection and oil
level switch.
Schematic wiring diagrams of the options
(pathes 31 to 44) see also SH-170.
Einstellbares Zeittakt-Relais 10 s / 10 s,
siehe auch Handbuch SH-170.
Optionen:
ECO-Betrieb, Kältemittel-Einspritzung und
Ölniveau-Überwachung.
Prinzipschaltbilder der Optionen (Pfade 31
bis 44) siehe ebenfalls SH-170.

Related product manuals