EasyManua.ls Logo

Bitzer SE-C2 - Page 19

Bitzer SE-C2
24 pages
Print Icon
To Next Page IconTo Next Page
To Next Page IconTo Next Page
To Previous Page IconTo Previous Page
To Previous Page IconTo Previous Page
Loading...
19
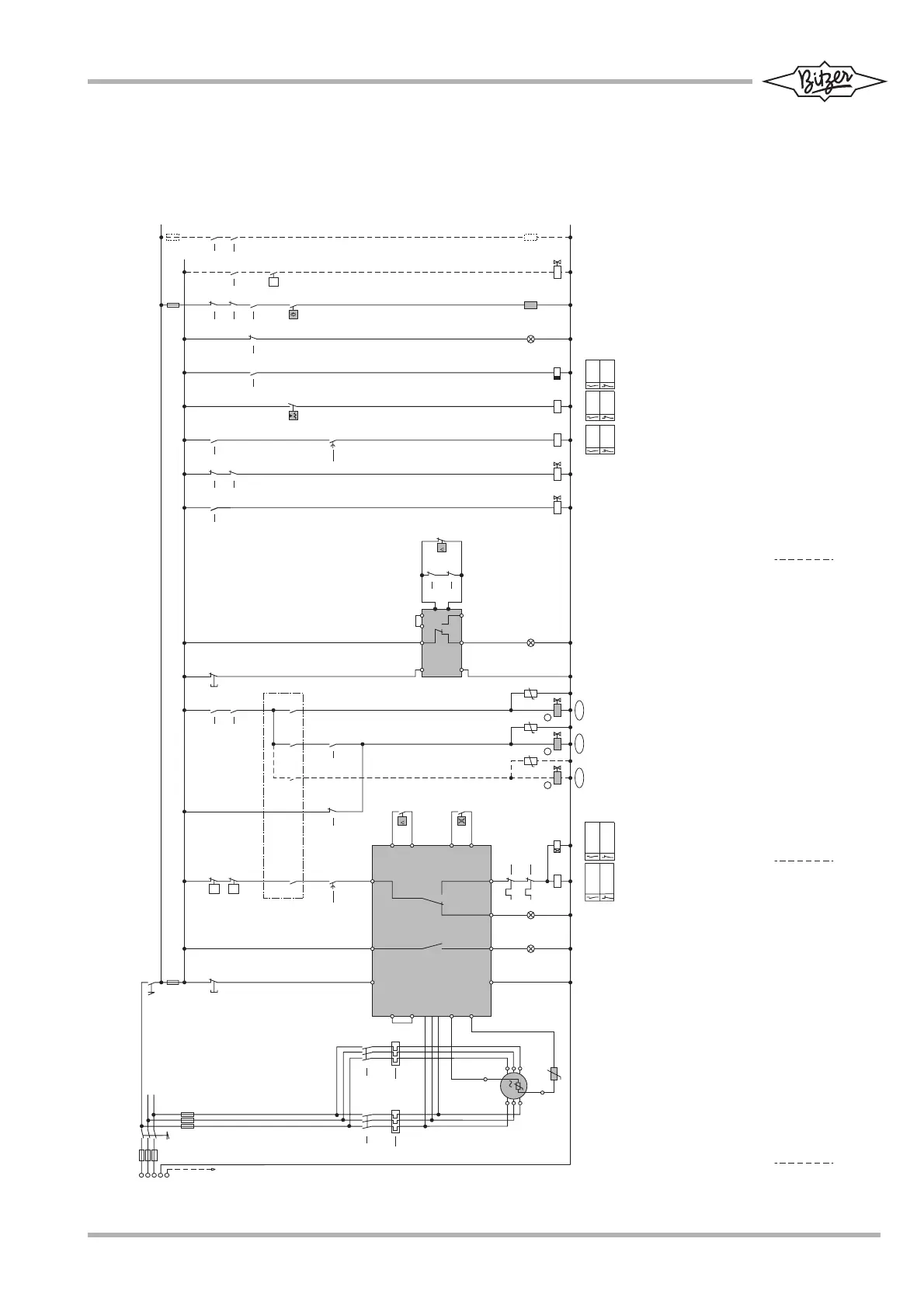
HS.85: Teilwicklungsanlauf
Stufenlose Leistungsregelung
HS.85: Part winding start
Infinite capacity control
HS.85: Démarrage à bobinage partiel
Régulation de puissance en continu
ST-121-2
1 2 3 4 5 6 7 8 9 1 0 1 1 1 2 1 3 1 4 1 5 1 6 1 7 1 8 1 9 2 0 2 1 2 2 2 3 2 4 2 5 2 6 2 7 2 8
K 1
9
K 2
2 2
Y 6
C R 3C R 2
C R 4
1 2 0 s
9
2 4 / 2 6
2 5
O p t i o n
L 1
L 2
L 3
N
P E
F 1
1
0
Q 1
F 2
K 2
2 2
S 2
F 1 4
9
K 2
2 2
0 . 5 s
2 / 2 / 2 / 1 4
2 0 / 2 2 / 2 8
1 8 / 2 1 / 2 6
2 2
F 1 3
2
M 1
1
2
3
R 3 - 8
T 1
7
8
9
s c h w a r z / b l a c k / n o i r
b r a u n / b r o w n / m a r r o n
b l a u / b l u e / b l e u
R 2
M 3
T 2
M 3
H 2
0 1
F 3
F 5
B 2
P >
S E - C 2
N
L
L 3
L 2
L 1
1
2
2 1
7
F 1 4
4
S 1
1 1
2 4
1 2 1 4
K 3 T
K 1
9
F 1 3
9
H 1
F 6
P <
Y 5 Y 7 Y 2 Y 3
K 1 K 2
K 4 T
K 4
Y 8
H 4
K 1
9
K 1
9
K 4 T
2 4
K 3 T
1 0
K 1
9
K 2
2 2
F 8
1
2
R 1 R 9
K 4
2 3
K 4
2 3
K 4
2 3
K 1
9
K 2
2 2
B 1
K 1
9
K 2
2 2
K 2
2 2
F 1 2
P <
F 4 F 2 1
O p t i o n
8
5
6
F 9
p
1
11
UUU
L i m i t
C R 5 0 %
L i m i t
C R 2 5 %
K 2
2 2
F 7
4
3
S 4
H 5
S E - B 2
N
L
1 2
1 4
1 1 B 1 B 2
1
2
F 1 0
p
K 1
9
K 2
2 2
4 / 4 / 4 / 1 3
1 4 / 2 7 / 2 8
1 1 / 1 8 / 2 1
2 6
Temps d'impulsion environ 0,5 s .. max. 1 s,
dépendant de la caractèristique de l'installation,
voir aussi manuel de mise en œuvre SH-110.
Option pour fonctionnement ECO (chemin 27)
Option: élément de chauffage pour boîte de
raccordement (chemin 28)
Pulsing time approx. 0.5 s .. max. 1 s,
depending on characteristic of the plant,
see also Applications Manual SH-110.
Option for ECO operation (path 27)
Optional heating element for terminal box
(path 28)
Impulszeit ca. 0,5 s .. max. 1 s,
abhängig von Anlagen-Charakteristik,
siehe auch Handbuch SH-110.
Option für ECO-Betrieb (Pfad 27)
Optionales Heizelement für Anschluss-
kasten (Pfad 28)

Related product manuals