EasyManua.ls Logo

Bitzer SE-C2 - Page 20

Bitzer SE-C2
24 pages
Print Icon
To Next Page IconTo Next Page
To Next Page IconTo Next Page
To Previous Page IconTo Previous Page
To Previous Page IconTo Previous Page
Loading...
20
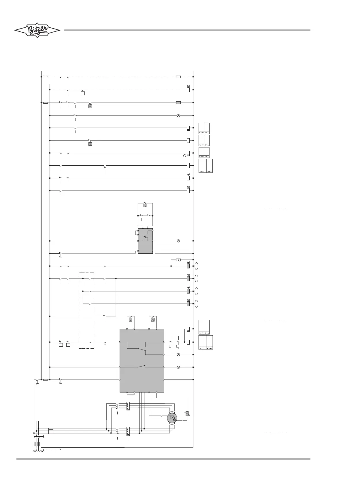
HS.85: Part winding start
4-step capacity control*
HS.85: Démarrage à bobinage partiel
Régulation de puissance à 4 etages*
HS.85: Teilwicklungsanlauf
4-stufige Leistungsregelung*
ST-121-2
F 7
1 2 3 4 5 6 7 8 9 1 0 1 1 1 2 1 3 1 4 1 5 1 6 1 7 1 8 1 9 2 0 2 1 2 2 2 3 2 4 2 5 2 6 2 7 2 8 2 9 3 0
K 1
9
K 2
2 3
Y 5
C R 3C R 2
C R 1
C R 4
U
K 5 T
2 4
4 / 4 / 4 / 1 4
1 4 / 1 5 / 2 4
2 9 / 3 0
1 1 / 1 9 / 2 2
2 8
1 5
1 0 s / 1 0 s
1
1 2 0 s
9
2 6 / 2 8
2 7
O p t i o n
L 1
L 2
L 3
N
P E
F 1
1
0
Q 1
F 2
K 2
2 3
S 2
F 1 4
9
K 2
2 3
0 . 5 s
2 / 2 / 2 / 1 4
1 5 / 2 1 / 2 3
2 4 / 3 0
1 9 / 2 2 / 2 8
2 3
F 1 3
2
M 1
1
2
3
R 3 - 8
T 1
7
8
9
s c h w a r z / b l a c k / n o i r
b r a u n / b r o w n / m a r r o n
b l a u / b l u e / b l e u
R 2
M 3
T 2
M 3
H 2
0 1
F 3
F 5
B 2
P >
K 4 T
2 6
S E - C 2
N
L
L 3
L 2
L 1
1
2
2 1
7
4
3
F 1 4
4
S 1
1 1
2 4
1 2 1 4
K 3 T
K 1
9
F 1 3
9
H 1
F 6
P <
K 2
2 3
Y 4 Y 6 Y 7 Y 2 Y 3
K 1 K 2
K 5 T K 4 T
K 4
Y 8
H 4
K 1
9
K 2
2 3
K 1
9
K 1
9
K 1
9
K 2
2 3
K 3 T
1 0
K 1
9
K 2
2 3
F 8
1
2
R 1 R 9
K 4
2 5
K 4
2 5
K 4
2 5
K 1
9
K 2
2 3
B 1
K 1
9
K 2
2 3
K 2
2 3
F 1 2
P <
F 4 F 2 1
O p t i o n
8
5
6
F 9
p
L i m i t
C R 5 0 %
L i m i t
C R 2 5 %
S 4
H 5
S E - B 2
N
L
1 2
1 4
1 1 B 1 B 2
1
2
F 1 0
p
K 1
9
K 2
2 3
Relais batteur adjustable 10 s / 10 s,
voir aussi manuel de mise en œuvre SH-110.
Option pour fonctionnement ECO (chemin 29)
Option: élément de chauffage pour boîte de
raccordement optionel (chemin 30)
* Dépendant des conditions de fonctionnement,
limitation à minimum CR50% (voir SH-110).
Adjustable time pulse relay 10 s / 10 s,
see also Applications Manual SH-110.
Option for ECO operation (path 29)
Optional heating element for terminal box
(path 30)
* Depending on operating conditions limit to
minimum CR50% (siehe SH-110).
Einstellbares Zeittakt-Relais 10 s / 10 s,
siehe auch Handbuch SH-110.
Option für ECO-Betrieb (Pfad 29)
Optionales Heizelement für Anschluss-
kasten (Pfad 30)
* Je nach Einsatzbedingungen Begrenzung
auf minimal CR50% (siehe SH-110).

Related product manuals