EasyManua.ls Logo

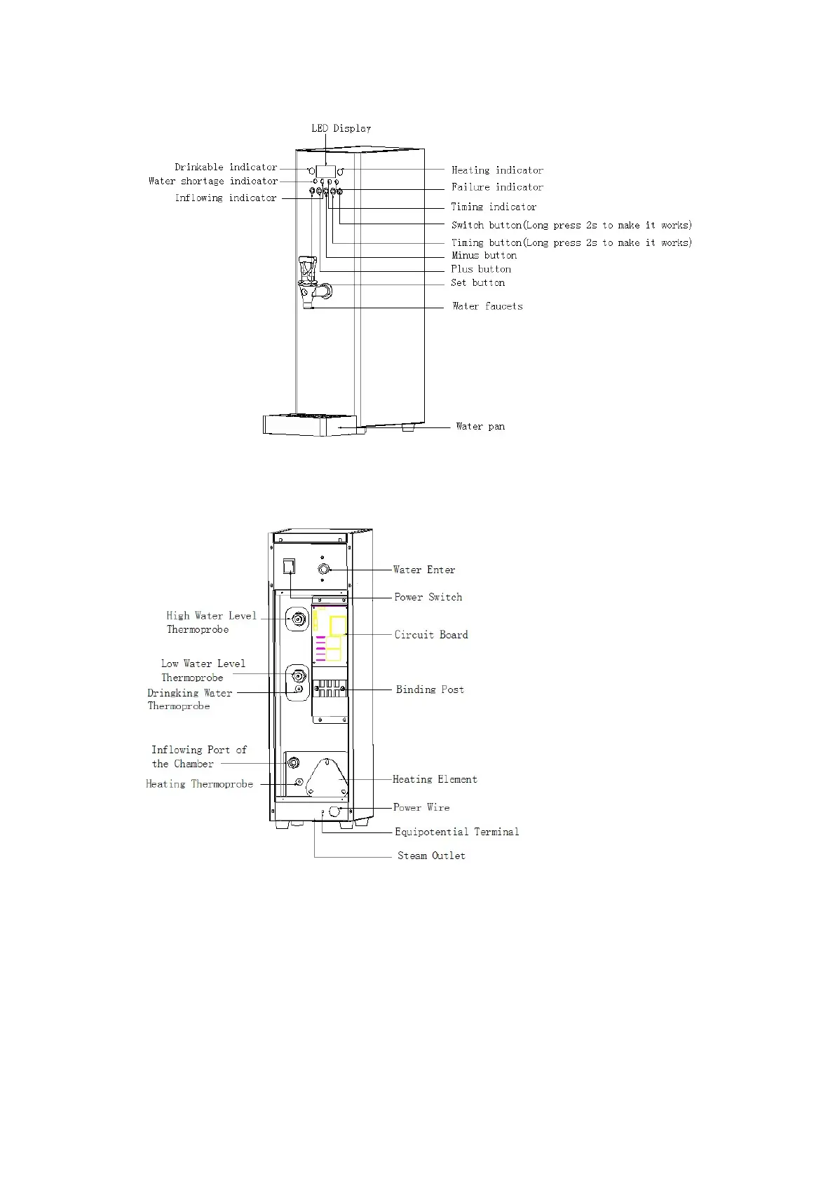
Blizzard AF10 - Working Principle; Heating Technology and System Components

Blizzard AF10
12 pages
Print Icon
To Next Page IconTo Next Page
To Next Page IconTo Next Page
To Previous Page IconTo Previous Page
To Previous Page IconTo Previous Page
Loading...
.Working principle