EasyManua.ls Logo

Blue Seal Evolution GT46 - Page 22

Blue Seal Evolution GT46
30 pages
Print Icon
To Next Page IconTo Next Page
To Next Page IconTo Next Page
To Previous Page IconTo Previous Page
To Previous Page IconTo Previous Page
Loading...
20
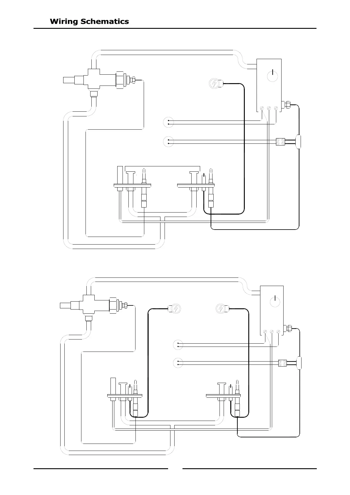
GT45 Fryer - Single Tank
TP TH
THERMOSTAT
OVER TEMP
TH
TP
IGNITION
THERMOPILE
L.H. PILOT
T/C
R.H. PILOT
CROSS LIGHTING
DO NOT SCALE - IF IN DOUBT ASK
CHANGEREV DATE BY
NOTES DATE
SCALE
LIMITED
CHKDDRAWN
TOLERANCE ±
TITLE
USED ON
FINISH MATERIAL
CHANGE No.
REV No. DWG No.
MAT No
1ST ANGLE PROJ.DATE
2286981CONNECTION DIAGRAM
29/09/2005
BR
GT450.5mm
NATURAL -
-
1:1
.
-
.
.
.
.
1 - 29/9/2005 BR
T/C
FLAME FAILURE VALVE
SIT M1/A
MAIN GAS
CONTROL
SIT NOVA 820mV
GT60 Fryer - Single Tank
THERMOPILE
IGNITION
TP
TH
OVER TEMP
THERMOSTAT
THTP
MAIN GAS
CONTROL
SIT NOVA 820mV
FLAME FAILURE VALVE
SIT M1/A
T/C
DO NOT SCALE - IF IN DOUBT ASK
CHANGEREV DATE BY
NOTES DATE
SCALE
LIMITED
CHKDDRAWN
TOLERANCE ±
TITLE
USED ON
FINISH MATERIAL
CHANGE No.
REV No. DWG No.
MAT No
1ST ANGLE PROJ.DATE
2286971CONNECTION DIAGRAM
29/09/2005
BR
GT60 FN8130G0.5mm
NATURAL -
-
1:1
.
-
.
.
.
.
1 - 29/9/2005 BR
IGNITION
R.H. PILOT
T/C
L.H. PILOT

Related product manuals