EasyManua.ls Logo

BlueStar BSDF30 - Page 18

BlueStar BSDF30
48 pages
Print Icon
To Next Page IconTo Next Page
To Next Page IconTo Next Page
To Previous Page IconTo Previous Page
To Previous Page IconTo Previous Page
Loading...
18 (800) 449-8691
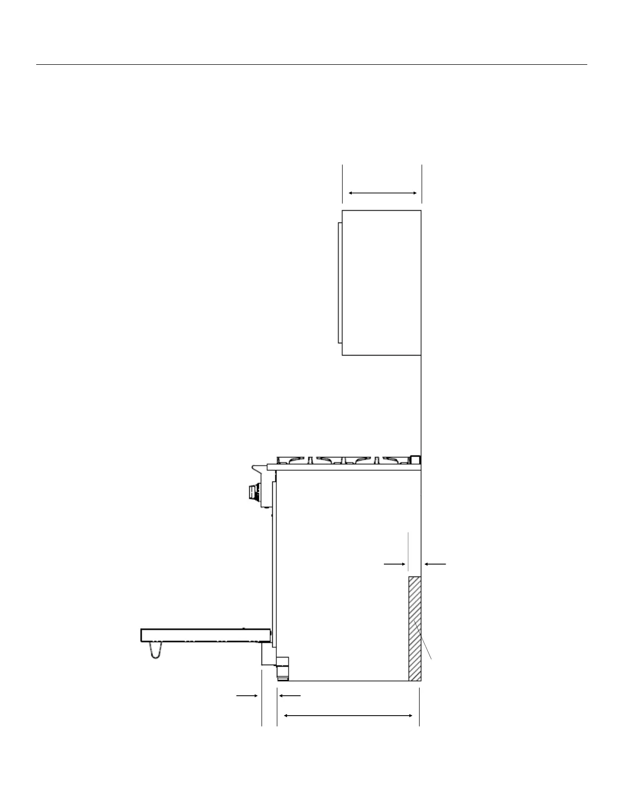
Site Preparation — Cabinet Dimensions (continued)
Side View
2 3/8”
(60.3 mm)
13”
(330.2 mm)
Gas and Electric
Connection Area
24” (609.6 mm)
Standard Cabinet Depth
2” (50.8 mm)
Maximum

Related product manuals