EasyManua.ls Logo

BMW E46 Convertible 2000 - Page 27

BMW E46 Convertible 2000
48 pages
Print Icon
To Next Page IconTo Next Page
To Next Page IconTo Next Page
To Previous Page IconTo Previous Page
To Previous Page IconTo Previous Page
Loading...
27
E46iCCVM/ST039/3/21/00
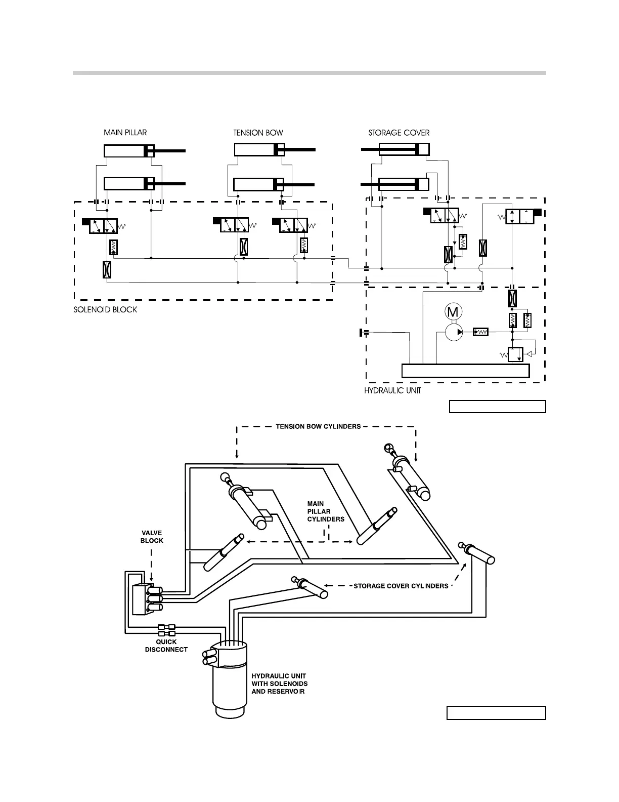
Hydraulic System Operation
ART-E46ICCVM.EPS
ART-E46IC E HYD.EPS

Related product manuals