EasyManua.ls Logo

Bompani BO06865E - Componenti Dell Elettrodomestico Escomparti

Bompani BO06865E
Print Icon
To Next Page IconTo Next Page
To Next Page IconTo Next Page
To Previous Page IconTo Previous Page
To Previous Page IconTo Previous Page
Loading...
IT - 16 -
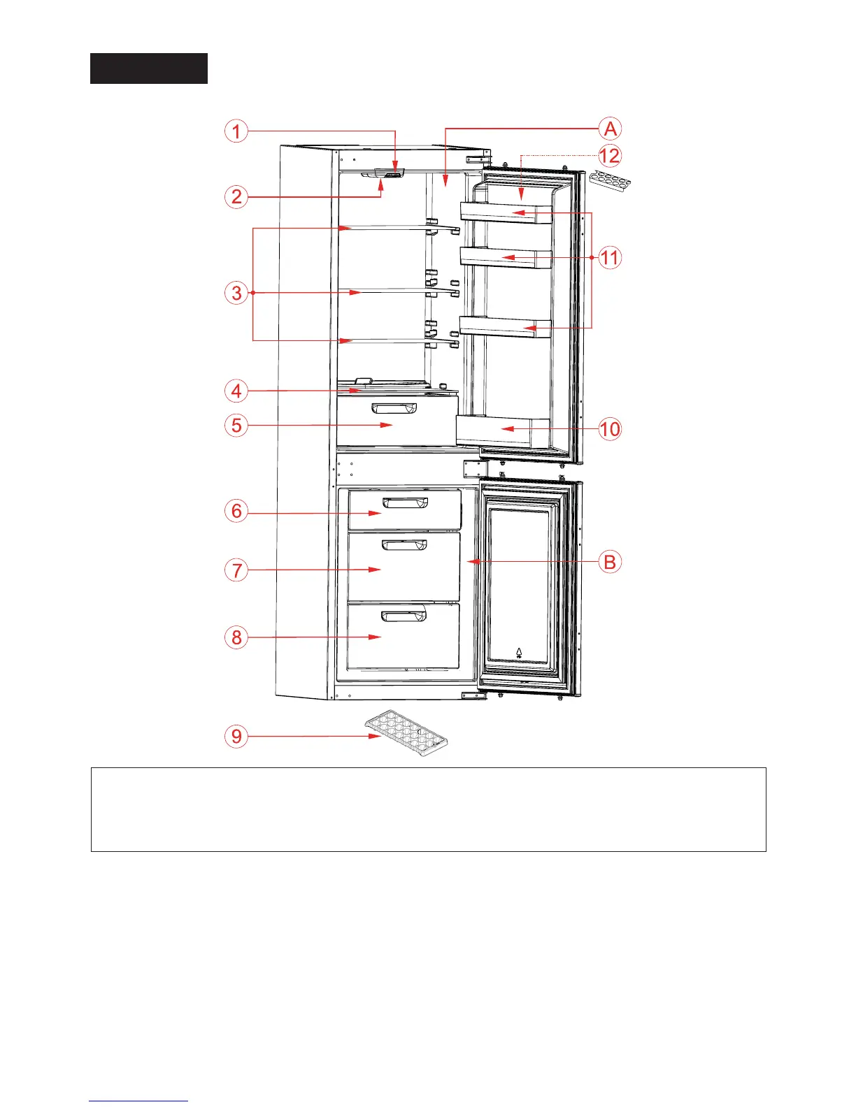
Lo scopo di questa presentazione è informare l’acquirente delle parti che
compongono l'elettrodomestico.
Le componenti possono variare a seconda del modello del dispositivo
COMPONENTI DELL ELETTRODOMESTICO E
SCOMPARTI
PARTE - 7.
A) Vano del frigorifero
A) Vano del freezer
1) Manopola del termostato
2) Copertura lampadina frigorifero
3) Ripiani frigorifero
4) Ripiano del cassetto verdura
5) Vano verdure
6) Coperchio zona congelatore
7) Cassetto scomparto congelatore
8) Cassetto interiore scomparto congelatore
9) Vaschetta ghiaccio
10) Ripiano bottiglie
11) Ripiani porta
12) Contenitore uova

Related product manuals