EasyManua.ls Logo

BONFIGLIOLI Active ACT 401-22 - Frequency Inverter (0.55 to 4.0 Kw)

BONFIGLIOLI Active ACT 401-22
56 pages
Print Icon
To Next Page IconTo Next Page
To Next Page IconTo Next Page
To Previous Page IconTo Previous Page
To Previous Page IconTo Previous Page
Loading...
06/0516
16 06/05
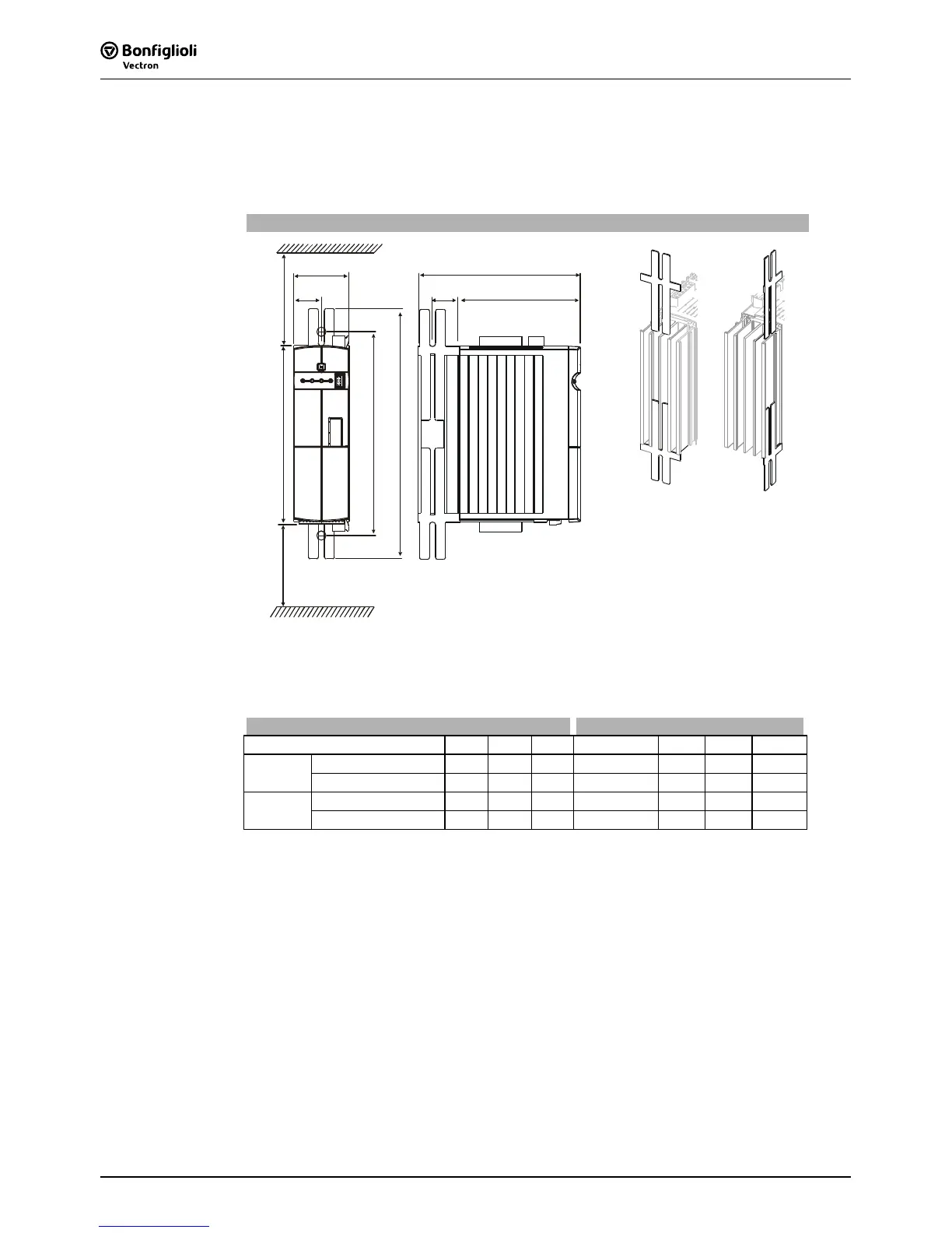
4.1 Frequency Inverter (0.55 to 4.0 kW)
The frequency inverter is mounted in a vertical position on the assembly panel by
means of the standard fittings.
The following illustration shows the different mounting possibilities.
Standard installation
b
b1
a1
a a2
c
c1
x
x
x 100 mm
b1
Assembly is effected by inserting the long side of the fixing plate in the heat sink and
screwing it to the mounting plate.
The dimensions of the device and the installation dimensions are those of the
standard device without optional components and are given in millimeters.
Dimensions in mm Installation dimensions in mm
Frequency inverter
a b c a1 a2 b1 c1
0.55 kW ... 1.1 kW
190 60 175 210 ... 230 255 30 130
ACT 201
1.5 kW ... 3.0 kW
250 60 175 270 ... 290 315 30 130
0.55 kW ... 1.5 kW
190 60 175 210 ... 230 255 30 130
ACT 401
1.85 kW ... 4.0 kW
250 60 175 270 ... 290 315 30 130

Table of Contents

Related product manuals