EasyManua.ls Logo

Bosch 6806 - Diagram 10: Wiring Diagram

Bosch 6806
87 pages
Print Icon
To Next Page IconTo Next Page
To Next Page IconTo Next Page
To Previous Page IconTo Previous Page
To Previous Page IconTo Previous Page
Loading...
H
79
1
1
1 1 1
1
1
M
1
M
1
M
1
X1
X2
l4
76 321
1
34
56
2
e0
12.7-1
f2-f4
12.6-1/2 12.5 12.9 12.8
A1
12.2 12.4 12.4-1 12.7-2 12.4-2
185˚F
A2
12 87 3
NTC
4
2
1
1
4
4
e3
e5
F
N
L1
a1
Control Unit
m2
m3
e6
s2
f1
f5
r1
12.1-1
12.1-2
12.1-3
dependent on equipment
1
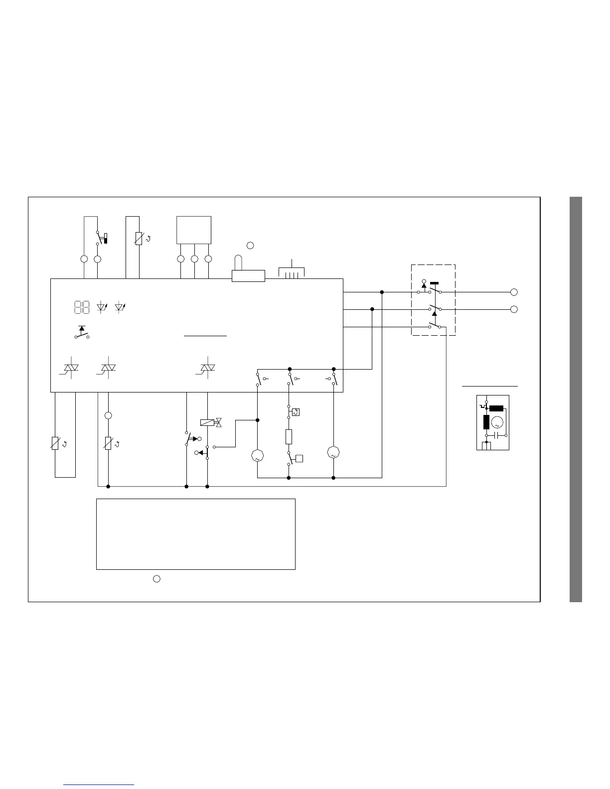
Symbol Key
a1 ON/OFF SWITCH
e0 DOOR SWITCH
A1 ACTUATOR (Upper Basket)
A2 ACTUATOR (Dispenser)
e6 FLOAT SWITCH
e5 FLOW SWITCH
e3 REED SWITCH
f1 WATER LEVEL SWITCH
Symbol Key
f5 HIGH LIMIT 185˚F
m2 CIRCULATION MOTOR
m3 DRAIN MOTOR
NTC TEMPERATURE SENSOR
r1 HEATING ELEMENT
s2 WATER SOLENOID
X2 SERVICE CONNECTOR
l4 AQUA SENSOR
X1 JUMPER
L
permanent split
capacitor motor
N
Diagram 8

Table of Contents

Related product manuals