EasyManua.ls Logo

Bosch BGH96M080B3A - Wiring Diagram; Furnace Wiring Schematic

Bosch BGH96M080B3A
56 pages
Print Icon
To Next Page IconTo Next Page
To Next Page IconTo Next Page
To Previous Page IconTo Previous Page
To Previous Page IconTo Previous Page
Loading...
Installation, Operation & Maintenance Manual Bosch 96% AFUE Gas Furnace | 55
Bosch Thermotechnology Corp. | 04.2019
Data subject to change
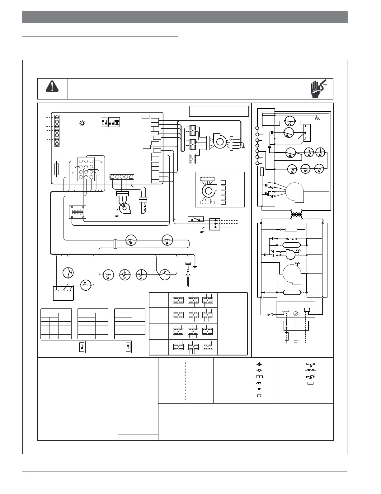
17 Wiring Diagram
Figure 42
-81&7,21
-8 1 &7, 2 1
7(50,1$/
7( 5 0,1 $ /
3/8*&211(&7,21
3/ 8 *&21 1 (& 7 ,21
(48,30(17*1'
(4 8 ,30 ( 17* 1 '
),(/'*1'
), ( /'*1 '
),(/'63/,&(
), ( /'63 / ,& (
6:,7&+7(03
6: , 7&+ 7 (0 3
,*1,7(5
,* 1 ,7( 5
6:,7&+35(66
6: , 7&+ 3 5( 6 6
29(5&855(17
29 ( 5&8 5 5( 1 7
3527'(9,&(
35 2 7'( 9 ,& (
</< ( //2 :
</< ( //2 :
252 5 $1* (
252 5 $1* (
383 8 53/ (
383 8 53/ (
*5* 5 ((1
*5* 5 ((1
%.% / $&.
%.% / $&.
%5% 5 2:1
%5% 5 2:1
:+: + ,7(
:+: + ,7(
%/% / 8(
%/% / 8(
*<* 5 $<
*<* 5 $<
5'5 ( '
5'5 ( '
:LULQJLVVXEMHFWWRFKDQJH$OZD\VUHIHUWRWKHZLULQJGLRJUDPRQWKHXQLWIRUWKHPRVWXSWRGDWHVFKHPDWLF
:LULQJLVVXEMHFWWRFKDQJ H $ O Z D \ VU H I H UW RW K HZ L U L Q JG L R J U D PR QW K HX Q L WI R UW K HP R V WX S W RGDWHVFKHPDWLF
:$51,1*
:$51,1*
+LJK9ROWDJH
+LJK9ROWDJH
'LVFRQQHFHWDOOSRZHUEHIRUHVHUYLFLQJRULQVWDOOLQJWKLVXQLW0XOWLSOHSRZHUVRXUFHV
'LVFRQQHFHWDOOSRZHUEH I R U HV H U Y L F L Q JR UL Q V W D O O L Q JW K L VX Q L W 0 X O W L S O HS R Z H UV R XUFHV
PD\EHSUHVHQW)DLOXUHWRGRVRPD\FDXVHSURSHUW\GDPDJHSHUVRQDOLQMXU\RUGHDWK
PD\EHSUHVHQW)DLOXUHWRG RV RP D \F D X V HS U R S H U W \G D P D J H S H U V R Q D OL Q M X U \ R UG H D W K
127(
6( 7+ ($7$1 7 , &,3$ 7 2 521522 07 +(50 2 6 7$7$7 $ 036
0$ 1 8)$& 7 8 5(5 66 3 (&,) , ('5(3 / $ &(0( 1 73 $5760 8 67%(86 ( ': +(16(59,&,1*
,)$ 1 <2)7+(2 5 , *,1$ /: , 5($668 3 3/,( ': , 7+7+() 8 5 1$&(0 8 67%(5( 3 / $&(' , 7
086 7% (5(3/ $ & (':,7 +: , 5,1*0 $ 7(5, $ /+ $9,1 *$7 ( 03(5 $ 785(5 $ 7 ,1*2)$ 7/ ( $67
 ć 86(&2 3 3 (5&21 ' 8 &725 62 1/<
%/ 2 :(563 ( ( '66+2 8 / '%($'- 8 67('% <, 1 67$/ / ( 5720$7 & +7+(,167$//$7,21
5(4 8 ,5(0 ( 1 7662$67 23 5 29,' (7 +(&25 5 ( &7&22 / , 1*&)0  6((63 ( &6 +((7) 2 5
$,5) / 2:&+$ 5 7
81 , 70867% (3 ( 50$1 ( 1 7/<*5 2 81'( '$ 1 '&21) 2 5 0721(& $1'/2&$/&2'(6
9&
5('/('
5('/('
)ODVK )ODPHVHQVHGZLWKJDVYDOYHRII
)ODVK )ODPHVHQVHGZLWKJDVYDOYHRII
)ODVK 3UHVVXUHVZLWFKFORVHGZLWKLQGXFHURII
)ODVK 3UHVVXUHVZLWFKFORVHGZLWKLQGXFHURII
)ODVK VWVWDJHSUHVVXUHVZLWFKRSHQZLWKLQGXFHURQ
)ODVK VWVWDJHSUHVVXUHVZLWFKRSHQZLWKLQGXFHURQ
)ODVK /LPLW5ROORXWVZLWFKRSHQ
)ODVK /LPLW5ROORXWVZLWFKRSHQ
)ODVK /LPLW5ROORXWVZLWFKRSHQPRUHWKDQPLQXWHV
)ODVK /LPLW5ROORXWVZLWFKRSHQPRUHWKDQPLQXWHV
)ODVK 3UHVVXUHVZLWFKF\FOHORFNRXW
)ODVK 3UHVVXUHVZLWFKF\FOHORFNRXW
)ODVK /RFNRXWGXHWRIDLOHGLJQLWLRQ
)ODVK /RFNRXWGXHWRIDLOHGLJQLWLRQ
)ODVK /RFNRXWGXHWRWRRPDQ\IODPHGURSRXWV
)ODVK /RFNRXWGXHWRWRRPDQ\IODPHGURSRXWV
)ODVK ,QFRUUHFWOLQHYROWDJHSRODULW\
)ODVK ,QFRUUHFWOLQHYROWDJHSRODULW\
)ODVK *DVYDOYHIDXOWFRGH
)ODVK *DVYDOYHIDXOWFRGH
)ODVK /LPLW5ROORXWVZLWFKRSHQIURPWRPLQXWHV
)ODVK /LPLW5ROORXWVZLWFKRSHQIURPWRPLQXWHV
)ODVK QGVWDJHSUHVVXUHVZLWFKRSHQZLWKKLJKLQGXFHURQ
)ODVK QGVWDJHSUHVVXUHVZLWFKRSHQZLWKKLJKLQGXFHURQ
6ROLG &RQWUROIDLOXUH
6ROLG &RQWUROIDLOXUH
$0%(5/('
$0%(5/('
)ODVK &DOOIRUKHDWDFWLYH
)ODVK &DOOIRUKHDWDFWLYH
)ODVK <WKHUPRVWDWGHPDQGZLWKRXWD*
)ODVK <WKHUPRVWDWGHPDQGZLWKRXWD*
5DSLG /RZIODPHFXUUHQW
5DSLG /RZIODPHFXUUHQW
*5((1/('
*5((1/('
)ODVK 6WDQGE\PRGH
)ODVK 6WDQGE\PRGH
5DSLG &RQWUROLQ)DFWRU\7HVWPRGH
5DSLG &RQWUROLQ)DFWRU\7HVWPRGH
;)05
;) 0 5
*1'
*1 '
09&
09 &
09+
09 +
*1'
*1 '
36
36
09/
09 /
36
36
+/,
+/ ,
72
72
0,&52
0, & 5 2
;)05+
;) 0 5+
)3
)3
,*1
,* 1
,1'
,1 '
/,1(+
/, 1 (+
'225
'2 2 5
6:,7&+
6: , 7&+
-81&7,21%2;
-8 1 &7, 2 1%2 ;
*1'
*1 '
/
1
',6&211(&7
', 6 & 211 ( &7
/,1(1
/, 1 (1
&,51
&, 5 1
,1'1
,1 ' 1
,*11
,* 1 1
;)051
;) 0 51
)86(
)8 6 (
+80,',),(5
+8 0 ,', ) ,( 5
,17(*5$7('
,1 7 ( *5$ 7 ('
&21752/02'8/(
&2 1 7 52/0 2 '8/ (
*$6
*$ 6
9$/9(
9$ / 9(
6767$*(35(6685(6:,7&+
6 76 7$* (3 5( 6 685 (6:, 7 &+
35,0$5</,0,7
35 , 0$5 </ ,0 , 7
&21752/
&2 1 752 /
52//287/,0,7
52 / /28 7/ ,0 , 7
&21752/6
&2 1 752 / 6
9$&
9 $ &
75$16)250(5
75 $ 16) 2 50 ( 5
&
*
<
<
:
:
5
)/$0(6(1625
)/ $ 0(6( 1 62 5
+27685)$&(
+2 76 85) $ &(
,*1,7(5
,* 1 ,7( 5
,'
,'
%/:5
%/ : 5
&,5&8/$725
&, 5 &8/ $ 72 5
%/2:5
%/ 2 :5
:$51,1*
:$ 5 1 ,1*
',6&211(&732:(5
', 6 & 211 ( &732 : ( 5
%()256(59,&,1*
%( ) 2 56(5 9 ,&, 1 *
:,5,1*7281,70867
:, 5 , 1*728 1 ,708 6 7
%(3523(5/<32/$5,=('
%(3 5 2 3(5 / <32/ $ 5 ,= ( '
$1'*5281'('
$1 '* 5 281 ' ('
72 9$&  +]32 : ( 568 3 3 /<:, 7 +29( 5 &85 5 ( 17
72 9$&  +]32 : ( 568 3 3 /<:, 7 +29( 5 & 85 5 ( 17
3527(&7,21'(9,&(
35 2 7 (&7 , 21'( 9 , &(
97+(50267$7&211(&7,216
97 + (50 2 67$ 7& 2 11 ( & 7,2 1 6
,17(*5$7('&21752/02'8/(
,1 7 ( *5$ 7 ('&2 1 7 52 /0 2 '8/ (
,17(*5$7('&21752/02'8/(
,1 7 ( *5$ 7 ('&2 1 7 52 /0 2 '8/ (
+80+
+8 0 +
+801
+8 0 1
($&1
($ & 1
($&+
($ & +
($&
($ &
(/(&7521,&$,5&/($1(5
(/ (& 7 5 2 1 , &$ , 5& / ( $ 1 ( 5
+/2
+/ 2
&
12
12
&
1&
1&
1(875$/
1( 8 75$ /
&,5+
&, 5 +
&,5&8/$725
&, 5 &8/ $ 72 5
%/2:5
%/ 2 :5
+,&
+,&
/2&
/2&
5(9(56()/2:
5( 9 (56 () /2 :
/,0,76&21752/6
/, 0 ,76& 2 17 5 2/6
<
<
:
:
&,&8/$725%/2:(5
&, & 8/ $ 725% /2: (5
*
5
::
: :
<<
< <
',$*1267,&
', $ *1 2 67, &
/( '
/( '
:$51,1*
:$ 51 ,1 *
',6&211(&732:(5%()25(
6(59,&,1*:,5,1*7281,70867%(
3523(5/<32/$5,=('$1'*5281'('



,17(*5$7('
,1 7( * 5$ 7( '
&21752/02'8/(
&2 17 5 2/0 2' 8 /(
'2256:,7&+
'2 2 56: , 7&+
35,0$5<
35 , 0$ 5 <
/,0,7
/, 0 ,7
52//287
52 / /2 8 7
/,0,7
/, 0 ,7
-81&7,21
-8 1 &7 , 21
%2 ;
%2 ;
1
*1'
*1 '
/
72 9 + ]32:(5
6833/<:,7+29(5&855(17
3527(&7,21'(9,&(
&
4
5
:
:
<
<
E13
E1 3
3
E190
E1 9 0
E14
E1 4
E192
E1 92
/2+ ( $7
/2+ ( $7
3$ 5 .
3$ 5 .
%.,*1
%., * 1
%., 1 'B + ,
%., 1 'B + ,
5', 1 'B / 2
5', 1 'B / 2
:+1(875$/
:+1 ( 87 5 $/
:+1(875$/
:+1 ( 87 5 $/
)/$0(
)/ $ 0(
6(1625
6( 1 62 5
%5
%5
;)05
;) 0 5
9
9
9
9
&20
&2 0
*<
*<
*<
*<
*<
*<
*<
*<
*<
*<
5'
5'
&20
&2 0
*$69$/9(
*$ 69 $/ 9 (
09+
09 +
09/
09 /
+27
+2 7
685)$&(
68 5 )$ & (
,*1,7(5
,* 1 ,7 ( 5
QG67$*(
Q G6 7$ * (
3
5(6685(
5( 6 685 (
6:,7&+
6: , 7&+
,1'8&(''5$)7
,1 ' 8& ( ''5$ )7
%/ 2 :( 5
%/ 2 :( 5
*5</
*5 </
E9
E9
E8
E8
E39
E3 9
FS1
FS 1
E22
E2 2
E40
E4 0
/2& 22 /
/2& 22 /
E10
E1 0
E29
E2 9
($&+
($ & +
E15
E1 5
E16
E1 6
/
/
E28
E2 8
+8 0
+8 0
E17
E1 7
E18
E1 8
E19
E1 9
E20
E2 0
1(875$/
1( 8 75 $ /
E21
E2 1
&20
&2 0
+,+ ( $7
+,+ ( $7
+,& 2 2/
+,& 2 2/
&,5&+
&, 5 & +
;) 0 5
;) 0 5
52//287
52 / /2 8 7
/,0,7
/, 0 ,7
</
</
2*
2*
2*
2*
5'
5'
38
38
38
38
38
38
%5
%5
</
</
%5
%5
%5
%5
%/
%/
%/
%/
*<
*<
*<
*<
5'
5'
*5
*5
%.
%.
%.
%.
%.
%.
:+
:+
:+
:+
:+
:+
:+
:+
:+
:+
%.
%.
:+
:+
%.
%.
%.
%.
%5
%5
*5</
*5 </
*5
*5
5
4
3
2
1
C
L
G
%5
%5
*<
*<
%/
%/
5'
5'
38
38
</
</
38
38
5'
5'
%/
%/
;7
;7
;7
;7
;7
;7
</
</
6
6
21
21
4
3
21
21
6
6
&22/2))'(/$<
',36:
6
6
2))
21
2))
2))
2))
21
21
21




120,1$/
6(&21'6
:'(/$<
',36:
6
6
2))
21
2))
2))
2))
21
21
21
2))

$872

120,1$/
0,187(6
+($72))'(/$<
',36:
6
6
2))
21
2))
2))
2))
21
21
21




120,1$/
6(&21'6
7KHIDFWRU\'HIDXOW
727+(50267$7
*<
*<
*<
*<
*<
*<
5(9(56()/2:/,0,7
5( 9 (5 6 ()/2 :/,0 ,7
5(9(56()/2:/,0,7
5( 9 (5 6 ()/2 :/,0 ,7
V W6 7$* (
V W6 7$* (
35(6685(
35 ( 668 5 (
6:,7&+
6: , 7&+
12&
12 &
&12
& 1 2
+/+
+/
+
/2+
/2
+
12&
12 &
&12
& 1 2
1&&
1& &
&1&
& 1 &
3
5(6685(
5( 6 685 (
6:,7&+
6: , 7&+
SPEED TAPS
MEDIUM LOW
LOW
MEDIUM
MEDIUM HIGH
HIGH
5
4
3
2
1
C
L
G
;7
;7
;7
;7
;7
;7
*<
*<
%/
%/
%/
%/
5'
5'
5'
5'
38
38
38
38
</
</
</
</
;7
;7
;7
;7
;7
;7
*<
*<
%/
%/
%/
%/
5'
5'
5'
5'
38
38
38
38
</
</
</
</
;7
;7
;7
;7
;7
;7
*<
*<
%/
%/
%/
%/
5'
5'
5'
5'
38
38
38
38
</
</
</
</
127(
:LUHVFRQQHFWHGWR
XSSHUWHUPLQDOVDUH
FRQQHFWHGWREORZHU
PRWRUQHYHUFKDQJH
WKHVHFRQQHFWLRQV
:LUHVFRQQHFWHGWR
WKHORZHUWHUPLQDOV
DUHFRQQHFWHGWR
WKHFRQWUROERDUG
FKDQJHWKHVHWR
DGMXVWVSHHGEDVHG
RQWHPSHUDWXUH
ULVH
;7
;7
;7
;7
;7
;7
*<
*<
%/
%/
%/
%/
5'
5'
5'
5'
38
38
38
38
</
</
</
</
%'
&
'
%&
*FACTORY DEFAULT SPEED CHOOSE TABLE
VHHWDEOHIRUGHWDLO
21
21
6ZLWFK213RVLWLRQ
6ZLWFK213RVLWLRQ
6HHLPDJHWRWKHULJKWVZLWFK
SRVLWLRQLV'2:1IRU21
21
21
6ZLWFK2))3RVLWLRQ
6ZLWFK2))3RVLWLRQ
6HHLPDJHWRWKHULJKWVZLWFK
SRVLWLRQLV83IRU2))

Table of Contents

Related product manuals