EasyManua.ls Logo

Bosch BGH96M100C5B - 17 Wiring Diagram

Bosch BGH96M100C5B
60 pages
Print Icon
To Next Page IconTo Next Page
To Next Page IconTo Next Page
To Previous Page IconTo Previous Page
To Previous Page IconTo Previous Page
Loading...
58
|
Installation Instructions
Bosch 96% AFUE Condensing Gas Furnace - BTC 770503101 J (06.2023)
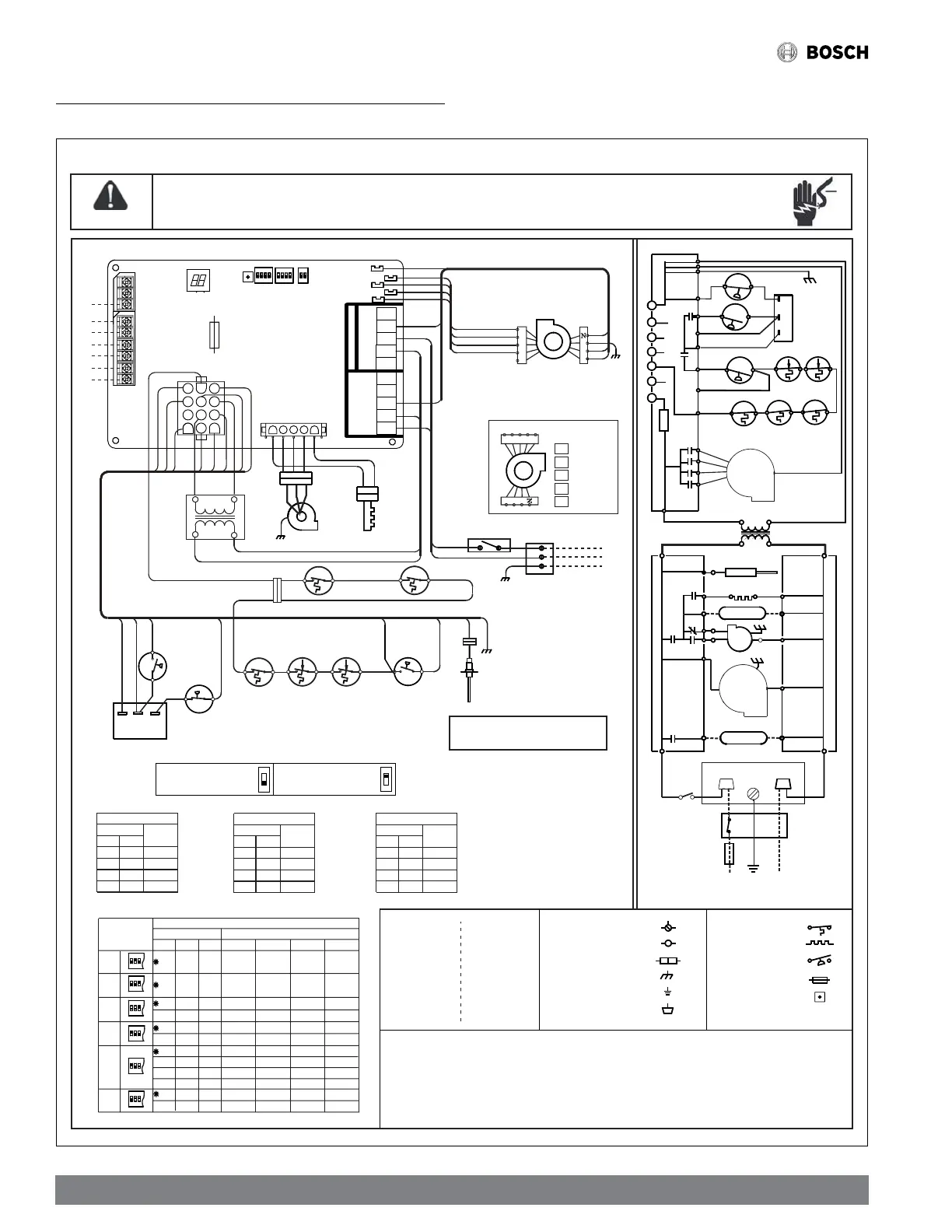
17 Wiring Diagram
Figure 49
-81&7,21
-81&7,21
7(50,1$/
7(50,1$/
3/8*&211(&7,21
3/8*&211(&7,21
(48,30(17*1'
(48,30(17*1'
),(/'*1'
),(/'*1'
),(/'63/,&(
),(/'63/,&(
6:,7&+7(03
6:,7&+ 7(03
,*1,7(5
,*1,7(5
6:,7&+35(66
6:,7&+ 35(66
29(5&855(17
29(5&855(17
3527'(9,&(
3527'( 9,&(
.(<
.(<
</<(//2:
</< (//2:
2525$1*(
252 5$1*(
383853/(
383 853/(
*5*5((1
*5* 5((1
%.%/$&.
%.% /$&.
%5%52:1
%5% 52:1
:+:+,7(
:+: +,7(
%/%/8(
%/% /8(
*<* 5$<
*<* 5$<
5'5 ('
5'5 ('
:LULQJLVVXEMHFWW RFKDQJH$OZD\VUHIHUW RWKHZLULQJGLRJUDPR QWKHXQLWIRUW KHP RVWXSWRGDWHVF KHPDWLF
:LULQJLVVXEMHFWWRF KDQJH$ OZD\VUH IHUWRWKHZLULQJG LRJUDPRQWKHXQLWI RUWK HP RVWXSWRGDWHV FKHPDWLF
:$51,1*
:$51,1*
+LJK9ROWDJH
+LJK9ROWDJH
'LVFRQQHFHWDOOSRZHUEHIRUHVHUYLFLQJRULQVWDOOLQJW KLVXQLW0XOWLSOHS RZHUVR XUFHV
'LVFRQQHFHWDOOSRZHUE HIRUHVH UYLFLQJRUL QVWDOOLQJWKLVXQLW0XOWLSOHS RZHUVR XUFHV
PD\EHSUHVHQW)DLOXUHW RG RVRPD\FDXVHSURSHUW\G DPDJHSHUVRQDOL QMXU\RUGHDWK
PD\EHS UHVHQW)D LOXUHW RGRVRPD\FDXVHSURSHUW\G DPDJHSHUVRQDOLQMXU\RUGHDWK
127(
6(7+($7$ 17,&,3$7252 152207+(50267$7$7$036
0$18)$&785(5663(&,),('5(3/$&(0(173$5760867%(86(':+(16(59,&,1*
,)$1<2 )7+(25,*,1$/:,5($ 66833/,(':,7+7+()851$&(0867%(5 ( 3/$&(',7
0867%(5(3/$&(':,7+:,5,1*0$7(5,$/+$9,1*$7 (03(5$785(5$7,1*2 )$7/($67
ć86 (&233(5&21'8&725621/<
%/2:(56 3(('66+28/'% ($'-867('%<,167$//(57 20$7&+7+(, 167$//$7,21
5(48,5(0(17662$ 67 23529,'(7+(&255(&7&22/,1*&)06((63(&6+((7)25
$,5)/2:&+$57
81,70867%(3 (50$1(17/<*5281'('$1'&21)2507 21(& $1'/ 2&$/&2'(6
;)05
;)05
*1'
*1'
09&
09&
09+
09+
*1'
*1'
36
36
09/
09/
36
36
+/,
+/,
72
72
0,&52
0,&52
;)05+
;)05+
)3
)3
,*1
,*1
,1'
,1'
/,1(+
/,1(+
'225
'225
6:,7&+
6:,7&+
-81&7,21%2;
-81&7,21% 2;
*1'
*1'
/
/
1
1
',6&211(&7
',6&211(&7
/,1(1
/,1(1
&,51
&,51
,1'1
,1'1
,*11
,*11
;)051
;)051
)86(
)86(
+80,',),(5
+80,',),(5
,17(*5$7('
,17(*5$7('
&21752/02'8/(
&21752/02'8/(
*$6
*$6
9$/9(
9$/9(
6767 $*(35(6685(6:,7&+
6767$*(3 5(6685(6: ,7&+
35,0$5</,0,7
35,0$5</, 0,7
&21752/
&21752/
52//287/,0,7
52//287/,0,7
&21752/6
&21752/6
9$&
9 $&
75$16)250(5
75$16)250(5
&
&
*
*
<
<
:
:
5
5
)/$0(6(1625
)/$0(6 (1625
+2768 5)$&(
+27685)$&(
,*1,7(5
,*1,7(5
,'
,'
%/:5
%/:5
&,5&8/$725
&,5&8/$725
%/2:5
%/2:5
:$51,1*
:$51,1*
',6&211(&732:(5
',6&211(&732:(5
%()256(59,&,1*
%()256(59,&,1*
:,5,1*7281,70867
:,5,1*7281,70867
%(3523(5/<32/$5,=('
%(3 523(5/<32/$5,=('
$1'*5281'('
$1'*5281'('
729$& +]3 2:(56833/<: ,7+2 9(5&855(17
729$& +]3 2:(56 833/<: ,7+2 9(5&855(17
3527(&7,21'(9,&(
3527(&7,21'( 9,&(
97+(50267$7&211(&7,216
97+(50267$7&211(&7,216
,17(*5$7('&21752/02'8/(
,17(*5$7('&21752/02'8/(
,17(*5$7('&21752/02 '8/(
,17(*5$7('&21752/02'8/(
+80
+80
+801
+801
($&1
($&1
($&+
($&+
($&
($&
(/(&7521,&$,5&/($1(5
(/(&7521,&$ ,5& / ($1(5
+/2
+/2
&
&
12
12
&
&
1&
1&
1(875$/
1(875$/
&,5+
&,5+
&,5&8/$725
&,5&8/$725
%/2:5
%/2:5
0/&
0/&
/2&
/2&
5(9(56()/2:
5(9(56()/2:
/,0,76&21752/6
/,0,76&21752/6
<
<
:
:
&,&8/$725%/2:(5
&,&8/$725%/2:(5
:$51,1*
:$51,1*
',6&211(&732:(5% ()25(
6(59,&,1*:,5,1*728 1,70 867% (
3523(5/<32/$5,=('$1 '* 5281'('
INTEGRATED
INTEGRATED
CONTROL MODULE
CONTROL MODULE
'2256:,7&+
'2256:,7&+
PRIMARY
PRIMARY
LIMIT
LIMIT
ROLLOUT
ROLLOUT
LIMIT
LIMIT
-81&7,21
-81&7,21
%2;
%2;
1
1
*1'
*1'
/
/
72 9  + ]32:(5
6833/<: ,7+2 9(5&855(17
3527(&7,21' (9,&(
FLAME
FLAME
SENSOR
SENSOR
120V
120V
;)05
;)05
9
9
*<
*<
*<
*<
GY
GY
GY
GY
*<
*<
5'
5'
&20
&20
*$69$/9(
*$69$/9(
09+
09+
09/
09/
+27
+27
685)$&(
685)$&(
,*1,7(5
,*1,7(5
2nd STAGE
2nd STAGE
P
P
RESSURE
RESSURE
SWITCH
SWITCH
,1'8&('
,1'8&('
'5$)7
'5$)7
%/2:(5
%/2:(5
GR/YL
GR/YL
ROLLOUT
ROLLOUT
LIMIT
LIMIT
2*
2*
RD
RD
COM
COM
PU
PU
PU
PU
BR
BR
YL
YL
BR
BR
%5
%5
BL
BL
%.
%.
:+
:+
BK
BK
WH
WH
*5</
*5</
*5
*5
5
5
4
4
3
3
2
2
1
1
C
C
L
L
G
G
&22/2))'(/$<
',36:
6
6
2))
21
2))
2))
2))
21
21
21




120,1$/
6(&21'6
:'(/$<
',36:
',36: 120,1$/63(('
6
6
6
2))
21
2))
2))
2))
21
21
21
2))

$872

120,1$/
0,187(6
+($72))'(/$<
',36:
6
6
2))
21
2))
2))
2))
2))
2))2))
2))
2))
2))  
21
21
21
21
21
21
21
21
21
21
2))
212))
21
21
2))
21
21




120,1$/
6(&21'6
7KHIDFWRU\'HIDXOW
727+(50267$7
*<
*<
*<
*<
*<
*<
REVERSE FLOW LIMIT
REVERSE FLOW LIMIT
REVERSE FLOW LIMIT
REVERSE FLOW LIMIT
1st STAGE
1st STAGE
PRESSURE
PRESSURE
SWITCH
SWITCH
12&
12&
&12
&12
+,+
+,+
0++
0++
12&
12&
&12
&12
NC(C)
NC(C)
C(NC)
C(NC)
P
P
RESSURE
RESSURE
SWITCH
SWITCH
SPEED TAPS
MEDIUM LOW
LOW
MEDIUM
MEDIUM HIGH
HIGH
5
5
4
4
3
3
2
2
1
1
C
C
L
L
G
G
21
21
Switch ON Position
Switch ON Position
See image to the right,switch
position is DOWN for ON.
21
21
Switch OFF Position
Switch OFF Position
See image to the right,switch
position is UP for OFF.
96% machine
windshield setting
FAN SPEED
100D
2)) 2)) 21
100C
2)) 2)) 2)) 
60B
80B
6 +KHDW /KHDW +FRRO +FRRO6
 
2))2)) 21
120D
 
 
 
 
2))2121  
 
 
2))2))21
80C
 
Y1Y2W1W2RGC
DSP1
123
6
9
12
5
8
11
4
7
10
SW1
COM
HI
MH
ML
LO
BR
RD
RD
WH
BK
BR
YL
YL
BL
BL
PU
PU
BK
BK
BK
WH
WH
WH
E14
E13
E190
E9
E8
S2S3
ON
1234 12 1234
ON ON
E39
E22
FS1
BK IGN
BK IND_HI
RD IND_L0
WH NEUTRAL
WH NEUTRAL
E40
1 23 54
E10
E17
E18
E19
E20
E21
EAC-H
CIRC-H
L1
XFMR
HUM
E29
E15
E16
E28
NEUTRALS
CAUTION-120V
YL
YL
BL
BL
GR
GR
RD
RD
GY
GY
PU
PU
GY
GY
OG
OG
BR
BR
123
ON
123
ON
1
23
ON
123
ON
123
ON
123
ON

Table of Contents

Related product manuals