EasyManua.ls Logo

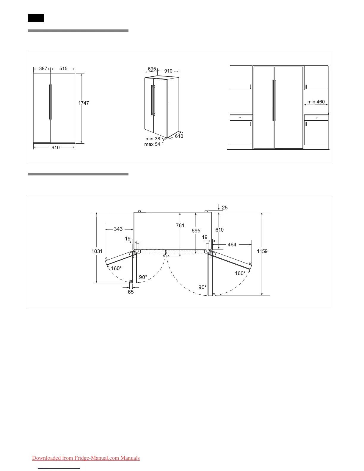
Bosch KAD62V40 - Appliances and Installation Dimensions; Door Opening Angle

Bosch KAD62V40
119 pages
To Next Page IconTo Next Page
To Next Page IconTo Next Page
To Previous Page IconTo Previous Page
To Previous Page IconTo Previous Page
Loading...
26
   
  

Downloaded from Fridge-Manual.com Manuals

Table of Contents

Related product manuals