EasyManua.ls Logo

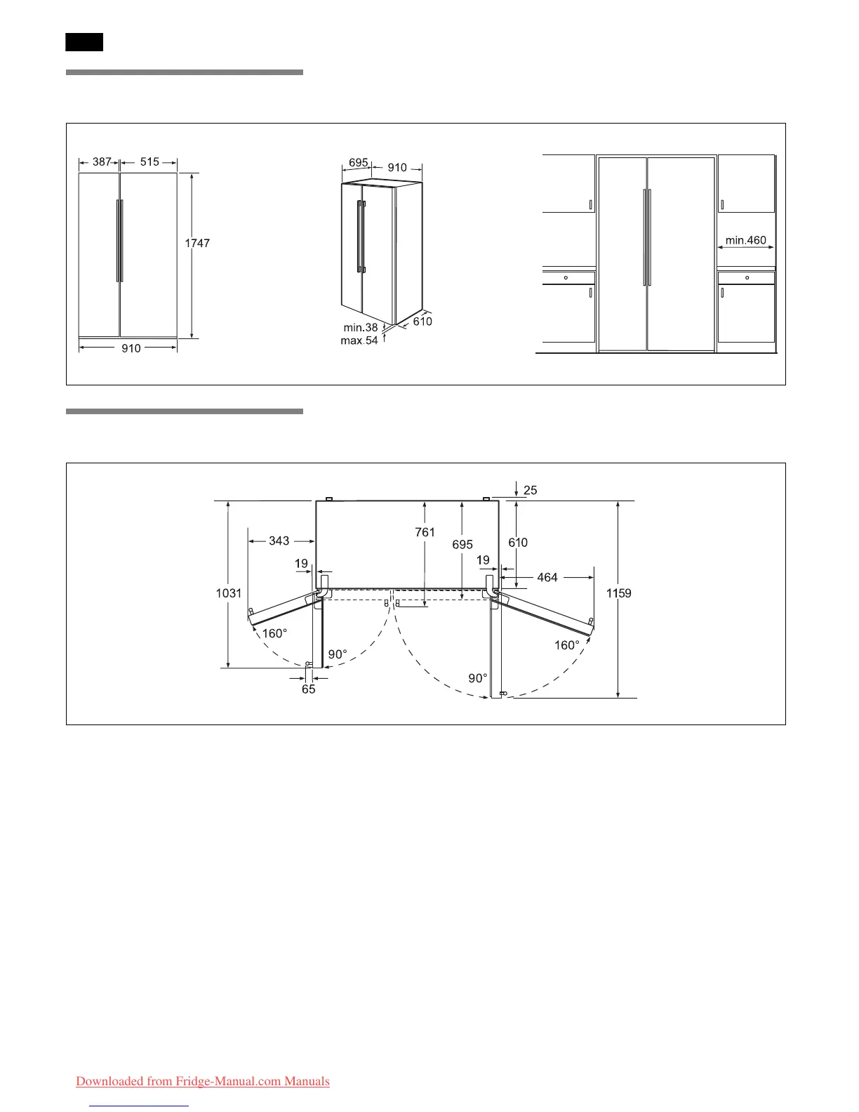
Bosch KAD62V40 - Afmetingen Van Het Apparaat en Voor Het Plaatsen; Openingshoek Deur

Bosch KAD62V40
119 pages
Print Icon
To Next Page IconTo Next Page
To Next Page IconTo Next Page
To Previous Page IconTo Previous Page
To Previous Page IconTo Previous Page
Loading...
84
       
 

Downloaded from Fridge-Manual.com Manuals

Table of Contents