EasyManua.ls Logo

Bosch SHX78CM4 - Custom Door Panel

Bosch SHX78CM4
98 pages
Print Icon
To Next Page IconTo Next Page
To Next Page IconTo Next Page
To Previous Page IconTo Previous Page
To Previous Page IconTo Previous Page
Loading...
32
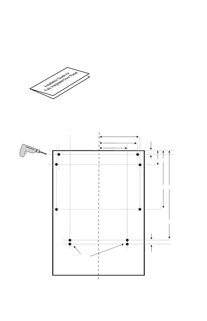
Custom Door Panel
Please see the included instructions and template for
installing a custom door panel.
Below are the measurements for making a custom door panel
from the template. Measure the screw holes from the center line
and the top of the panel.
9 ⁷⁄8" - 251mm
10 ¼" - 261mm
11 ¹⁄8" - 283mm
³⁄8" - 9mm
3 ⁵⁄16" - 84mm
13" - 331mm
24 ¹⁄2" - 622.5mm
⁵⁄16" - 8.5mm
center line
holes for
T-bracket
screws

Related product manuals