EasyManua.ls Logo

Bpt 62700030 - Page 7

Bpt 62700030
Print Icon
To Next Page IconTo Next Page
To Next Page IconTo Next Page
To Previous Page IconTo Previous Page
To Previous Page IconTo Previous Page
Loading...
B
VA/01
+12V
M2
+
-
B IN1
B IN2
B IN3
B OUT
A
1
2
1
2
VAS/100.30
DVC/01
-
-
-
M2
12V
+
-
M1
B OUT
+
-
M1
B OUT
DVC/01
-
-
-
M2
12V
DVC/01
12V
+
-
M1
B OUT
M2
-
-
-
Le
L1
L2
L3
Pag. 7 - Manuale FB00353-IT - ver. 1 - 12/2015 - © CAME S.p.A.
I contenuti del manuale sono da ritenersi suscettibili di modifica in qualsiasi momento senza obbligo di preavviso.
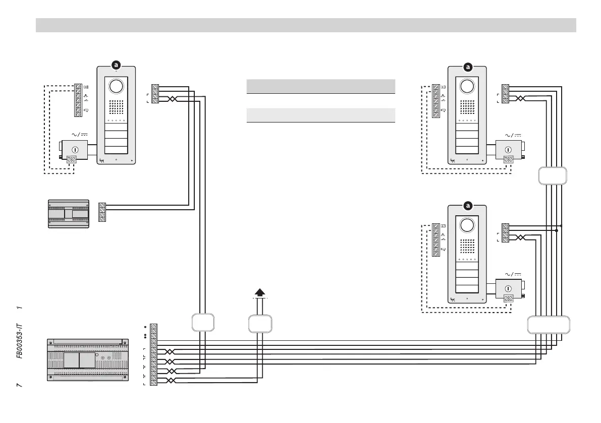
ESEMPI D'IMPIANTO CON VA/01
Impianto plurifamiliare con 󱤎 3 posti esterni.
Distanze ammesse con cavo
VCM/2D
Linea /m
L1, L2, L3 100
L1 + L2 + L3 300
Ai morsetti IN dei montanti
verso i derivati interni.

Related product manuals