EasyManua.ls Logo

Bpt VA/01 - Page 39

Bpt VA/01
Print Icon
To Next Page IconTo Next Page
To Next Page IconTo Next Page
To Previous Page IconTo Previous Page
To Previous Page IconTo Previous Page
Loading...
B
VA/01
+12V
M2
+
-
B IN1
B IN2
B IN3
B OUT
A
1
2
1
2
VAS/100.30
DVC/01
-
-
-
M2
12V
+
-
M1
B OUT
+
-
M1
B OUT
DVC/01
-
-
-
M2
12V
DVC/01
12V
+
-
M1
B OUT
M2
-
-
-
Le
L1
L2
L3
Page 7 - Manuel FB00353-FR - vers. 1 - 12/2015 - © CAME S.p.A.
Le contenu du manuel est susceptible de subir des modifications à tout moment et sans aucun préavis.
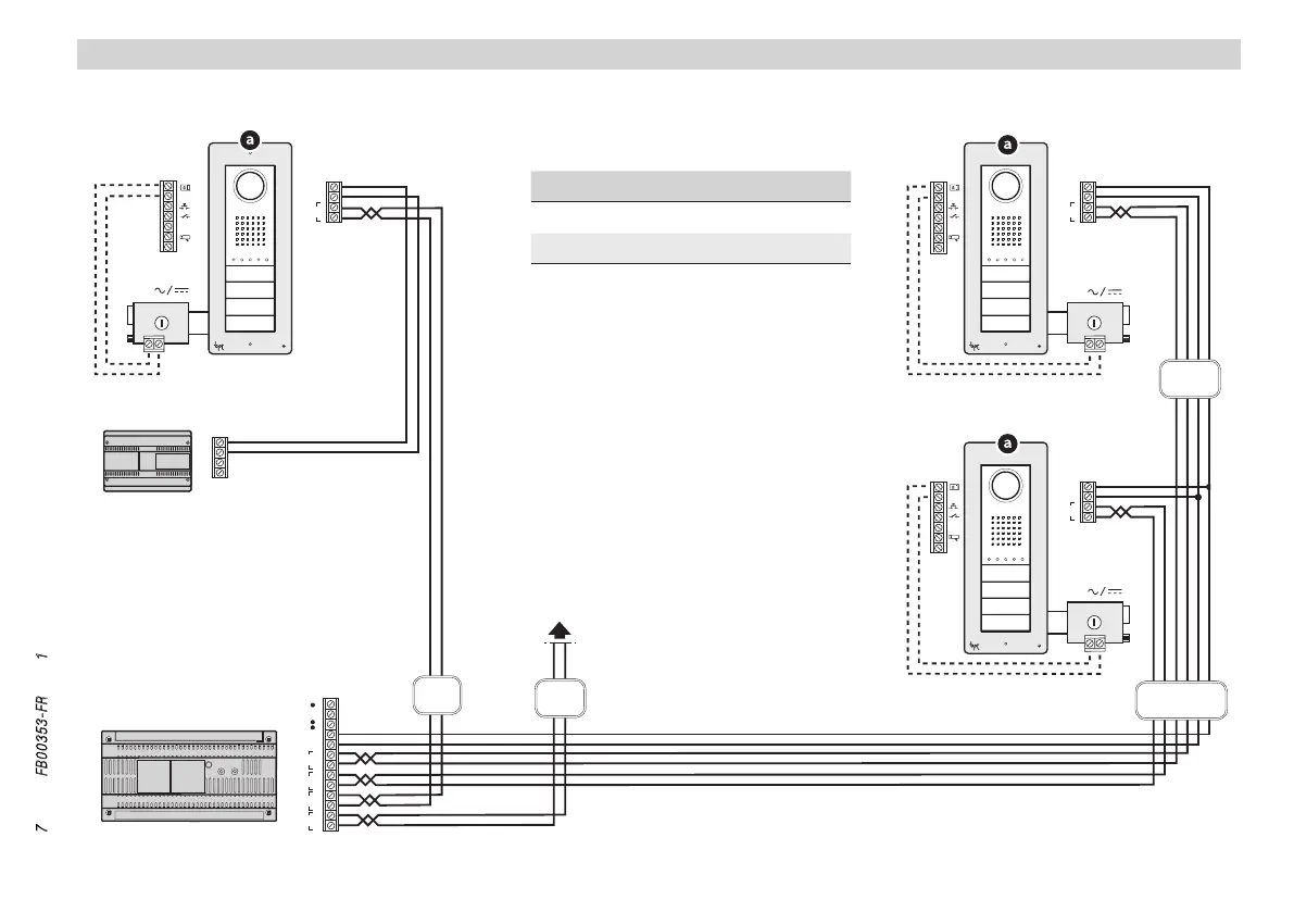
EXEMPLES D'INSTALLATION AVEC VA/01
Installation multifamiliale avec 󱤎 3 postes externes.
Distances admises avec câble
VCM/2D
Ligne /m
L1, L2, L3 100
L1 + L2 + L3 300
Aux bornes IN des colonnes
montantes vers les postes
internes.

Other manuals for Bpt VA/01

Related product manuals