EasyManua.ls Logo

BRAHMA TC340 - Page 12

BRAHMA TC340
18 pages
Print Icon
To Next Page IconTo Next Page
To Next Page IconTo Next Page
To Previous Page IconTo Previous Page
To Previous Page IconTo Previous Page
Loading...
12/18 14698_r00
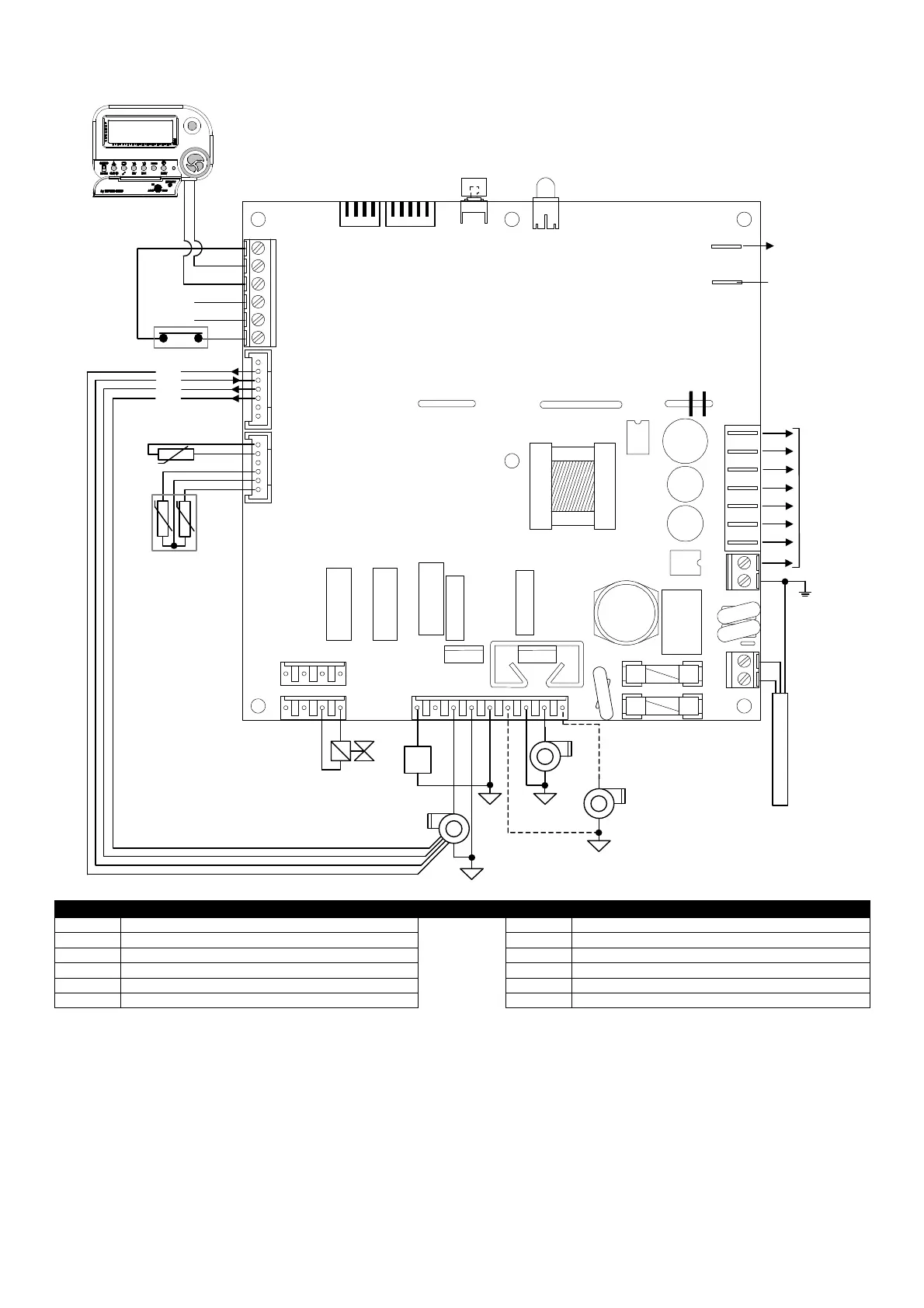
WIRING DIAGRAM FOR BRAHMA DEVICES type TC340
P
.**.**.**
J12
J11
J10
J8
J7
J6
J3
J5
J4
J2
STF
GA1
EX
SA
SR
EV1
FAN
ACC1
PS
N
L
PE
SL
RESET
ION
J1
J13
J14
EF
+24V
RPM
PWM
GND
MARRONE
NERO
BLU
4
3
2
1
4
3
2
1
5
4
3
2
1
5
6
1
2
3
4
5
6
7
1
2
3
4
5
6
1 2 3 4
1 2 3 4
1 2 3 4 5 6 7 8 9
F1
F2
2
1
2
1
PE
FAN2
PE
Key to symbols
GA1 Chronothermostat type ENCRONO GA1 STF Fire damper
EF Burner motor SA Room temperature probe (optional)
FAN Hot air blower SL LED signalling
ACC1 Remote auxiliary ignition transformer RESET Reset push-button
EV1 First valve stage EX Connection for cascade appliances
SR Heating circuit probe ION Ionization electrode

Related product manuals