EasyManua.ls Logo

BRAHMA TC340 - Page 13

BRAHMA TC340
18 pages
Print Icon
To Next Page IconTo Next Page
To Next Page IconTo Next Page
To Previous Page IconTo Previous Page
To Previous Page IconTo Previous Page
Loading...
14698_r00 13/18
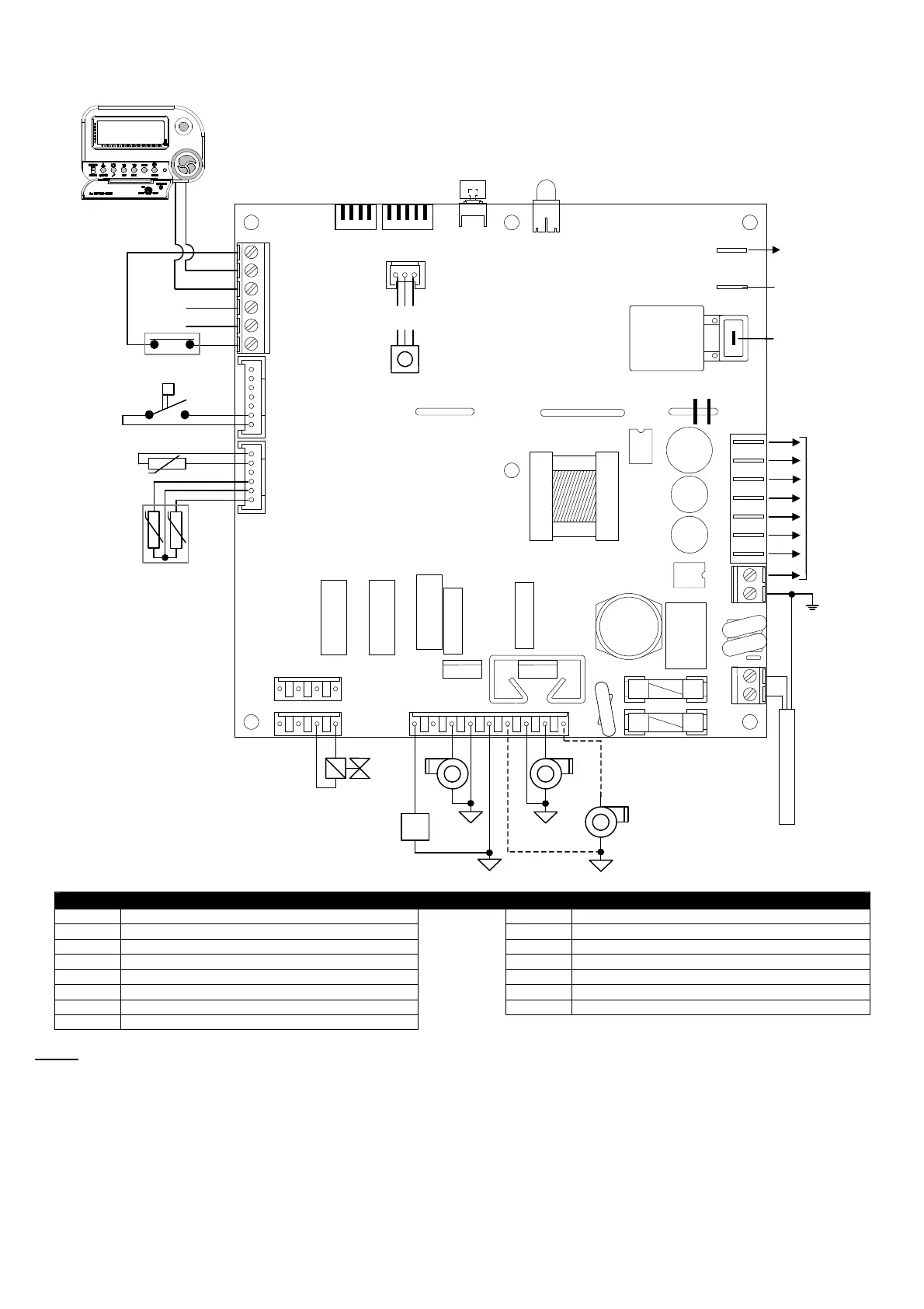
WIRING DIAGRAM FOR BRAHMA DEVICES type TC340
A
.**.**.** opt.
C1 / C2
J12
J11
J10
J19
J8
J7
J6
J3
J5
J4
J2
STF
GA1
EX
APS
SA
SR
EV1
EF
FAN
ACC1
PS
N
L
PE
ACC2
SL
RESET
ION
J1
J13 J14
V
out
+5V
GND
SP (Nota 1)
+
-
MARRONE
NERO
BLU
4
3
2
1
4
3
2
1
5
4
3
2
1
5
6
1
2
3
4
5
6
7
1
2
3
4
5
6
1 2 3 4
1 2 3 4
1 2 3 4 5 6 7 8 9
F2
F1
2
1
2
1
2
3
1
FAN2
PE
PE
Key to symbols
GA1 Chronothermostat type ENCRONO GA1 SA Room temperature probe (optional)
EF Burner motor APS Air pressure switch
FAN Hot air blower STF Fire damper
ACC1 Remote auxiliary ignition transformer SL LED signalling
ACC2 Inbuilt ignition transformer RESET Reset push-button
EV1 BRAHMA valve type VCM01* # (0/P) (0/P) 24VDC EX Connection for cascade appliances
SP VCM01 valve pressure sensor ION Ionization electrode
SR Heating circuit probe
NOTES
1. Connector and wiring not available in C2 version.

Related product manuals