EasyManua.ls Logo

BRAHMA TC340 - Page 14

BRAHMA TC340
18 pages
Print Icon
To Next Page IconTo Next Page
To Next Page IconTo Next Page
To Previous Page IconTo Previous Page
To Previous Page IconTo Previous Page
Loading...
14/18 14698_r00
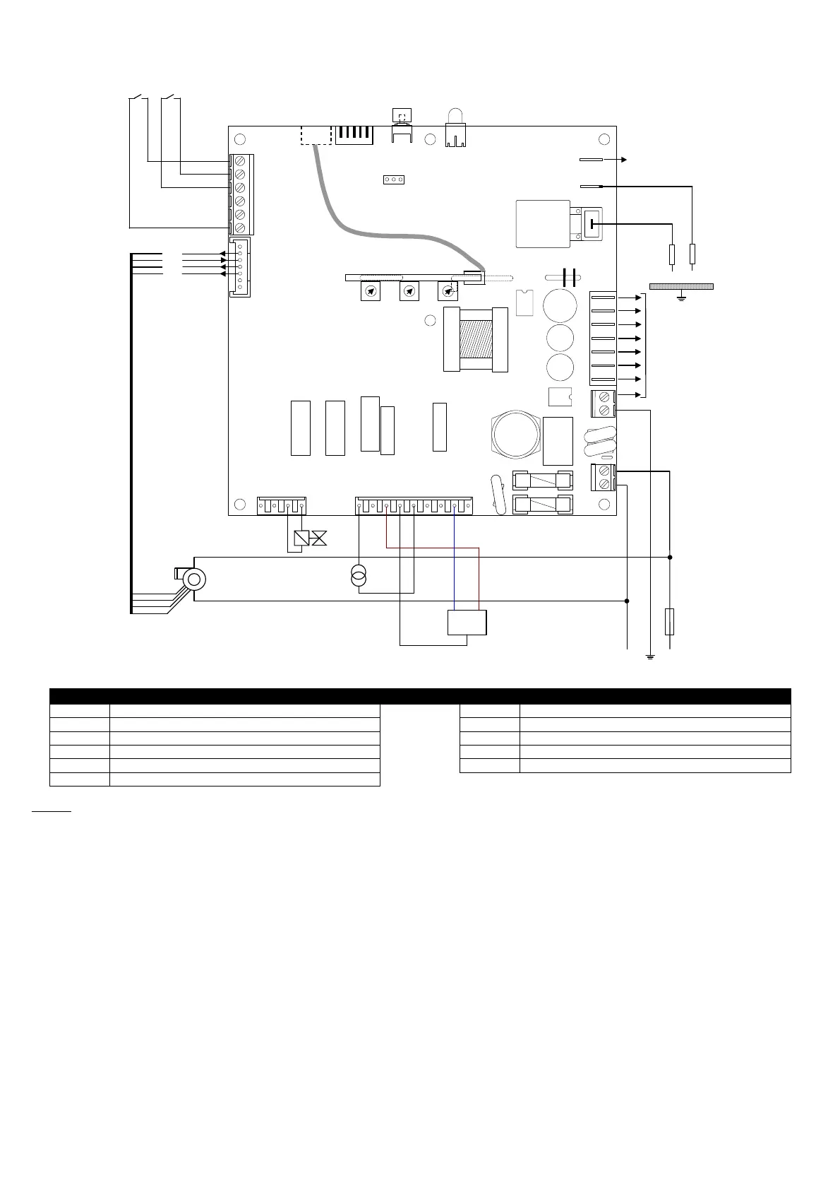
WIRING DIAGRAM FOR BRAHMA DEVICES type TC340
P1
.**.**.** opt. G NT NS
J12
J11
J7
J6
J5
J4
J2
EV1
N L
SL
RESET
ION
J1
J14
+24V
RPM
PWM
GND
4
3
2
1
5
4
3
2
1
5
6
1
2
3
4
5
6
7
1 2 3 4 1 2 3 4 5 6 7 8 9
F1
F2
2
1
2
1
N1
FUSE
EF
ACC1
ACC2
JP2
T2 TC
P1 P2 P3
+ -
J3
M (Nota 2)
PE
PE
J13
IN(+)
IN(
-
)
Key to symbols
TC Heat demand room thermostat N1 Three-point adjuster
T2 Adjustment thermostat / BOOST function SL LED signalling
EF Burner motor RESET Reset push-button
ACC1 Remote auxiliary ignition transformer EX Connection for cascade appliances
ACC2 Inbuilt ignition transformer ION Ionization electrode
EV1 First valve stage
NOTES
2. Vertical module for setting up 3 of the 11 modulation parameters (available upon request).

Related product manuals