EasyManua.ls Logo

BRAHMA TC340 - Page 15

BRAHMA TC340
18 pages
Print Icon
To Next Page IconTo Next Page
To Next Page IconTo Next Page
To Previous Page IconTo Previous Page
To Previous Page IconTo Previous Page
Loading...
14698_r00 15/18
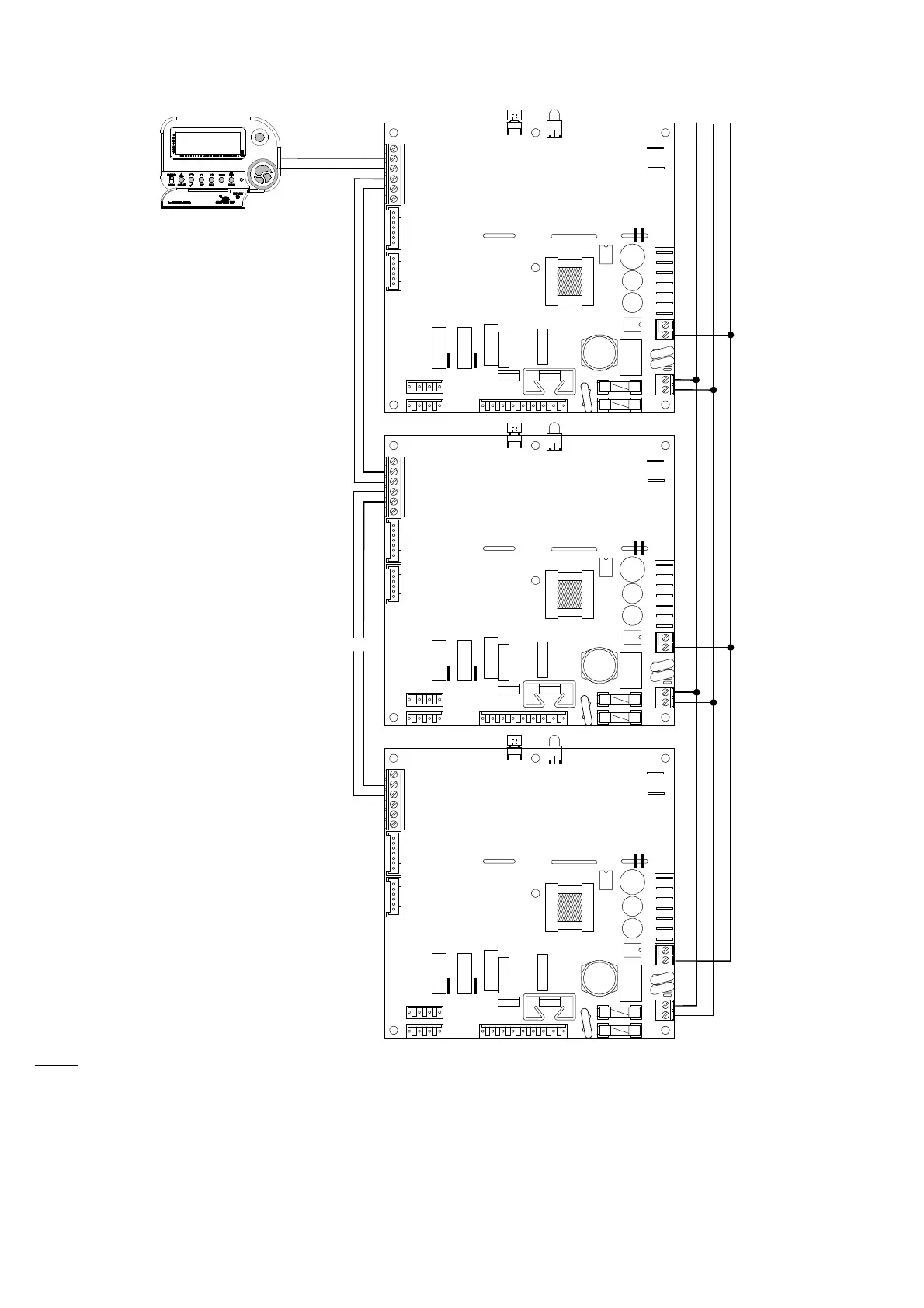
WIRING DIAGRAM FOR THE CASCADE CONNECTION OF SEVERAL DEVICES THROUGH OpenTherm™
Nota 1
N
L
PE
J12
J12
J12
MASTER
SLAVE 1
SLAVE 2
SLAVE “n”
~ ~
~ ~
NOTES
1. The cascade connection is possible also by a contact chronothermostat. This configuration is not used in TC340P1 versions.

Related product manuals