EasyManua.ls Logo

Braun MILLENNIUM A5 - Hydraulics Parts List

Braun MILLENNIUM A5
32 pages
Print Icon
To Next Page IconTo Next Page
To Next Page IconTo Next Page
To Previous Page IconTo Previous Page
To Previous Page IconTo Previous Page
Loading...
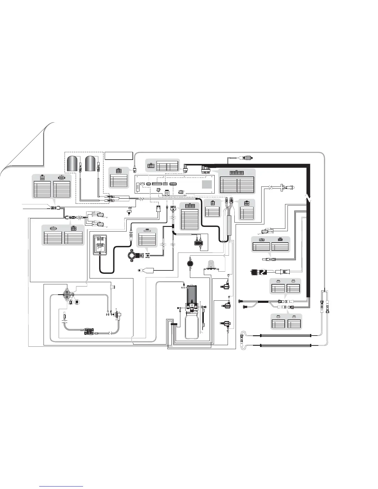
Page 18
Unfold for:
Lift Electrical
Schematic
Lift Wiring Diagram
Platform Lights (Option)
Circuit Sentry
(Circuit Breaker)
Bat.
Aux.
Lift
Power Cable
205-0712-37
Pump Module
Power Feed
26082A-4
Connects to
Vehicle Battery
(+) Positive Post
Lead Wire
13362A
GN(20)
BK(20)
BK(20)
BK(20)
BK(20)
BK(20)
or
Note polarity of diode. It
must be oriented as shown.
Detail at left shows two different
styles of diode identification.
GN(14)
RL3
GN(20)
VT(20)
WH(20)
GN(20)
OR(20)
Ground
BU(20)
BK(24) COPPER
BK(24) COPPER
BK / WH(24) SILVER
BK(24 GA COPPER)
BK
GN
WH
RD
BK / WH(24 GA SILVER)
BK / WH(24) SILVER
BK(24 GA COPPER)
BK / WH(24 GA SILVER)
FS2
FS10
FS3
FS5
FS8
FS9
FS12
FS13 FS14
FS7
FS4
FS1
FS20
FS21
FS11
OR(20)
GN(20)
PK(20)
Up/Fold
Solenoid
Motor Power Feed Wire
Beeper
Threshold
Warning
Light
Lift
Control
Module
Interlock LED
(Side view of
solenoids removed
from pump.)
J7
J9
J8
J4
J3
B
A
T
A
U
X
GN(20)
VT(20)
GN(20)
J28 P28
P15J15
J15P15
P32J32
P8
P5
P3
P9
P6
P7
P16
P20
J20
P20
J20
J30
J16
P16 J16
RL7
RL2
RL1
4L
R
32929A
915-4534NA
+
-
Threshold Sensors
IB Jumper
Harness
Counter
Down
Dual Relief
Power
Stud
915-4530RNA
31221A
31221A
RD(4)
RD(2)
RD(2)
BK(6)
Lift Power
Switch
BK(20)
RD(20)
BN(20)
985-4532NA
915-4533NA
RD(20)
RD(20)
GN(20)
WH(20)
BK(20)
BK(20)
BK(20)
RD(20)
BK(20)
4
5A
3
3
0
1
3
(31033A96)
NL915IB/FIB
NL918IB/FIB
(31033A99)
NL916IB/FIB
NL917IB/FIB
NL919IB/FIB
)81(KB
)81(KB
)81(KB
)
8
1
(KB
RD(20)
BK(20)
RD(20)
GN(20)
J6
J13
J5
+
-
-
E
+
PINK
NOT USED
PINK
3
2
1
COLORNO.
3-COND WIRE CODE
GREEN(20)
RED(20)
BLUE(20)
3
2
1
COLORNO.
3-COND WIRE CODE
321
123
VIOLET(20)
WHITE(20)
NOT USED
NOT USED
BLUE(20)
ORANGE(20)
6
5
4
3
2
1
COLORNO.
12-COND WIRE CODE
YELLOW(20)
GREEN(20)
BLACK(20)
RED(20)
NOT USED
NOT USED
12
11
10
9
8
7
123456
78910
11
12
NOT USED
NOT USED
GREEN
WHITE
BLACK
RED
6
5
4
3
2
1
COLORNO.
6-COND WIRE CODE
321
546
GN / BK(20)
WH / BK(20)
BU / BK(20)
RD / BK(20)
4
3
2
1
COLORNO.
BK / WH(20)
NOT USED
NOT USED
NOT USED
8
7
6
5
COLORNO.
8-COND WIRE CODE
321
657
4
8
BROWN(20)
BLACK(20) & WHITE(20)
RED(20) & GREEN(20)
NOT USED
4
3
2
1
COLORNO.
4-COND WIRE CODE
21
43
1
2
2
1
1
2
1
2
2
1
1
2
2
1
1
2
2
1
Note: All wires 22 GA.
unless otherwise noted.
ORANGE(20)
NOT USED
NOT USED
NOT USED
D
C
B
A
COLORNO.
6-COND WIRE CODE
BLUE(20)
YELLOW(20)
F
E
2
1
22
1
2
1
1
2
1
2
1
Rotary
Position
Sensor
Floor Level
Memory Set
Push Button
A
BCDE F
C1
IB Occupancy
Microswitch
C-H
COM
NO
NC
WH(20)
BK(20)
4
N.O.
N.C.
.
M
OC
GN(20)
YL(20)
PINK(20)
BLACK(20)
BLUE(20)
VIOLET(20)
YELLOW(20)
OR(20) & OR(20)
6
5
4
3
2
1
COLORNO.
6-COND WIRE CODE
321
546
FS16
FS17
Bridge
BK(4)
Pump Ground
Back
Plate
Hydraulic
Pump
Down
22166A
Dual
Relief
Bridge
Outer Barrier
Raised Sensor
Outer Barrier
Latched Sensor
J25 P25
P26
J26
P27
31010FA
32645NA60
917-4535FNA-33 FRONT PUMP LIFTS
917-4535RNA-33 REAR PUMP LIFTS
BU(16)
BU(16)
OR / BK(20)
OR(20)
Bridge
Microswitch
COM
NO
NC
1
2
1
2
321
GREEN / WHITE(20)
RED / WHITE(20)
BLUE / WHITE(20)
3
2
1
COLORNO.
3-COND WIRE CODE
123
GREEN(26)
RED(26)
YELLOW(26)
3
2
1
COLORNO.
3-COND WIRE CODE
321
GREEN(26)
RED(26)
YELLOW(26)
3
2
1
COLORNO.
3-COND WIRE CODE
123
GREEN / BLACK(20)
RED / BLACK(20)
BLUE / BLACK(20)
3
2
1
COLORNO.
3-COND WIRE CODE
FS18
FS19
WH / BK(20)
BK / WH(20)
Pressure
Switch
ORANGE JUMPER
NOT USED
ORANGE JUMPER
GREEN / WHITE(20)
BLUE / WHITE(20)
RED / WHITE(20)
NOT USED
ORANGE(20)
ORANGE / BLACK(20)
6
5
4
3
2
1
COLORNO.
18-COND WIRE CODE
7
8
9
BLACK(20)
WHITE(20)
NOT USED
GREEN(20)
BLUE(20)
RED(20)
NOT USED
NOT USED
NOT USED
15
14
13
12
11
10
COLORNO.
16
17
18
11 10
13
12
14
1516
17
18
21
4
3
5
67
8
9
Switch
Box
P4
100245-001
GY/RD(18)
J21P21
Interlock
Connection
VEHICLE SECURE SIGNAL +12V INPUT
LIFT STOWED / NOT STOWED SIGNAL
(Located in cavity #5, #7 or #9 - see chart above)
32639A
32638A
WHITE(20)
GREEN(20)
RED(20)
BLACK(20)
4
3
2
1
COLORNO.
6-COND WIRE CODE
4
3
2
1
COLORNO.
6-COND WIRE CODE
GRAY / RED(18)
BROWN(20)
NOT USED
NOT USED
NOT USED
NOT USED
6
5
4
3
2
1
COLORNO.
9-COND WIRE CODE
WHITE(20)
NOT USED
BLACK(20)
9
8
7
GY / RD(18) VEHICLE SECURE +12V INPUT
NOT USED
NOT USED
NOT USED
NOT USED
6
5
4
3
2
1
COLORNO.
9-COND WIRE CODE
NOT USED
9
8
7
1
23
4
5
6
7
8
9
1
23
4
5
6
123
456
789
BK(20)
RD(20)
Stow Interlock (+)
Microswitch
C-H
COM
NO
NC
C5
N.O.
COM.
N.C.
GN(20)
WH(20)
BN(20)
915-4539NA
Stow Interlock (-)
Microswitch
C-H
COM
NO
NC
C6
N.O.
COM.
N.C.
YL/LT. BU(18)
GY/RD(18)
J31
P31
WHITE(20)
GREEN(20)
NOT USED
BROWN(20)
6
5
6
5
NOT USED
BROWN(20)
FUSE HOLDER(16)
BLACK(20)
GN(20)
RD(14)
RD(14)
P13
FS5
FS6
321
546
J27
In-Line
Fuse
LIFT NOT STOWED GROUND SIGNAL
LIFT STOWED +12V OUTPUT
LIFT STOWED GROUND SIGNAL
32832A
OR
WH
WH
BU
Fold/Unfold
Switch
WH
BK
GN
RD
L
G
Up/Down
Switch
E

Related product manuals