EasyManua.ls Logo

Broan B70DHV - DEHUMIDIFIER SET UP; Important Precautions; Location Considerations

Broan B70DHV
17 pages
Print Icon
To Next Page IconTo Next Page
To Next Page IconTo Next Page
To Previous Page IconTo Previous Page
To Previous Page IconTo Previous Page
Loading...
4
Installation & Operation Instructions 800.558.1711
Important Precautions
The device is designed to be installed indoors in a space that is protected from rain and ooding.
Install the unit with enough space to access all sides for maintenance and service. The entire shell needs to be
removed in order to do repairs.
• Avoid directing the discharge air at people. The dehumidier should be used in the upright position.
If used near a water source; be certain there is no chance the unit could fall into the water or get splashed and
that it is plugged into a dedicated circuit and Ground Fault Circuit Interrupter (GFCI) protected outlet.
• DO NOT use the dehumidier as a bench or table.
DO NOT place the dehumidier directly on structural building members without vibration absorbers or unwanted
noise may result. Place the B70DHV on supports to raise the base of the unit.
A drain pan with a oat switch MUST be placed under the dehumidier if installed above a living area or above
an area where water leakage could cause damage.
Location Considerations
Allow sucient clearance to handle the unit’s overall dimensions as well as the necessary return and supply
ductwork to the unit.
• Allow sucient clearance for lter removal and to prevent airow obstruction.
Electrical service access will require the removal of the outside shell. Allow sucient clearance around the unit.
Locate the dehumidier in an area where the cord’s lenght (9') easily reaches a 115 VAC electrical outlet with a
minimum of a 15 Amp circuit capacity.
• Locate the dehumidier in an area where eld wiring the control (low voltage) to the unit will be possible.
It is recommended that a
backdraft damper be used in
the discharge duct of the
B70DHV, especially when
connecting to the supply
ducting system. The backdraft
damper prevents supply air
from counter owing through
the B70DHV when it is not
operating. The dehumidier’s
location should be chosen to
allow installation of this
accessory if necessary.
The B70DHV may be
suspended with the hang kit
or a suitable alternative from
structural members,
ensuring the assembly
supports the dehumidier’s
base in its entirety. DO NOT
hang the B70DHV from its’
cabinet.
Allow for proper drainage and
routing of needed drain pipes.
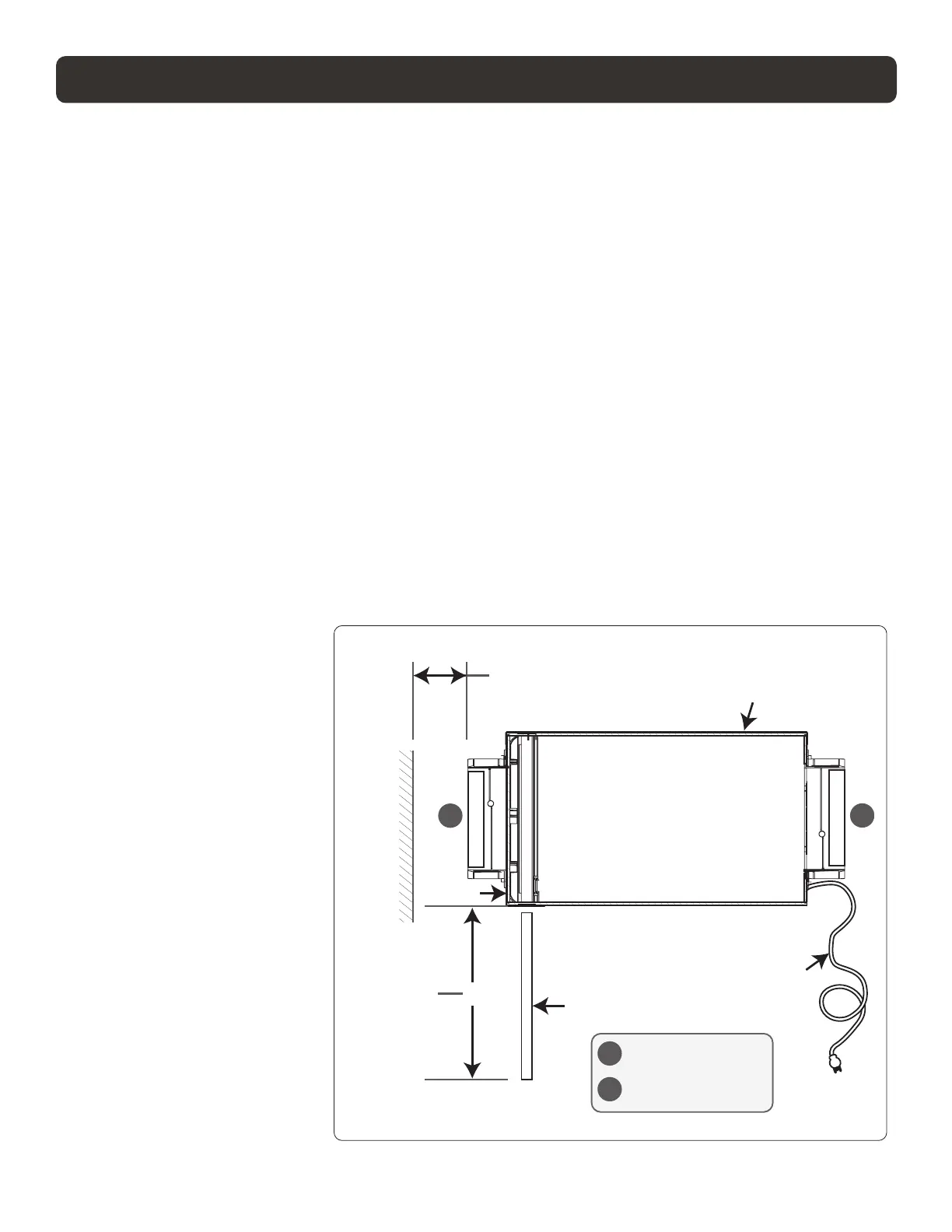
ELECTRICAL SERVICE
ACCESS THIS SIDE
6" MINIMUM CLEARANCE
FOR PROPER AIR FLOW
FILTER
9' POWER CORD
TOP VIEW
MINIMUM
CLEARANCE
FOR FILTER
(EITHER SIDE)
13"
B
B
RETURN AIR DUCT
SUPPLY AIR DUCT
A
B
C
A
DRAIN
ACCESS
DEHUMIDIFIER SET UP