EasyManua.ls Logo

Bryant 3-PHASE 601A - Page 10

Bryant 3-PHASE 601A
26 pages
Print Icon
To Next Page IconTo Next Page
To Next Page IconTo Next Page
To Previous Page IconTo Previous Page
To Previous Page IconTo Previous Page
Loading...
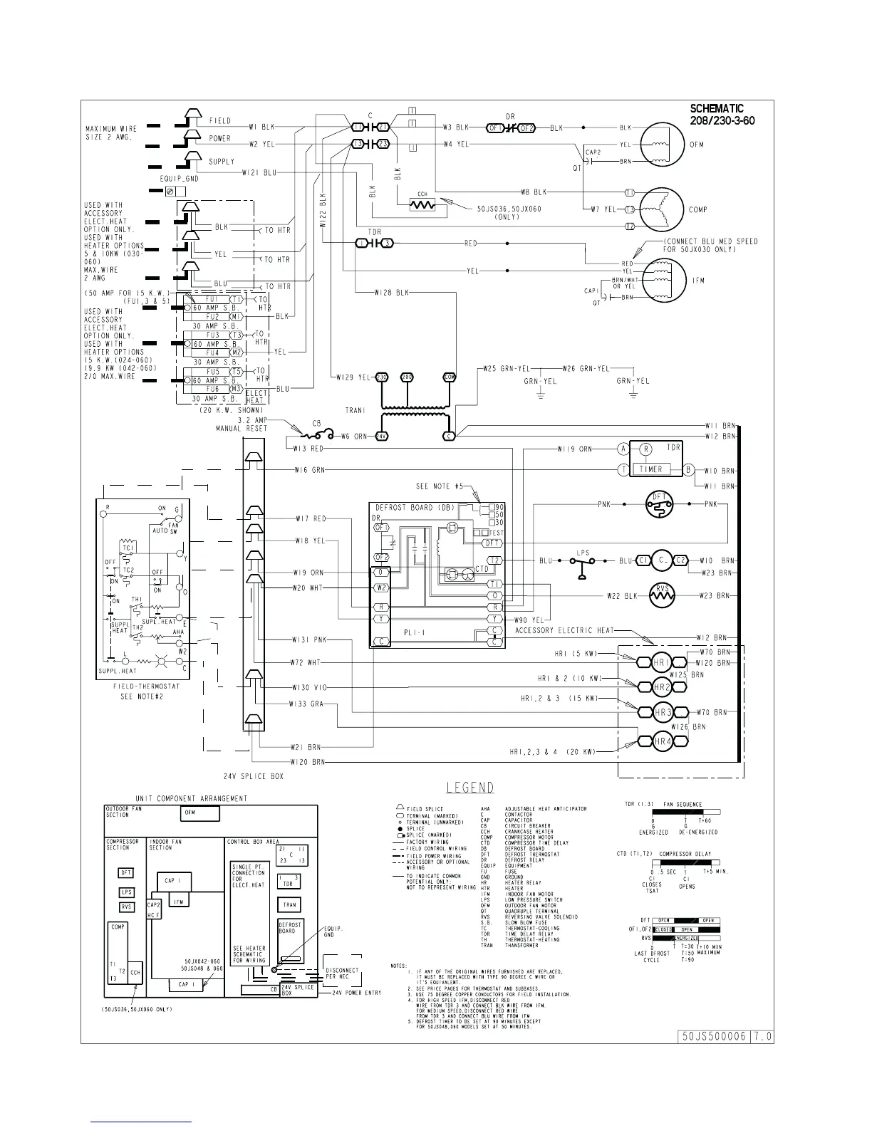
Fig. 12—Wiring Schematics (208/230-3-60)
C00134
—10—

Related product manuals