EasyManua.ls Logo

Bryant 880TA - Page 5

Bryant 880TA
62 pages
Print Icon
To Next Page IconTo Next Page
To Next Page IconTo Next Page
To Previous Page IconTo Previous Page
To Previous Page IconTo Previous Page
Loading...
5
A190045
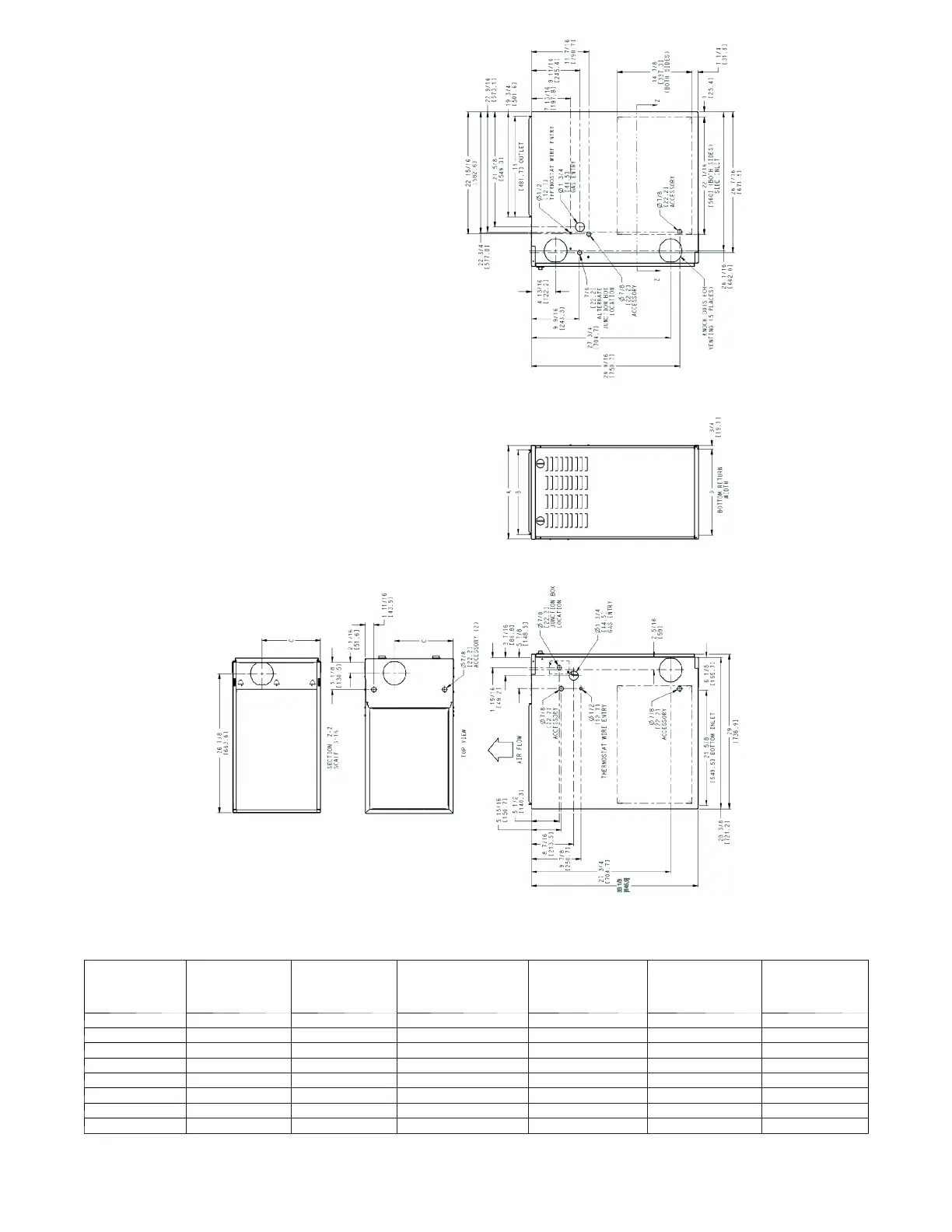
Fig. 3 -- Dimensional Drawing
Table 1 Dimensions -- In. (mm)
FURNACE SIZE
A
CABINET
WIDTH
B
OUTLET WIDTH
C
TOP AND
BOTTOM FL UE
COLLAR
D
BOTTOM
INLET WIDTH
VENT
CONNECTION
SIZE
SHIP WT.
LB (KG)
36045C17
17---1/2 (445) 15---7/8 (403) 11---9/16 (294) 16 (406) 4 (102) 118 (53.5)
36070C14
14---3/16 (360) 12---9/16 (319) 9---5/16 (237) 12---11/16 (322) 4 (102) 118 (53.5)
48070C17
17---1/2 (445) 15---7/8 (403) 11---9/16 (294) 16 (406) 4 (102) 126 (57.1)
60070C21
21 (533) 19---3/8 (492) 13---5/16 (338) 19---1/2 (495) 4 (102) 147 (66.7)
48090C17
17---1/2 (445) 15---7/8 (403) 11---9/16 (294) 16 (406) 4 (102) 134 (60.8)
60090C21
21 (533) 19---3/8 (492) 13---5/16 (338) 19---1/2 (495) 4 (102) 153 (69.4)
60110C21
21 (533) 19---3/8 (492) 13---5/16 (338) 19---1/2 (495) 4 (102) 156 (70.7)
66135C24
24---1/2 (622) 22---7/8 (581) 15---1/16 (383) 23 (584) 4 (102)* 169 (76.6)
*135 size fur nace require a 5 or 6 ---in. (127 or 152 mm) ven t. U se a vent adapter between furnace and vent stack. See Installation Instructions for complete
installation requirements.

Related product manuals