EasyManua.ls Logo

Bryant EVOLUTION 187B - Page 9

Bryant EVOLUTION 187B
44 pages
Print Icon
To Next Page IconTo Next Page
To Next Page IconTo Next Page
To Previous Page IconTo Previous Page
To Previous Page IconTo Previous Page
Loading...
9
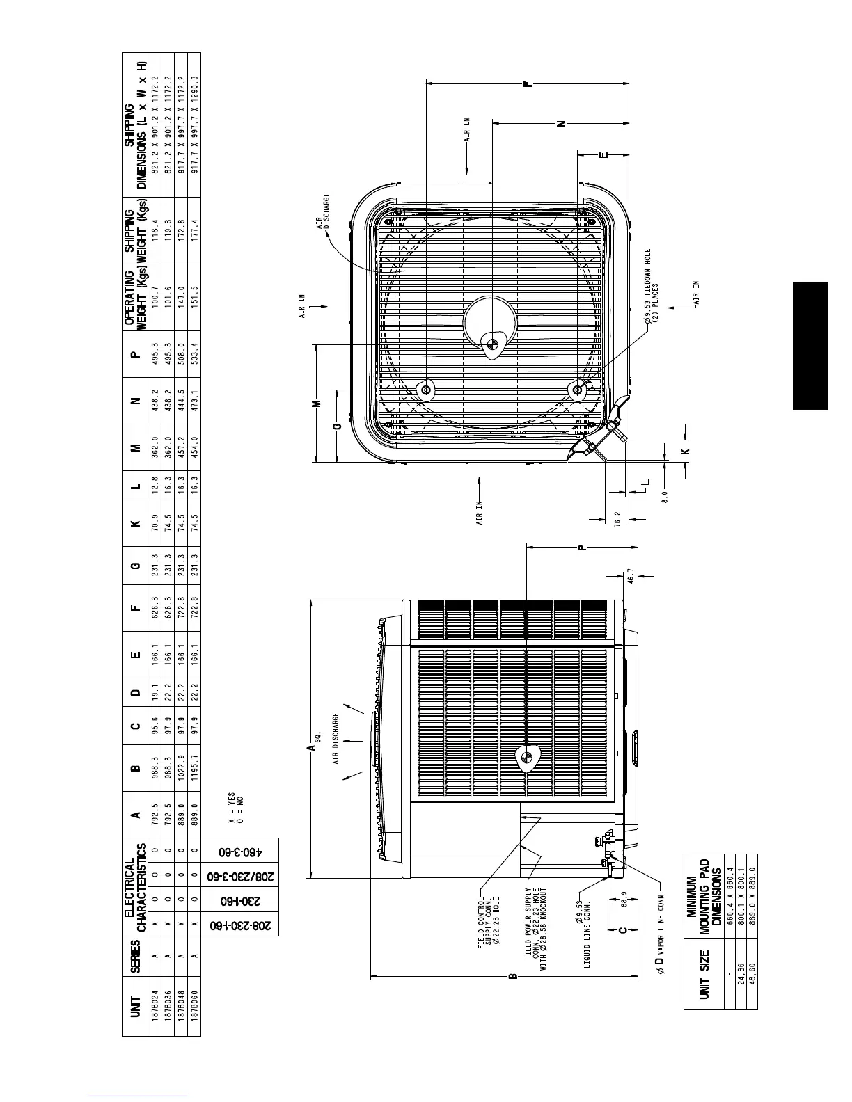
DIMENSIONS -- 187BNA 2--5 TON (SI)
A
B
C
88.9
46.7
P
E
F
N
G
M
L
76.2
8.0
230-1-60
208/230-3-60
460-3-60
- 660.4 X 660.4
24,36
48,60
UNIT SERIES
ELECTRICAL
CHARACTERISTICS
ABCDEFGKLMNP
OPERATING
WEIGHT (Kgs)
SHIPPING
WEIGHT (Kgs)
187B024 A X O O O 792.5 988.3 95.6 19.1 166.1 626.3 231.3 70.9 12.8 362.0 438.2 495.3 100.7 118.4
187B036 A X O 0 0 792.5 988.3 97.9 22.2 166.1 626.3 231.3 74.5 16.3 362.0 438.2 495.3 101.6 119.3
187B048 A X O 0 0 889.0 1022.9 97.9 22.2 166.1 722.8 231.3 74.5 16.3 457.2 444.5 508.0 147.0 172.8
187B060 A X O 0 0 889.0 1195.7 97.9 22.2 166.1 722.8 231.3 74.5 16.3 454.0 473.1 533.4 151.5 177.4
X = YES
O=NO
SQ.
FIELD CONTROL
SUPPLY CONN.
22.23 HOLE
CONN.
28.58 KNOCKOUT
D
AIR DISCHARGE
AIR IN
AIR IN
AIR IN
AIR IN
AIR
DISCHARGE
187B / 180B

Other manuals for Bryant EVOLUTION 187B

Related product manuals