EasyManua.ls Logo

Bticino TERRANEO-KIT - Wiring Diagrams; Base Wiring Diagram

Bticino TERRANEO-KIT
28 pages
Print Icon
To Next Page IconTo Next Page
To Next Page IconTo Next Page
To Previous Page IconTo Previous Page
To Previous Page IconTo Previous Page
Loading...
346000
230V~
Terraneo
9
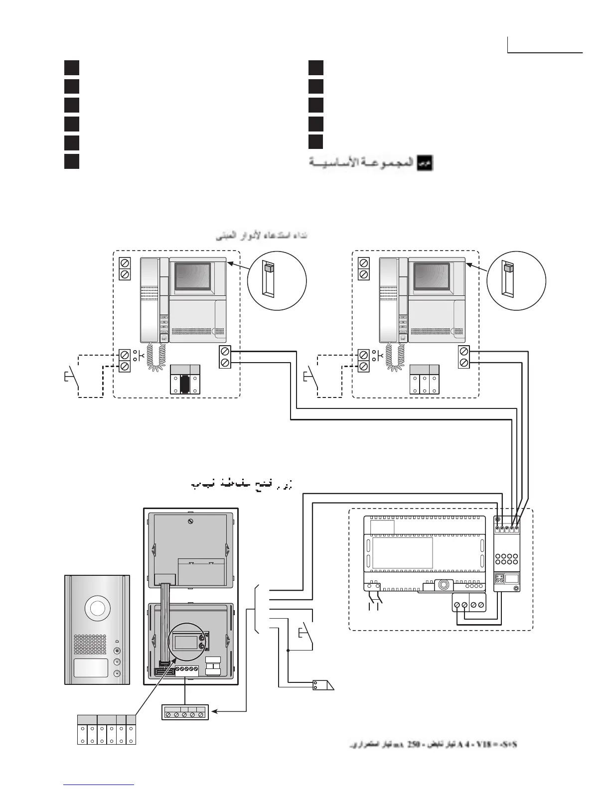
Schema base
I
Übersichtszeichnung
D
Schéma de base
F
Basic diagram
GB
Esquema básico
E
Basisschema
NL
Esquema de base
P
Hlektrikò sxediàgramma
GR
<fpjdfz c[tvf
RU
Temel flema
TR
Schemat podstawowy
PL
12
BUS PL S
+
S
-
12BUS
BUS
ET
B1
1
5
BUS
PL
S+
S-
A
ON
OFF
BUS
TK
PS
346830
BUS
PI
P NTS
BUS
ET
B2
1
5
ON
OFF
PNPN
1
21
A= Pulsante apertura serratura
Schalter Türöffner
Poussoir d'ouverture serrure
Door lock pushbutton
Pulsador apertura cerradura
Drukknop opening
Botão para abertura do trinco
Koympì anoìgmatoz kleidariàz
Ryjgrf jnrhsnbz pfvrf
Kapı kilidi açma dü¤mesi
Przycisk otwarcia zanka
B1+B2=
Chiamata al piano
Etagenruf
Appel à l’étage
Floor call
Llamada al piso
Oproep aan verdieping
Chamada ao piso
Klçsh ston òrofo
Dspjd yf 'nf;
Katta arama
Wywo∏anie na pi´trze
S+S- = 18V - 4A impulsivi - 250mA mantenimento
S+S- = 18V - 4A impulsstrom - 250mA Haltestrom
S+S- = 18V - 4A impulsifs - 250mA entretien
S+S- = 18V - 4A impulsive - 250mA holding current
S+S- = 18V - 4A impulsivos - 250mA mantenimiento
S+S- = 18V - 4A impulsief - 250mA onderhoud
S+S- = 18V - 4A instantâneos - 250mA continuos
S+S- = 18V - 4A palmikà - 250mA diatçrhshz
S+S- = !*D - $F bvgekmcyst - @%)vF gjllth;fybt
S+S- = 18V - 4A empülsiyonlu - 250mA muhafaza
S+S- = 18V - 4A impulsowe - 250mA utrzymanie

Other manuals for Bticino TERRANEO-KIT

Related product manuals