EasyManua.ls Logo

Buderus 21 - Page 10

Buderus 21
36 pages
Print Icon
To Next Page IconTo Next Page
To Next Page IconTo Next Page
To Previous Page IconTo Previous Page
To Previous Page IconTo Previous Page
Loading...
1 0
|
Panel Radiator
Design Manual
Panel Radiator Design Manual | 12.2009
Technical specications are subject to change without prior notice
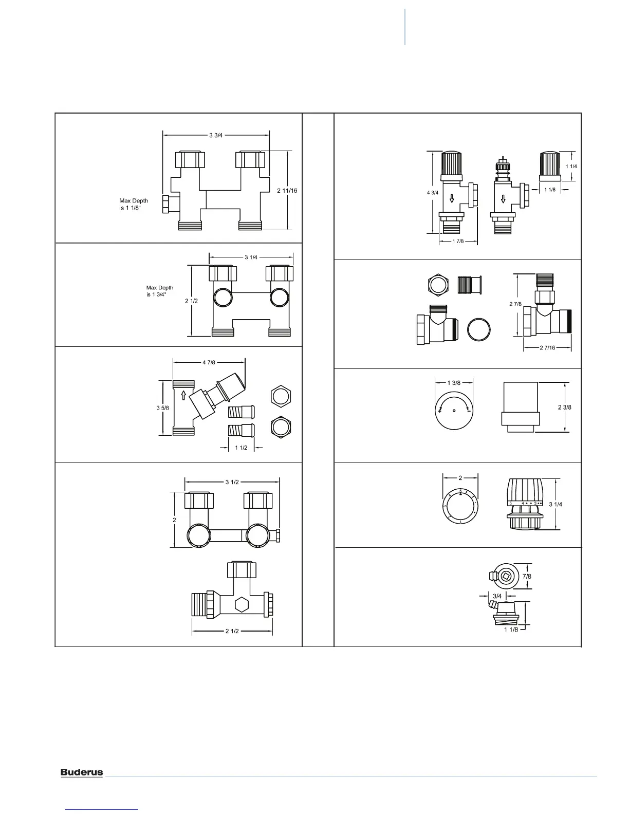
Part no. 1016311
Straight Diverter Valve
w/ isolation valves for
panel radiators
Part no. 1016362
Straight Crossover
Valve w/ isolation
valves for panel
radiators
Part no. 3L602502
Pressure Bypass
Valve 3/4" male
thread for panel
radiators and towel
racks
Part no. 82911060
Drain Valve w/
hose bib for panel
radiators
Part no. 013G81013
Single Valve, angled
with adjustment
facing down for towel
racks; Head can be
replaced with
thermostatic head
#013G8250 or
Part no. 3L0143
Angled Return
Elbow with
isolation valve for
towel racks
Part no. 013G5002
Manual Adjuster
for panel padiators
and towel racks
Part no. 013G8250
Danfoss
Thermostatic Head
for panel radiators
Part no. 1016312
Angled Diverter
Valve w/ adjustable
bypass and isolation
valves for panel
radiators
Fig. 1 Valve/accessory dimensions in inches

Other manuals for Buderus 21

Related product manuals