EasyManua.ls Logo

Bunn ITCB-DV - Page 79

Bunn ITCB-DV
79 pages
Print Icon
To Previous Page IconTo Previous Page
To Previous Page IconTo Previous Page
Loading...
Page 79
36748 111904
MEMORY
BOARD
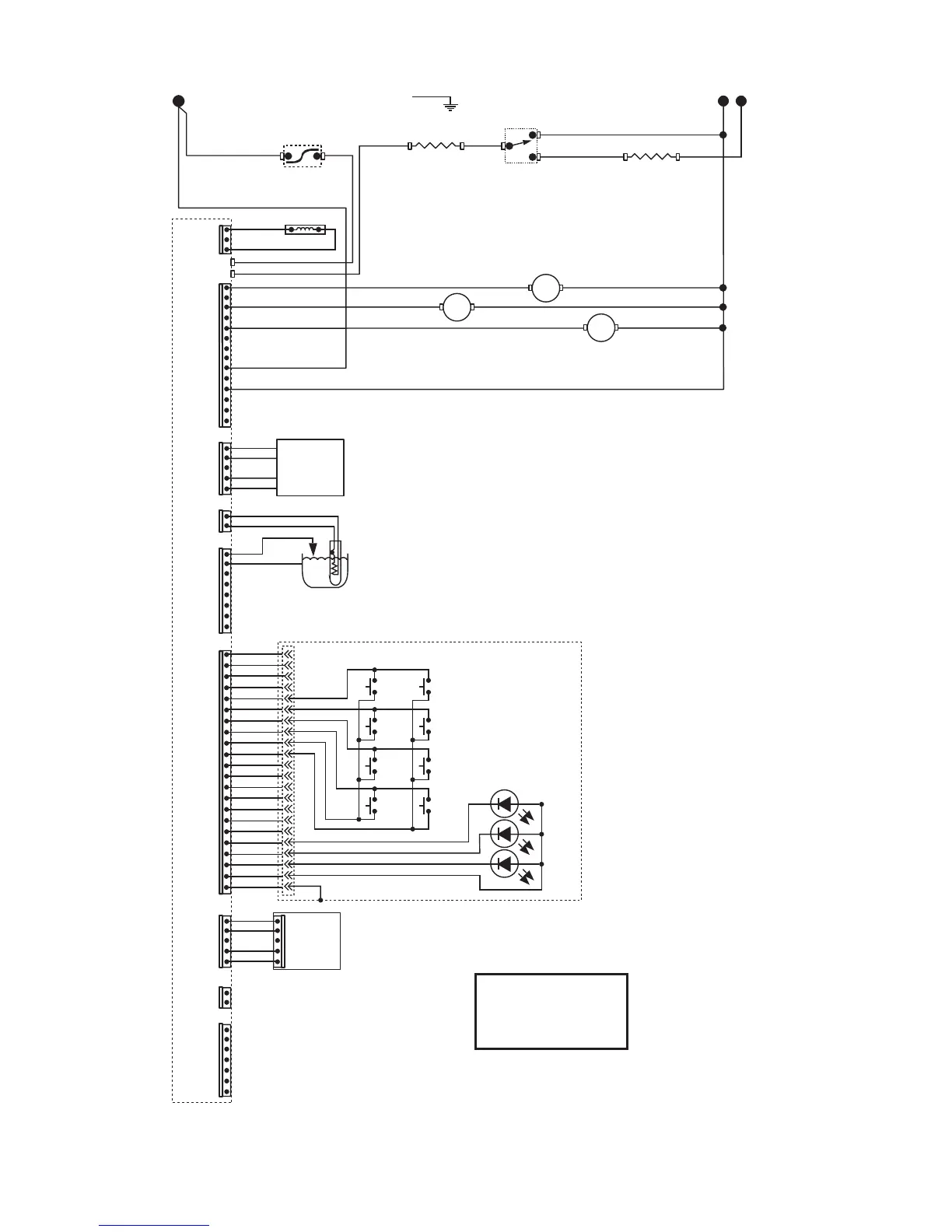
SCHEMATIC WIRING DIAGRAM ITCB-C-DV
36460.0002A 11/04 ©2004 BUNN-O-MATIC CORPORATION
L1
BLU-14
BLU-14
LIMIT
THERMOSTAT
WHI
WHI
WHI/VIO
WHI/VIO
WHI/VIO
WHI
WHI
REFILL
DISPENSE
J1-1
J1-2
J17-1
J17-5
J15-1
J15-5
J17-10
J17-14
C
O
N
T
R
O
L
P
C
B
O
A
R
D
COM
N.O.
VIO
BLK
BLK-14
BLK-14
BLK-14
WHI/GRN
WHI/GRN
WHI/BLU
WHI
WHI/BLU
FUNNEL SENSOR
120V AC 2 WIRE
120/208V AC 3 WIRE
120/240V AC 3 WIRE
SINGLE PHASE
BLK
BLK
RED
WHI
GRN
CONTROL PANEL ASSY
J2-1
1
22
J2-5
J2-15
J2-20
J2-22
J2-10
PROG L
BREW
A
PROG R
BREW
C
STATIC
SHIELD
J3-1
J3-8
J3-5
BLK
PNK
WHI
GRN
LEVEL
PROBE
t
WHI-14
GRN
N L2
WHI/VIO-14
BLU-14
N L2
RED-14
TANK HEATER
1425W
TANK HEATER
1800W
SELECTOR
SWITCH
J13-1
DILUTION
SOL
SOL
SOL
TRANSFORMER
10VA
J16-1
J16-5
J18-1
J9-1
J9-7
13
FULL
FULL
HALF
HALF
ON/OFF
ON/OFF
BREW
B

Other manuals for Bunn ITCB-DV

Related product manuals