EasyManua.ls Logo

Bunn Titan - Titan Dual Brewer Dimensions and Specifications; Brewing Capacity and Electrical Requirements; Plumbing and Water Flow Requirements

Bunn Titan
2 pages
Print Icon
To Previous Page IconTo Previous Page
To Previous Page IconTo Previous Page
Loading...
BUNN
®
practicescontinuousproductresearchandimprovement.Wereservetherighttochangespecicationsandproductdesignwithoutnotice.Such
revisionsdonotentitlethebuyertocorrespondingchanges,improvements,additionsorreplacementsforpreviouslypurchasedequipment.
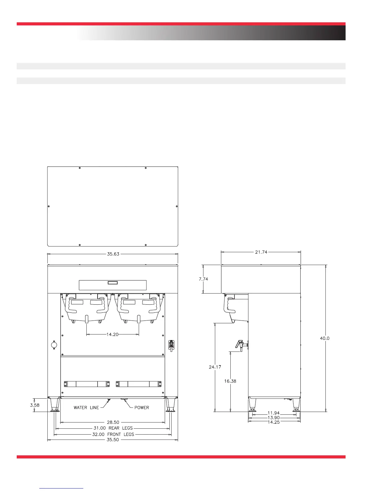
Alldimensionsshownininches.
Dimensions & Specifications
Bunn-O-Matic
®
Corporation-1400StevensonDriveSpringeld,Illinois62703•800-637-8606•217-529-6601•Fax217-529-6644•www.bunn.com
Model Product # Volts Amps Total Brewing Cu. Shipping Funnel Cord
Watts Capacity Ft. Weight Locks Attached
TitanDual 39200.0000 120/208 33.4 12000 34.3gal/hr 27 148lbs. Yes No
(3-phase)
*120/20840.18200 22.9gal/hr 27 148lbs. Yes No
(single-phase)
TitanDual 39200.0001 120/240 28.9 12000 34.3gal/hr 27 148lbs. Yes No
(3-phase)
*120/240358200 22.9gal/hr 27 148lbs. Yes No
(single-phase)
Brewing capacity: based upon incoming water temp of 60ºF (140ºF rise).
Models listed as 120/208V or 120/240V must be connected to 208V or 240V electrical service respectively. Please refer to the installation manual.
*Brewer can easily be rewired in the field for single-phase operation.
Electrical: Breweris4-wiresplusgroundservicerated120/208Vor120/240V,3-phase,60Hz.
Plumbing: 20-90psi(138-621kPa).Machinesuppliedwith
3
8
"malearetting.Requires4gpmminimumwaterow.
12/08 © Bunn-O-Matic Corporation

Related product manuals