EasyManua.ls Logo

Bush Hog DHM7 - Page 142

Bush Hog DHM7
146 pages
Print Icon
To Next Page IconTo Next Page
To Next Page IconTo Next Page
To Previous Page IconTo Previous Page
To Previous Page IconTo Previous Page
Loading...
MAINTENANCE
DHM7 05/21 Maintenance Section 5-6
© 2021 Alamo Group Inc.
MAINTENANCE
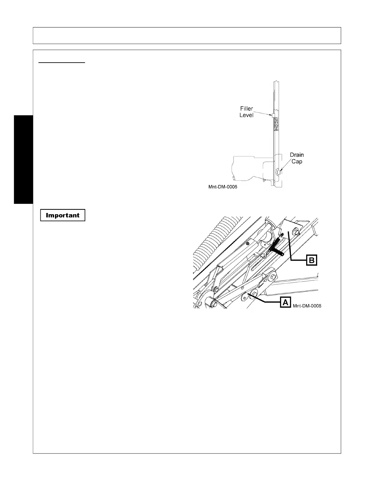
Disk Carrier Bar
Use SAE EP 80 W 90 oil in quantities listed:
Model DHM7........................... .66 Gallons
Oil is added and the oil level is checked when the
disk carrier bar is vertical (it MUST be in the vertical
position for at least 5 minutes). In order to fill with
oil, unscrew both caps, filler and level, and pour in
the amount shown or the amount needed to top to
the level through the hole in cap (tilt bar slightly if
necessary so it is easier to pour in oil) until the level
of filler cap is reached.
Check every 8 hours and keep
clean the area between A and
frame. Dust and dirt can
accumulate. Check that lever A
does not remain in the upright
position.
NOTE: Dispose of used oil properly.

Related product manuals