EasyManua.ls Logo

Cambridge Engineering S2200 - Page 17

Default Icon
78 pages
Print Icon
To Next Page IconTo Next Page
To Next Page IconTo Next Page
To Previous Page IconTo Previous Page
To Previous Page IconTo Previous Page
Loading...
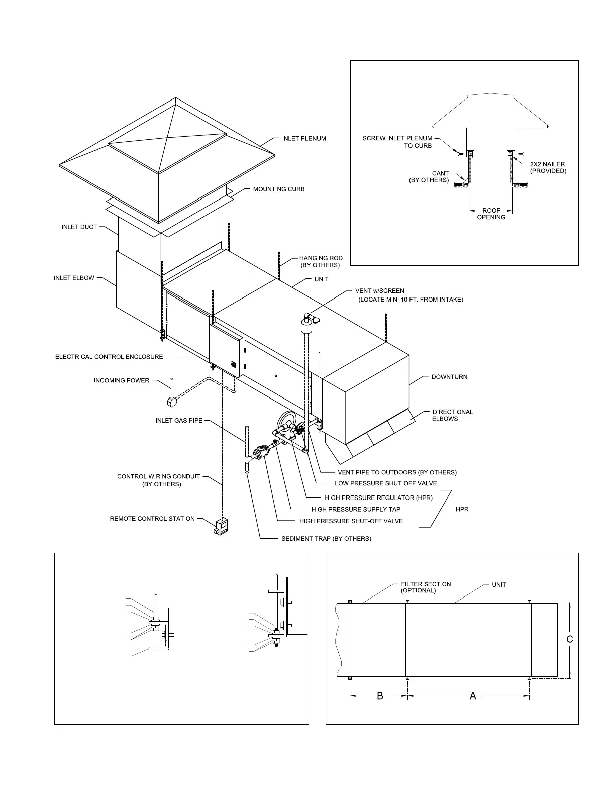
S-Series Technical Manual 15 Cambridge Engineering, Inc.
CURB DETAIL
FILTER SECTION (OPTIONAL)
TREATED LUMBER (THICKNESS OF ROOF INSULATION) AS
REQUIRED UNDER MOUNTING CURB TO SECURE AND LEVEL
THE UNIT AND TO SPREAD THE LOAD. (BY OTHERS)
TYPICAL INSTALLATION
UNDER ROOF MOUNTING
HANGING ROD DETAILHANGING BRACKET DETAIL
HANGING ROD
WASHER
WASHER
NUT
DOUBLE LOCK NUTS
DOUBLE LOCK NUTS
SHIPPING POSITION
NUT
WASHER
WASHER
HANGING ROD
L BRACKET
FOR S400 - S800 UNITS
C BRACKET
FOR S950 - S3200 UNITS
HANGING RODS, NUTS AND WASHERS BY OTHERS

Related product manuals