EasyManua.ls Logo

C&M Britony FlexiFlu - Preparing and fitting the appliance

C&M Britony FlexiFlu
24 pages
Print Icon
To Next Page IconTo Next Page
To Next Page IconTo Next Page
To Previous Page IconTo Previous Page
To Previous Page IconTo Previous Page
Loading...
33..33 FFlluuee LLeennggtthh
Minimum Wall Thickness 3 in (75 mm)
8
FFiigg.. 66
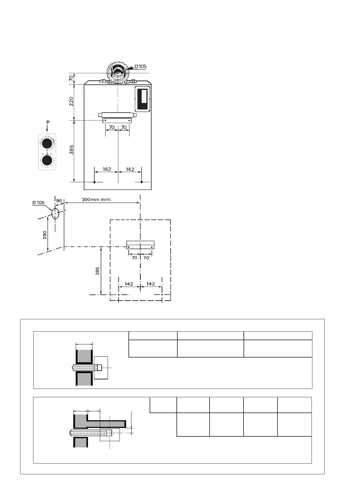
33..22 PPrreeppaarriinngg aanndd ffiittttiinngg tthhee aapppplliiaannccee
PPrreeppaarraattiioonn ::
- Remove the bottom trim by pulling forwards.
- Slide the controls facia plate (P) upwards to disen-
gage from retaining bracket.
-
Release the front case by removing the four fixing
screws and washers positioned at the top, bottom
and centre of appliance.
- Remove the front case by lifting off the top locating
lugs and pulling forward to clear the water section
at the base of the appliance.
NNOOTTEE ::
A template is not supplied with this appliance.
Particular care is therefore necessary to ensure that
the appliance mounting bracket is fitted level and
positioned accurately. When using extended flues,
a fall fo 5 mm per metre length should be provi-
ded. (Fr
om turret to terminal) (see Fig. 5).
- Refer to the drawings opposite for rear and side flue
applications and/or to the dimensions given.
- Set out an drill hole 290 mm (11.4 in) accurately
mark position for bracket.
- Drill and plug the wall.
- Fix bracket to wall using No. 12 screws provided,
ensuring that the bracket is level. If necessary
adjust bracket, finally secure in position.
- Hang the appliance on the bracket, and re-check for
level. Mark bottom fixing holes, removes applian-
ce, drill and plug the wall to suit No 12 screws.
- Re-hang appliance and secure with screws provi-
ded.
Rear Outlet Wall thickness Up to 612.5 mm Over 612.5 mm
Delivered with Extension available
appliance
Pt No 1008520
Flue duct length = wall thickness + 25 mm
Air inlet duct length = wall thic
kness + 25 mm
Pt No. 1008520
Side Outlet EM Up to 500 mm 1401 mm 2300 mm
+ DM 500 mm to 1400 to 2300 to 2787
Deliv
.
1 e
xtern. 2 extern. 3 extern.
With Pt No 2 x 3 x
appliance
1008520 1008520 1008520
EM
= Wal thickness Flue duct length EM + DM + 130 mm
DM = Distance from w
all to case
Air inlet duct length EM + DM + 130 mm
FFiigg.. 55
EM
90 mm
EM DM
EM
90 mm
EM DM
3.5 ins

Related product manuals