EasyManua.ls Logo

Candy CITT642C - Before Locating the Fixing Brackets; Adjusting the Bracket Position

Candy CITT642C
150 pages
Print Icon
To Next Page IconTo Next Page
To Next Page IconTo Next Page
To Previous Page IconTo Previous Page
To Previous Page IconTo Previous Page
Loading...
When you have installed the hob, make sure that
the power supply cable is not accessible through cupboard doors or drawers
there is adequate flow of fresh air from outside the cabinetry to the base of the
hob
if the hob is installed above a drawer or cupboard space, a thermal protection
barrier is installed below the base of the hob
the isolating switch is easily accessible by the customer
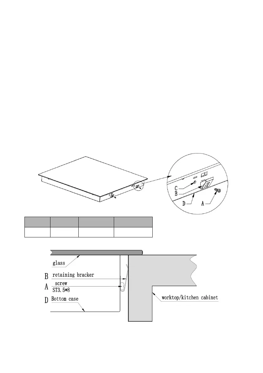
Before locating the fixing brackets
The unit should be placed on a stable, smooth surface (use the packaging). Do not
apply force onto the controls protruding from the hob.
Adjusting the bracket position
Fix the hob on the work surface by screw 4 brackets on the bottom case of hob
(see picture) after installation.
A
B
C
D
Screw
Bracket
Screw hole
Bottom case

Table of Contents

Related product manuals