EasyManua.ls Logo

Canon PC400 - Page 63

Canon PC400
306 pages
Print Icon
To Next Page IconTo Next Page
To Next Page IconTo Next Page
To Previous Page IconTo Previous Page
To Previous Page IconTo Previous Page
Loading...
COPYRIGHT © 1998 CANON INC. CANON PC400/420/430,FC200/220 REV.0 JAN.1998 PRINTED IN JAPAN (IMPRIME AU JAPON)
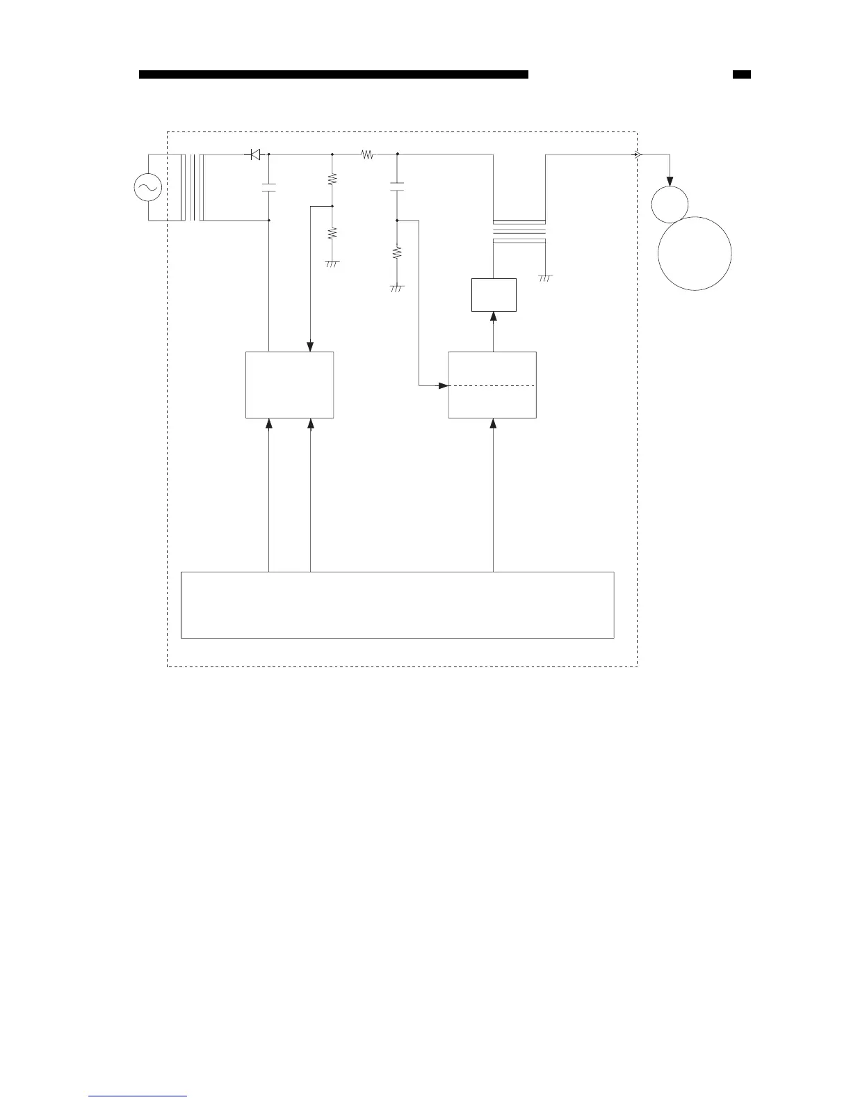
CHPTER 4 IMAGE FORMATION SYSTEM
4-5
Primary
charging
roller
Photo-
sensitive
drum
Amplifier
Microprocessor
DC bias
control circuit
Transformer
(T103)
Transformer
(T106)
DC current detection
DC bias high output
command (HVPHO)
DC bias ON command
(HVPDC)
AC bias ON command
(HVPAC)
Current detection
J6
DC controller/DC power supply PCB
Oscillation
control circuit
Oscillation
circuit
Figure 4-101C

Table of Contents

Other manuals for Canon PC400

Related product manuals