EasyManua.ls Logo

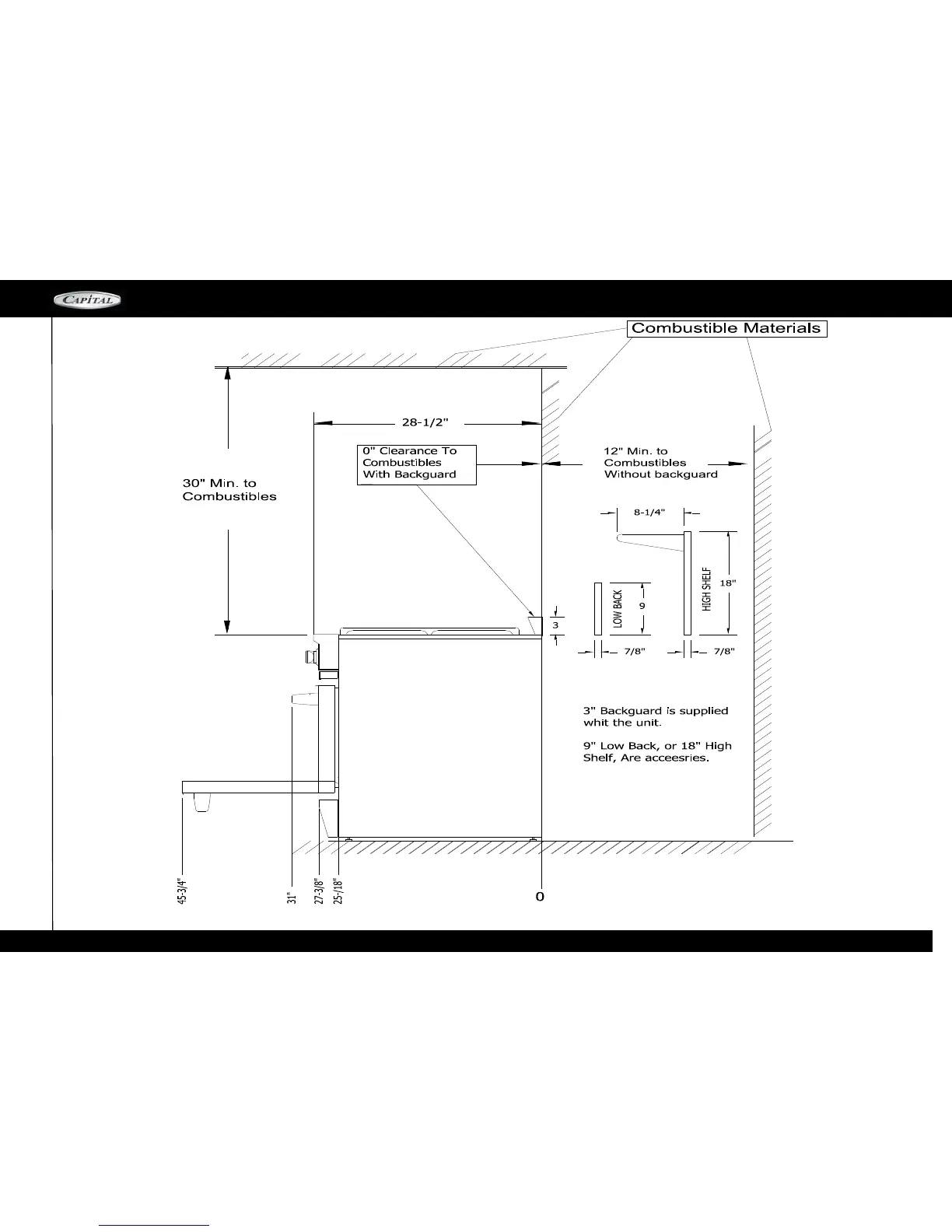
Capital MCR366 - Cabinet Installation Clearances (Side View); FIG 2. Cabinet Clearances

Capital MCR366
42 pages
Print Icon
To Next Page IconTo Next Page
To Next Page IconTo Next Page
To Previous Page IconTo Previous Page
To Previous Page IconTo Previous Page
Loading...
36
CABINET INSTALL DRAWING / SIDE VIEW
MCR-SERIES
FIG 2

Related product manuals