EasyManua.ls Logo

Carrier 40MAQB12B--3 - Wiring Diagram and Control Board Table (Size 36 k)

Carrier 40MAQB12B--3
76 pages
To Next Page IconTo Next Page
To Next Page IconTo Next Page
To Previous Page IconTo Previous Page
To Previous Page IconTo Previous Page
Loading...
26
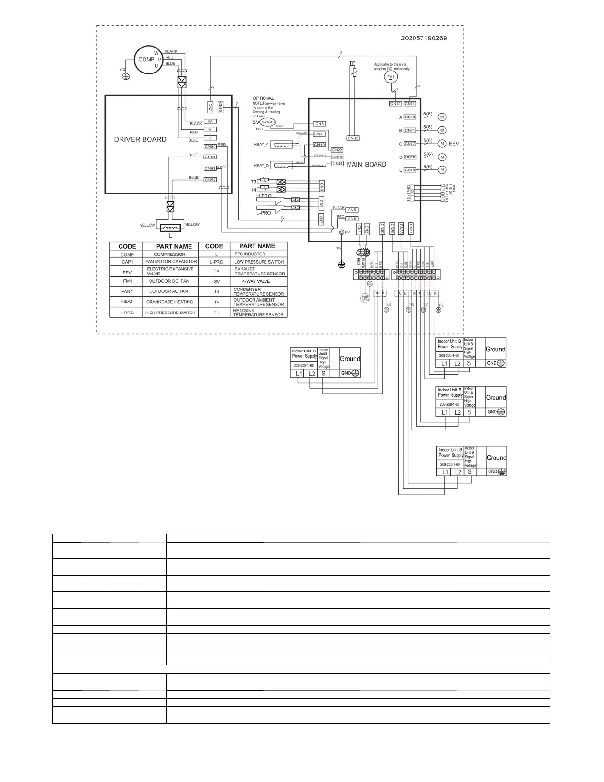
Fig. 21 Wiring Diagram 36k
Table 14—Outdoor Unit Control Board Size 36
CODE PART NAME
CN17/CN18/CN19/CN20/CN21 Output:Pin5&6(12V) Pin1-- Pin4:Pulse waveform,(0-- 12V)
CN8 Input:Pin3~4 (5V) Pin2(0V),Pin1,Pin5(0--5V)
CN33 Input:Pin1 (0 --5V) Pin2(5V)
CN4~CN40CN10~CN44 Output: CN4~CN40CN10~CN44230VAC High voltage
CN3~CN22 Output: High voltage for 4--way control
CN1~CN2 Input:230VAC High voltage
CN9 InputPin1,Pin3(0V)Pin2,Pin40~5V
P--1 Connection to the earth
CN27,CN28,CN29,CN30 Output: Pin1Connection of the high voltage),Pin2~Pin3230VAC High voltage
CN13 Input: Pin1,Pin3,Pin5(5V)Pin2,Pin4,Pin60~5V
CN12 Output: Pulse(0--200VAC) for DC FAN
CN11 Output: Pulse(0--200VAC) for DC FAN
CN5~CN6 Output: 230VAC High voltage
CN7
input: Pin1~Pi n312VDC),Pi n2~P i n3(5VDC),P i n4~P i n30~5V D C),P i n5~P i n30~5V D C),Pin6~Pi n30~5V D C,
Pin7~Pin30~5VDC
OUTDOOR UNIT IPM BOARD
CN4~CN5 Output: 230VAC High voltage
CN2,CN3 Connect to Reactor, (270~370VDC)
CN6 Output: Pin1~Pin217VDC
CN1 Output: Pin1~Pin312VDC),Pin2~Pin35VDC),Pin4~Pin30~5VDC),Pin5~Pin30~5VDC),
CN11~CN12 Output: 270~370VDC High voltage
U~V~W Connect to compressor voltage among phases 0~200VAC

Related product manuals