EasyManua.ls Logo

Carrier 48FP - Page 39

Carrier 48FP
116 pages
Print Icon
To Next Page IconTo Next Page
To Next Page IconTo Next Page
To Previous Page IconTo Previous Page
To Previous Page IconTo Previous Page
Loading...
39
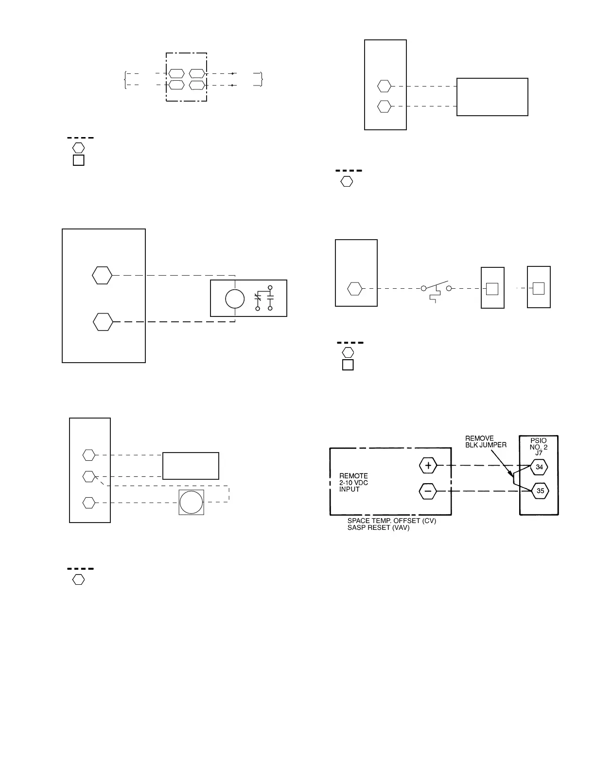
TO 24-V
ISOLATED
TRANSFORMER
BRN
RED
CFM ACY
OUTDOOR
AIR
24V
24V
+
-
PNK
BLK
PSIO
NO. 2
CH. 35
PSIO NO. 2
J6
41
42
RELAY PART.
NO.HK35AB001
PSIO
NO. 2
J6
HUM VLV
CARRIER PART NO.
HK35AB001
43
44
45
+
+
-
HUMIDIFIER
ACTUATOR
HUMIDIFIER
RELAY
HUM
R
37
38
HYD VLV
HYDRONIC VALVE
ACTUATOR
PSIO
NO. 2
J6
+
-
TB2
31
PSIO
NO. 2
J7
TB2
5
14
SIZES
034-048
SIZES
054-104
LEGEND
Fig. 25 — Hydronic Heating
TB
Terminal Block
Field Wiring
Component Terminal
LEGEND
Fig. 26 — Freezestat
TB
Terminal Block
Field Wiring
Component Terminal
Terminal Block Terminal
LEGEND
Fig. 22 — Outdoor Airflow Control
TB
Terminal Block
Field Wiring
Component Terminal
Terminal Block Terminal
LEGEND
Fig. 24 — Humidifier
TB
Terminal Block
Field Wiring
Component Terminal
LEGEND
Fig. 27 — Remote Supply Air Temperature
Reset/Space Temperature Offset
CV
Constant Volume
SASP
Supply-Air Set Point
VAV
Variable Air Volume
Fig. 23 — Timed Discrete Output

Table of Contents

Related product manuals