EasyManua.ls Logo

Carrier 48FP - Page 42

Carrier 48FP
116 pages
Print Icon
To Next Page IconTo Next Page
To Next Page IconTo Next Page
To Previous Page IconTo Previous Page
To Previous Page IconTo Previous Page
Loading...
42
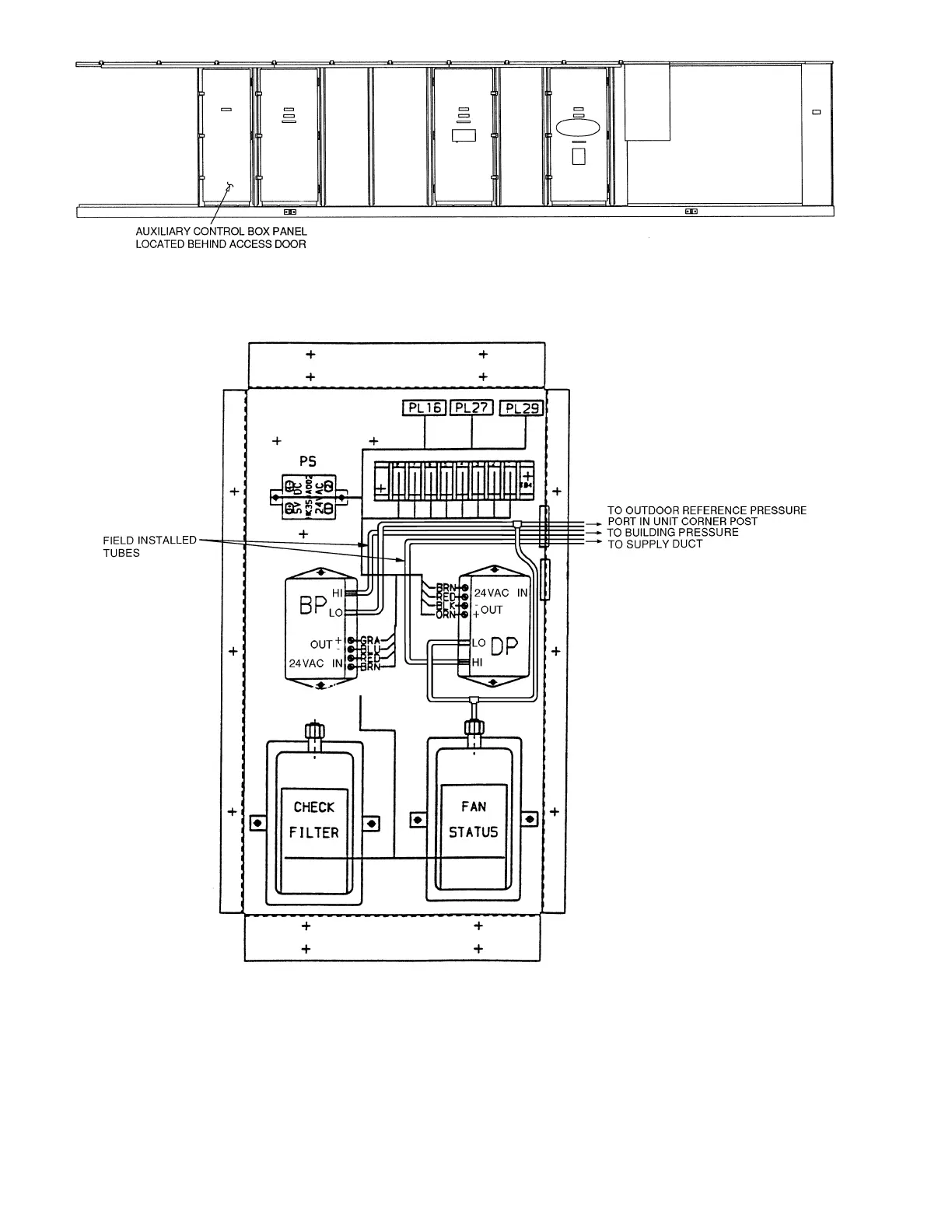
Fig. 32 — Auxiliary Control Box Details; Size 034-048 Units
LEGEND
BP
Building Pressure
DP
Duct Pressure
PL
Plug
PS
Pressure Switch
Fig. 31 — Auxiliary Control Box Location; Size 054-104 Units

Table of Contents

Related product manuals