EasyManua.ls Logo

Carrier 48FP - Page 79

Carrier 48FP
116 pages
Print Icon
To Next Page IconTo Next Page
To Next Page IconTo Next Page
To Previous Page IconTo Previous Page
To Previous Page IconTo Previous Page
Loading...
79
054
064
074, 078
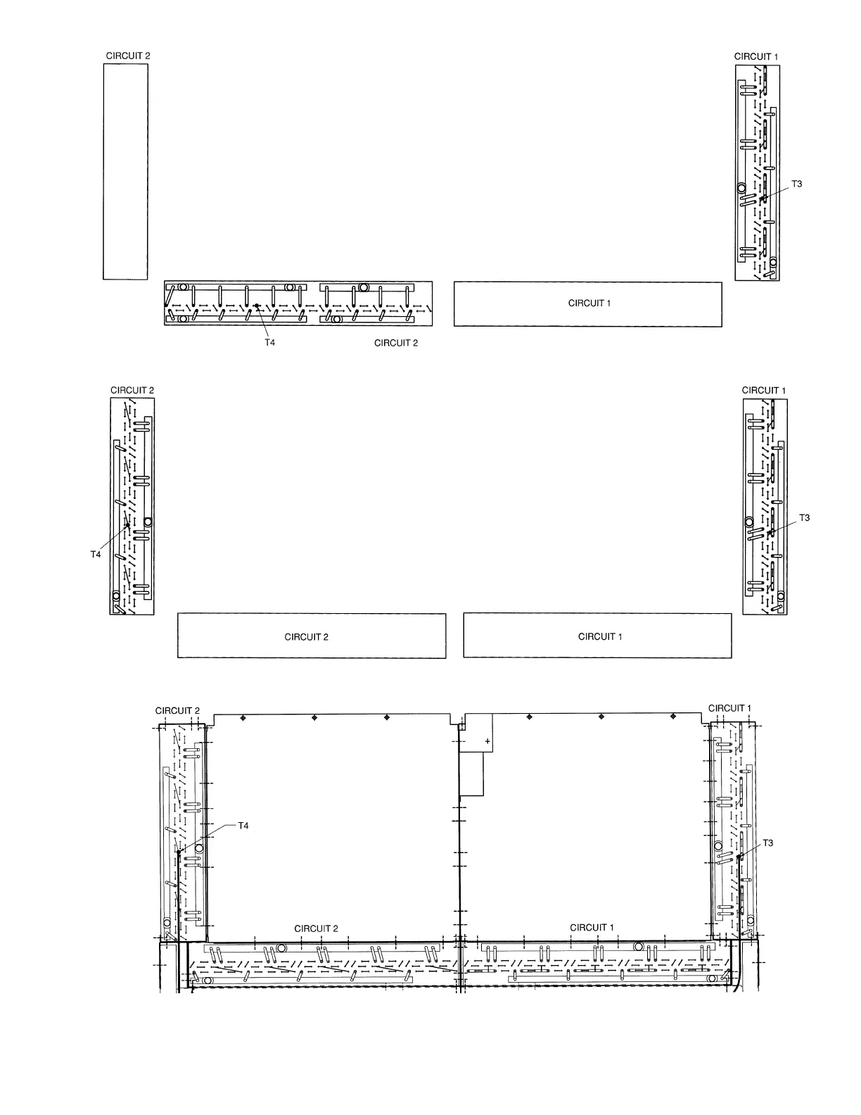
NOTE: Blank coils are included on size 054, 064 units only for relative position. Detail is provided for coils where thermistors are located.
Fig. 40 — Thermistor T3 and T4 Locations, Size 054-104 Units; Header End of Coil

Table of Contents

Related product manuals