EasyManua.ls Logo

Carrier 48PG20 - Page 73

Carrier 48PG20
112 pages
Print Icon
To Next Page IconTo Next Page
To Next Page IconTo Next Page
To Previous Page IconTo Previous Page
To Previous Page IconTo Previous Page
Loading...
73
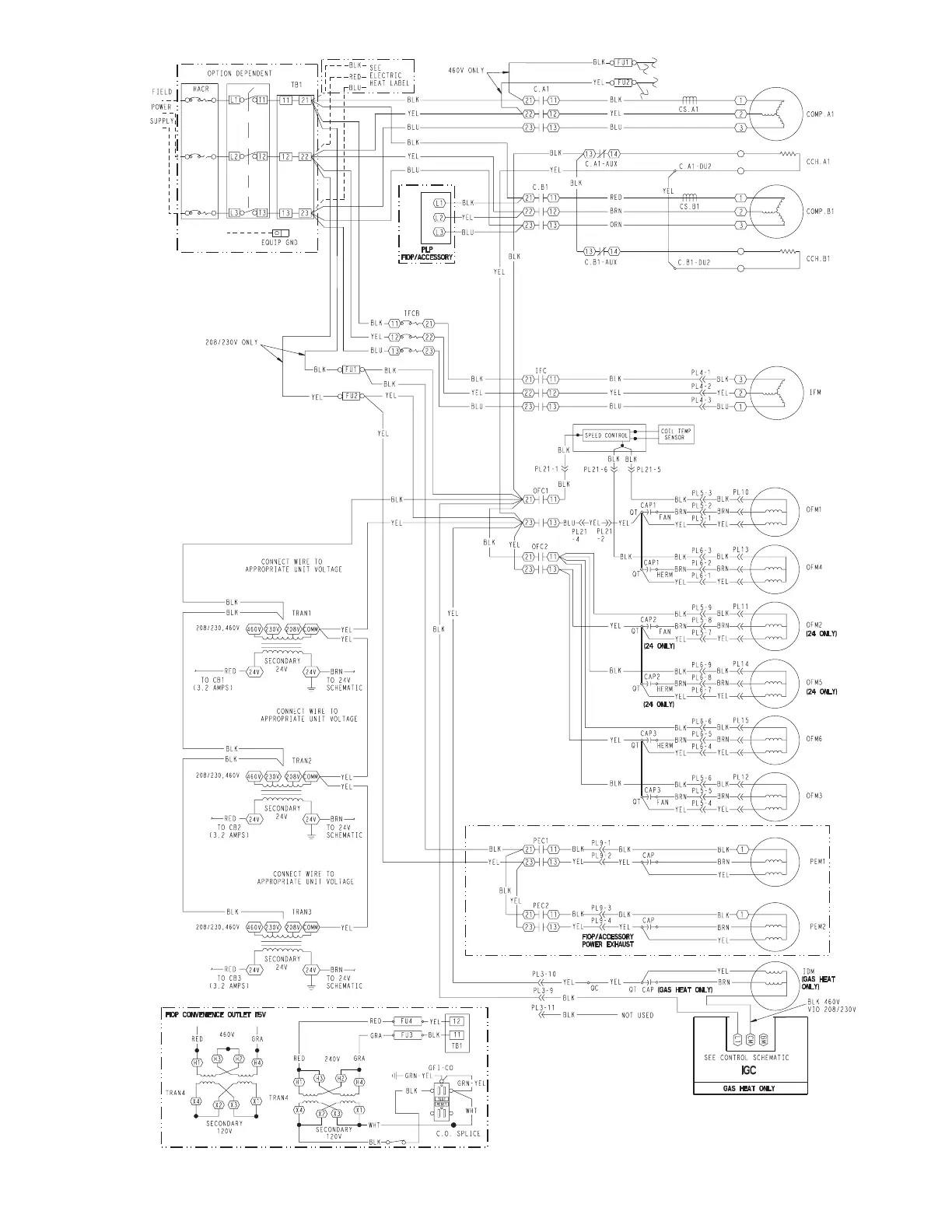
Fig. 19 — Power Schematic — Units with Humidi-MiZer™ System
a48-8228

Table of Contents

Related product manuals