EasyManua.ls Logo

Carrier 48TC*D - Sensor and Controller Tests; Sensor Alarm Test; Controller Alarm Test

Carrier 48TC*D
98 pages
To Next Page IconTo Next Page
To Next Page IconTo Next Page
To Previous Page IconTo Previous Page
To Previous Page IconTo Previous Page
Loading...
20
A
E
F
C
D
B
C08246
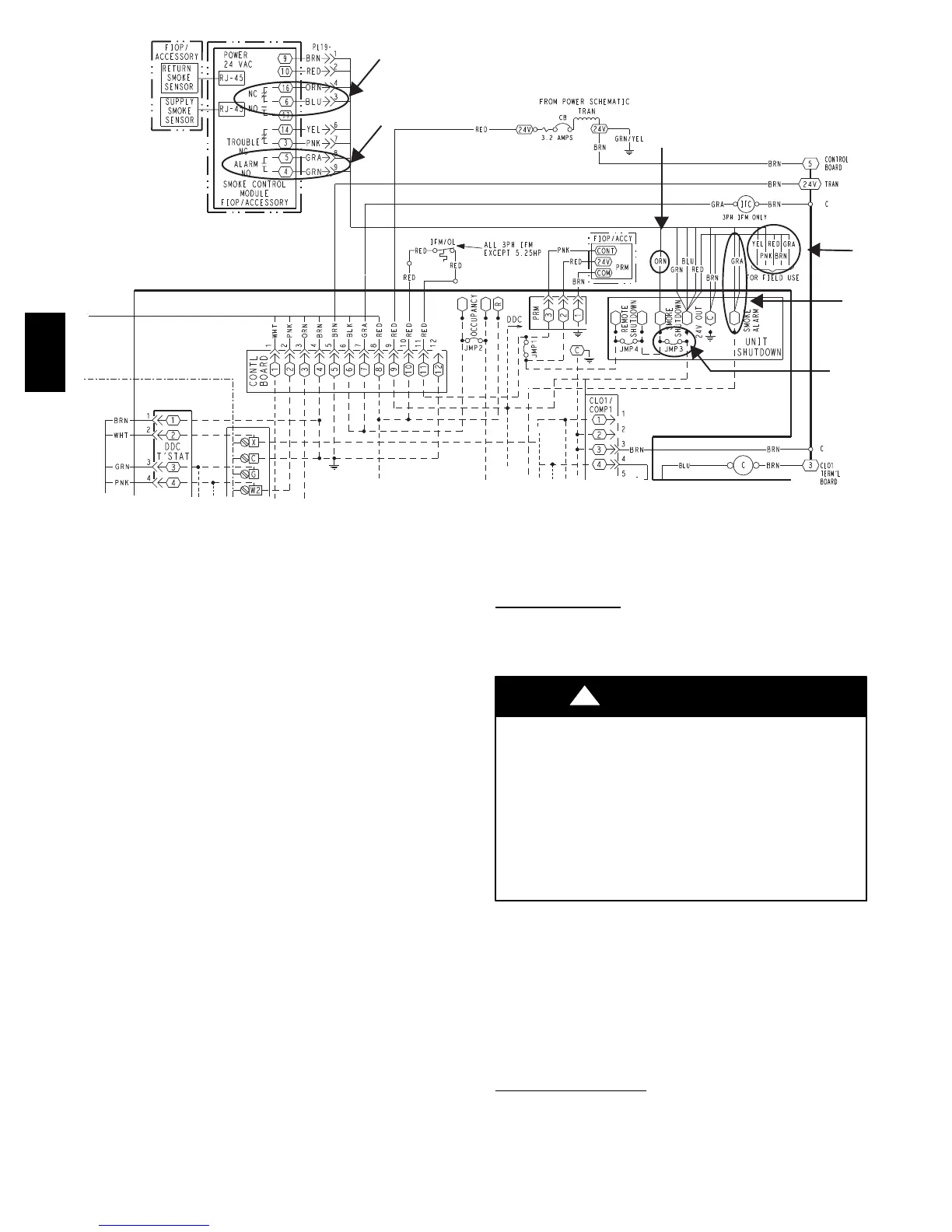
Fig. 25 -- Typical Smoke Detector System Wiring
Highlight C: 24--v power signal via ORN lead is removed
at Smoke Detector input on LCTB; all unit operations
cease immediately.
PremierLinkt and RTU--MP Controls: Unit operating
functions (fan, cooling and heating) are terminat ed as
described above. In addition:
Highlight D: On smoke alarm c ondition, the smoke
dete ctor NO Alarm c ontact will close, supplying 24--v
power to GRA conductor.
Highlight E: GRA lead at Smoke Alarm input on LCTB
provides 24--v signal to FIOP DDC control.
PremierLink: This signal is conveyed to PremierLink
FIOP’s TB1 at terminal TB1--6 (BLU lead). This signal
initiates the FSD sequence by the PremierLink control.
FSD status is reported to c onnected CCN network.
RTU--MP: The 24--v signal i s conveyed to RTU--MP’s
J1--10 input terminal. This signal initiates the FSD
sequence by the RTU--MP control. FSD status is reported
to connected BAS network.
Using Remote Logic: Five conductors are provided for
field use (see Highlight F) for additi onal annunciation
functions.
Additional Applicat ion Data Refer to Catalog No.
HKRNKA--1XA for discussions on additional control
features of these smoke detectors including multiple unit
coordination. (See Fig. 25.)
Sensor and Controller Tests
Sensor Alarm Test
The sensor alarm test checks a sensors ability to signal an
alarm state. This test requires that you use a field provided
SD--MAG test magnet.
OPERATIONAL TEST HAZARD
Failure to follow this caution may result in personnel
and aut hority concern.
This test places the duct detector into the alarm state.
Unless part of the test, disconnect all auxiliary
equipment from the controller before performing t he
test. If the duct detector is connected to a fire alarm
system, notify the proper authorities before
performing the test.
CAUTION
!
Sensor Alarm Test Procedure
1. Hold the test magnet where indicated on the side of
the sensor housing for seven seconds.
2. Verify that the sensors Alarm LED turns on.
3. Reset the sensor by holding the test ma gnet against
the sensor housing for two seconds.
4. Verify that the sensors Alarm LED turns off.
Controller Alarm T
est
The controller alarm test checks the controllers ability to
initiate and indicate an alarm state.
48TC

Related product manuals