EasyManua.ls Logo

Carrier 58STA - Gas Piping

Carrier 58STA
49 pages
Print Icon
To Next Page IconTo Next Page
To Next Page IconTo Next Page
To Previous Page IconTo Previous Page
To Previous Page IconTo Previous Page
Loading...
GAS PIPING
FIRE OR EXPLOSION HAZARD
Failure to follow this warning could result in personal injury,
death and/or property damage.
Never purge a gas line into a combustion chamber. Never test
for gas leaks with an open flame. Use a commercially
available soap solution made specifically for the detection of
leaks to check all connections.
FIRE OR EXPLOSION HAZARD
Failure to follow this warning coud result in personal injury,
death, and/or property damage.
Use proper length of pipe to avoid stress on gas control
manifold and a gas leak.
Gas piping must be installed in accordance with national and local
codes. Refer to current edition of NFGC in the U.S., the NSCNG-
PIC in Canada.
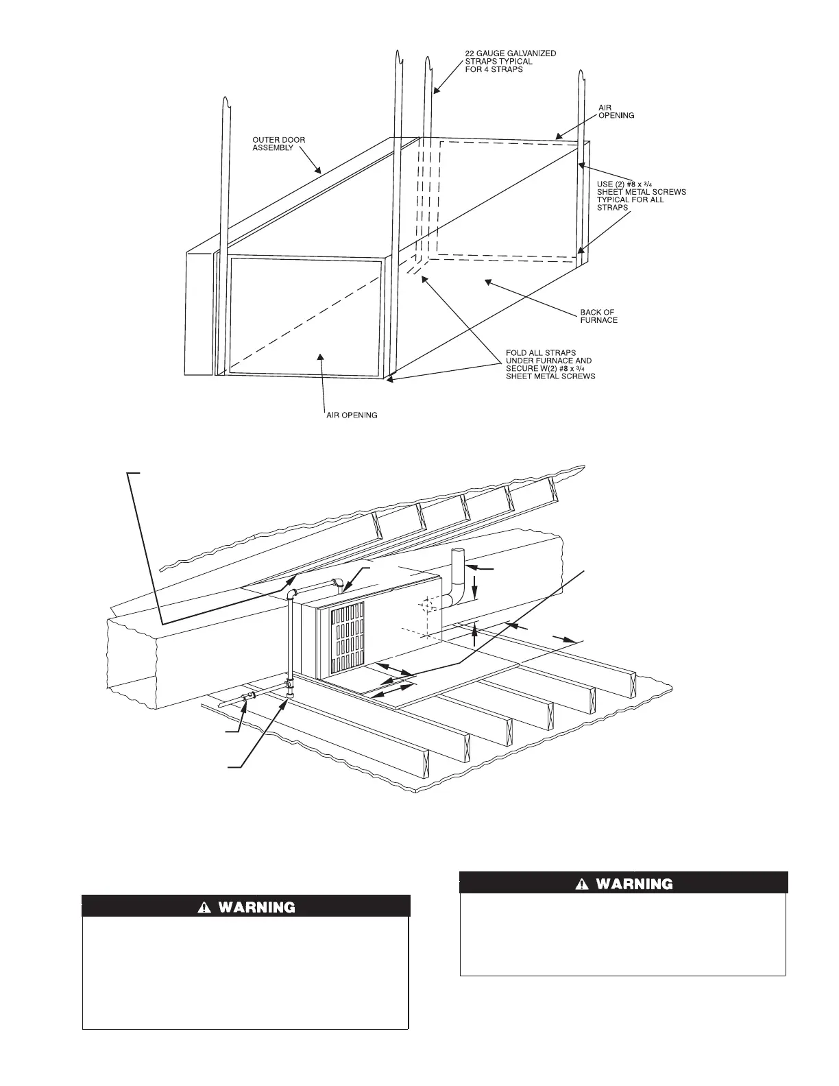
Fig. 16—Horizontal Suspension with Straps
A02014
Fig. 17—Typical Attic Installation
A02164
30-IN. MIN
WORK AREA
6
MIN*
TYPE-B
VENT
17
3
/4
22
SHEET
METAL
SEDIMENT
TRAP
MANUAL SHUTOFF
GAS VALVE
LINE CONTACT ONLY PERMISSIBLE BETWEEN
LINES FORMED BY INTERSECTIONS OF
THE TOP AND TWO SIDES OF THE FURNACE
JACKET AND BUILDING JOISTS,
STUDS, OR FRAMING.
GAS
ENTRY
17
3
/4
OVER ALL
4
3
/4
UNDER DOOR
1 UNDER FURNACE
EXTEND OUT 12OUT
FROM FACE OF DOOR
* WHEN USED WITH
SINGLE WALL VENT
CONNECTIONS
15

Table of Contents

Related product manuals