EasyManua.ls Logo

Carrier FB4ASF - Page 26

Carrier FB4ASF
52 pages
Print Icon
To Next Page IconTo Next Page
To Next Page IconTo Next Page
To Previous Page IconTo Previous Page
To Previous Page IconTo Previous Page
Loading...
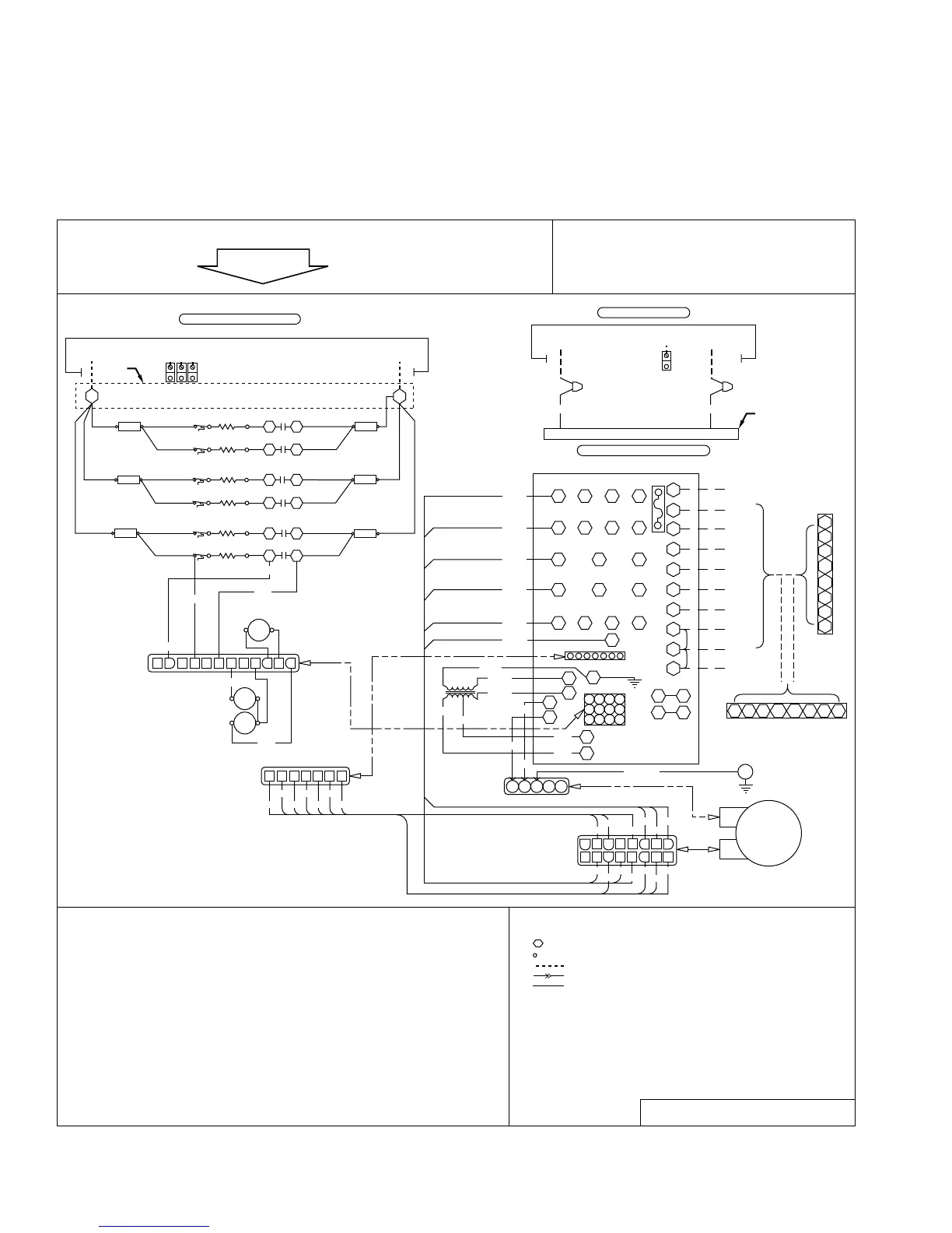
Fig. 18—FK4B Wiring Diagram
A94078
LS
ICM
TRAN
GND
FU
RECP
CB
F
SEE RATING PLATE
FOR VOLTS & HERTZ
(SEE NOTE 1)
FIELD POWER WIRING
YEL
GND
30KW 1PH SCHEMATIC DIAGRAM
DISCONNECT PER NEC
THIS COMPARTMENT MUST BE CLOSED EXCEPT FOR SERVICING
NOT SUITABLE FOR USE ON SYSTEMS
EXCEEDING 150V TO GROUND
CAUTION:
ATTENTION:
NE CONVIENT PAS AUX INSTALLATIONS
DE PLUS DE 150 V A LA TERRE
BLOWER MOTOR
ROTATION
HVTB
SEQ 3
CB/FU4
FU6
YEL
YEL
YEL
L1
12 11
BLK
BLK
FU5
8
7
CB/FU2
CB/FU1
YEL
YEL
43
BLK
BLK
10 9
BLKBLK
SEQ 2
65
YEL
21
BLK
CB/FU3
L2
HTR6
HTR5
HTR4
HTR3
HTR2
HTR1
LS6
LS5
LS4
LS3
LS2
LS1
BLK
SEQ 1
YEL
YEL
BLK
BLK
BLK
BLK
BLK
BLK
BLK
BLU
BLK
YEL
BLU
PLUG 1
RED
GRY
BRN
BRN
SEQ1
SEQ2
SEQ3
ORN
VIO
123456789101112
24567
FIELD POWER WIRING
DISCONNECT PER NEC
SCHEMATIC DIAGRAM
SEE RATING PLATE
FOR VOLTS & HERTZ
(SEE NOTE 1)
YEL BLK
9
7
GND
COOLING CONTROL WIRING
COOLING CONTROL ONLY
AUX HEAT RANGE
AC/HP SIZE
TYPE
A–C HP–COMFORT HP–EFF
AC/HP CFM TRIM
AC/HP DELAY ON/OFF
0/30 30/30 30/30 0/0
7
RECP 2
1
TRAN
COMMON
BRN
RED
BLK
RED
GRY
BLK
ORN
BLU
VIO
1
2
3
4
5
6
7
8
9
10
11
12
RECP 1
RED
BLU
RED
M1
M2
T1
SEC2
SEC1
T2
T3
PCB
PLUG
24VAC
LVTB
JW2
JW1
L
R
C
O
G
E
W
2
W
3
GRN/YEL
YEL
BLK
54321
PLUG 3
PLUG 4
YEL
RECP 3
RECP 4
ICM
BRN
YEL
RED
VIO
RED
ORN
BRN
VIO
ORN
GRY
BLU
BLK
BLK
1
9
2
10
3
11
4
12
5
13
6
14
7
15
8
16
PLUG 2
BLK
YEL ORN GRN
RED BRN VIO
(SEE NOTE 3)
(SEE NOTE 2)
HPTB
E
Y
1
Y
0
W
2
O
L
R
NOTES:
1. Use copper wire only between disconnect switch and unit.
2. Connect (Y) to (Y), (C) to (C), etc. in pattern shown.
3. Transformer primary leads: BLUE 208V, RED 230V.
4. To be wired in accordandce with NEC and local codes.
5. If any of the original wire, as supplied, must be replaced, use the same or
 equivalent type wire. 
6. Replace low voltage fuse with no greater than 5 amp fuse. 
7. Fuse is wired in series between transformer SEC2 and low voltage "R" circuit. 
8. 20KW heater uses one double pole LS on middle top element.
9. 18, 24 and 30KW heaters use double pole limit switches.
10. Largest heaters are shown, smaller heaters will have fewer elements and
components.
11. 1 phase heaters are shown wired for single supply circuit. Multiple
supply circuits may be wired directly to fuse/C.B.'S.
- LEGEND -
MARKED TERMINAL
UNMARKED TERMINAL
FIELD POWER WIRING
PLUG AND RECEPTACLE
PCB BREAKOFF JUMPER
AUXILIARY
PRINTED CIRCUIT BOARD
HEAT PUMP TERM BRD
LOW VOLT TERM BRD
SEQUENCER
HEATER
HIGH VOLTAGE TERMINAL BOX
HUMIDIFIER
AUX
PCB
HPTB
LVTB
SEQ
HTR
HVTB
HUM
320486 - 301 REV. C
LIMIT SWITCH
FAN MOTOR
TRANSFORMER
EQUIPMENT GROUND
FUSE
RECEPTACLE
CIRCUIT BREAKER
LOW VOLTAGE FUSE
BLU
EY
1
Y
0
W
2
OLRY
Y
INDOOR THERMOSTAT
13
F
LO
MED HI
Y1
AUX1 HUM1
AUX2 HUM2
26

Table of Contents

Related product manuals