EasyManua.ls Logo

Carrier FV4ANF - Description of Electric Heater Components

Carrier FV4ANF
52 pages
Print Icon
To Next Page IconTo Next Page
To Next Page IconTo Next Page
To Previous Page IconTo Previous Page
To Previous Page IconTo Previous Page
Loading...
Step 1—Description of Electric Heater
Components
LIMIT SWITCH
The limit switch is a temperature-sensitive control whose function
is to prevent system from overheating in abnormal conditions. The
temperature settings often vary from heater to heater due to
variations in airflow patterns and element radiant heat conditions.
The devices are sized to remain on-line under heat pump condi-
tions (115°F air off coil) and minimum CFM, but trip to prevent
outlet air conditions above 200°F or excessive component or duct
temperatures.
The device itself consists of a bimetallic disc, which when
overheated "snaps through" to open a normally-closed high-
voltage, high-current switch. When system temperatures cool
sufficiently, the switch will automatically reset to its closed
position. Normal failure mode for this switch is open.
If a limit switch has been determined to be defective, NEVER
BYPASS THE LIMIT SWITCH. When replacing limit switch,
ensure that it is replaced with a limit switch of identical opening
temperature and closing differential. Limits switches are typically
color coded to identify their range.
KFA AND KFB SEQUENCER
The sequencer is essentially a thermally activated time-delay relay
normally activated by low-voltage control signals from thermostat.
The typical sequencer is a 1- or 2-pole normally-open device
which energizes within 10 to 30 sec after application of control
signal and de-energizes 60 to 90 sec after control signal is
removed.
In simplistic terms, the sequencers which we use are nothing more
than normally-open limit switches which sit on top of a small
resistive heater. When voltage is applied to this heater, a positive
temperature coefficient resistor (PTC), heat is supplied to a
bimetallic disc which "snaps through" and closes switch.
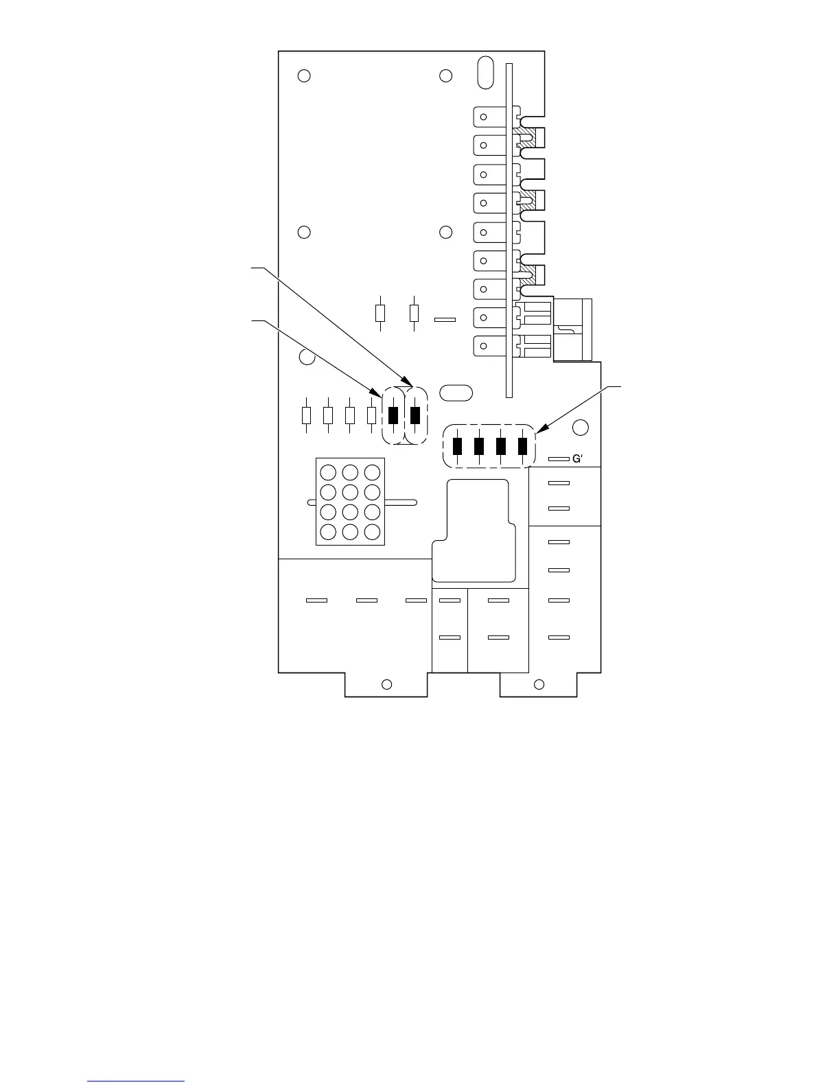
Fig. 14—Control Board Noting Diodes
A97033
123
456
789
101112
2FC-1
AUX1
AUX2
DUMMY
DUMMY
DUMMY
COMMON
COMMON
240 VAC 240 VAC
TRANSFORMER
AC LINE
RELAY
24VDC
FAN
EAC2L2T3T2T1
EAC1L1
F4
F3
F2
F1
C
HK61GA001A
W2-3W2-E
5 AMP
FUSE
MAX
FAN
TDB
BLOWN
DIODE
(c)
BLOWN
DIODE
(a)
BLOWN
DIODE
(b)
19

Table of Contents

Related product manuals