EasyManua.ls Logo

Carrier FV4ANF - Page 34

Carrier FV4ANF
52 pages
Print Icon
To Next Page IconTo Next Page
To Next Page IconTo Next Page
To Previous Page IconTo Previous Page
To Previous Page IconTo Previous Page
Loading...
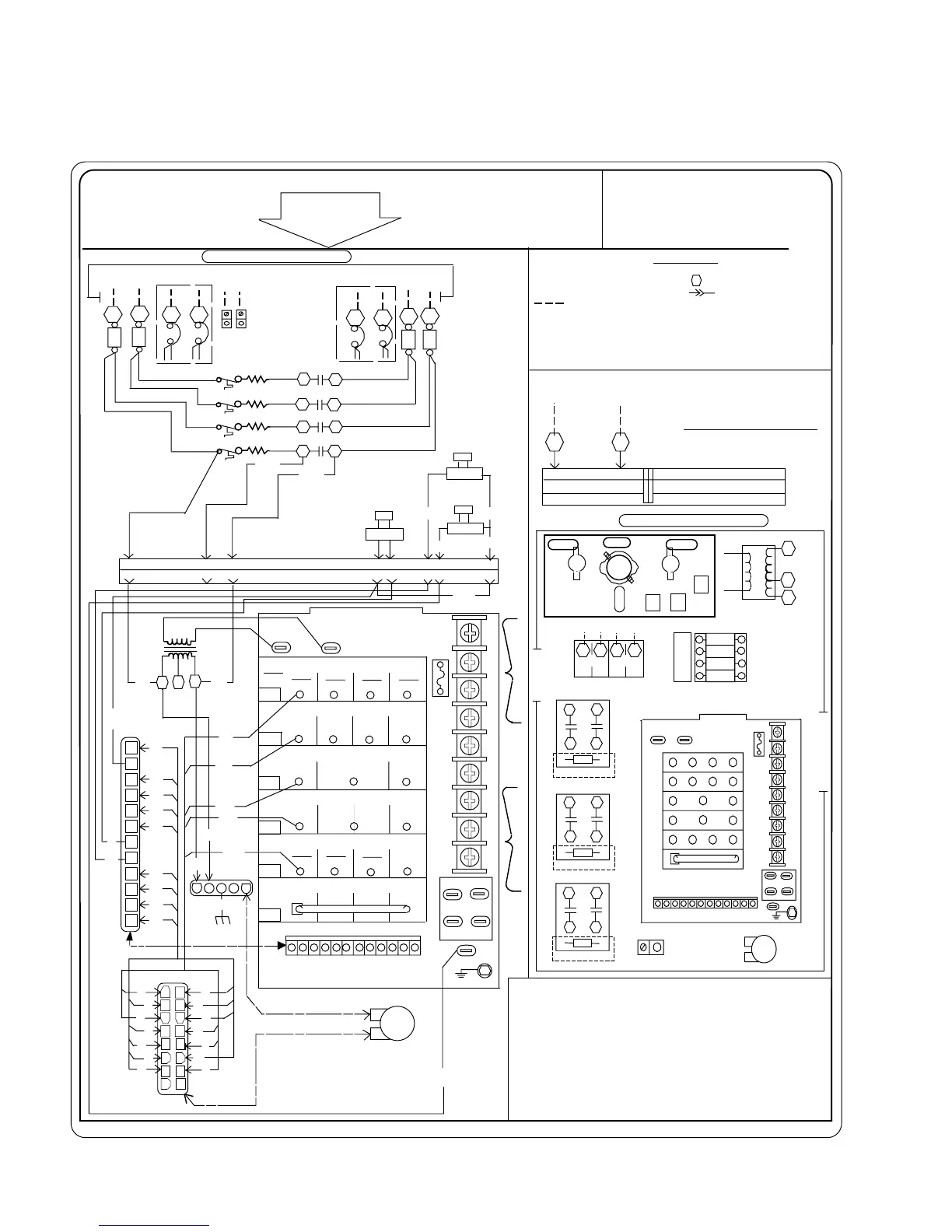
Fig. 26—FK4C, FV4A, and 40FKA Wiring Diagram
A99122E
COM
208 V
230 V
TRAN
RED
24 V
BRN
SYSTEM TRANSFORMER: 40.0VA
FAN COIL/HEATER: 11.8VA
REMAINING VA AVAILABLE: 28.2VA
FU3
FU1
FU4
FU2
L3
L1
L4
L2
324983-101 REV. A
L4 L3
CB1
60A 60A
L2 L1
CB2
60A 60A
NOTES:
4
4
6
1
16
9
9
THIS COMPARTMENT MUST BE CLOSED EXCEPT FOR SERVICING
CAUTION:
ATTENTION:
NOT SUITABLE FOR USE ON SYSTEMS EXCEEDING
150V TO GROUND
NE CONVIENT PAS AUX INSTALLATIONS DE PLUS
DE 150 V A LA TERRE
BLOWER MOTOR
ROTATION
7
11
7
11
3
2
23
FIELD POWER WIRING DISCONNECT PER NEC
SEE RATING PLATE
FOR VOLTS & HERTZ
GND
L4 L2
L1
L3
HTR4
BLK
4
YEL
LS4
YEL
2
BLK
HTR3
BLK
8
LS3
6
RELAY 2
BLK
HTR2
BLK
4
YEL
LS2
YEL
2
YEL
BLK
HTR1
BLK
4
LS1
2
RELAY 1
BLK
YEL
FU4
FU2
L2
CB1
L4
CB2
FU1
FU3
L3
CB1
L1
CB2
INTERNAL PROTECTION MAY
BE EITHER FUSES OR CIRCUIT
BREAKERS
PLUG 2
SEE NOTE #1
20KW 1PH SCHEMATIC DIAGRAM
VIO
ORN
BLU
BLK
BLK
R E C
RELAY 1
22 VDC COIL
BLU
RELAY 3
RELAY 2
RELAY 3
22 VDC COIL
R E C
RELAY 2
22 VDC COIL
T D R
BRN
BRN
GRY
RED
YEL
TRAN
SEC2SEC1
RED
BRN
AUX HEAT KW/CFM
VIO
KW
CFM
0-30
1075
0-20
1525
0-10
1350
0-5
1050
AC/HP SIZE
BLU
060 048 042 036
SYSTEM TYPE
ORN
AC HP-COMFORT HP-EFF
AC/HP CFM ADJUST
BLK
NOM
LO
HI
ON/OFF DELAY
WHT
0
90
30
90
0
0
HI
YEL
LO MED HI YEL
PL1
HEATER / MOTOR
CONTINUOUS FAN
F1
24 VAC
AUX 2
HUM2
AUX1 HUM1
GRY
VIO
BLU
ORN
BLK
WHT
PLUG 3
230V
208V
Com
YEL
BLK
BLK
YEL
ICM
RECP 4
RECP 3
GRY
1
BRN
12
11
10
9
8
7
6
5
4
3
2
1
5 4 3 2 1
GRN
YEL
BL K
WH
T
RED
VIO
VIO
R
E
D
BRN
OR
N
BRN
PLUG 1
G
R
Y
16 15 14
13
12
11 10 9
8
7
5
4
3
21
PLUG 4
6
BLK
BLK
BLU
WHT
ORN
VIO
BRN
GRN
YEL
WHT
RED
VIO
GRY
ORN
PCB
GRN/YEL
GND
OUTDOOR UNITINDOOR THERMOSTAT
H
2
2
Y/Y
D
R
W
1
W
Y
1
G
O
C
RECP 2
1. USE COPPER WIRE (75˚C MIN) ONLY BETWEEN DISCONNECT
SWITCH AND UNIT.
2. TO BE WIRED IN ACCORDANCE WITH NEC AND LOCAL CODES.
3. TRANSFORMER PRIMARY LEADS, BLUE 208V, RED 230V.
4. IF ANY OF THE ORIGINAL WIRE, AS SUPPLIED, MUST BE REPLACED, USE
THE SAME OR EQUIVALENT TYPE WIRE.
5. REPLACE LOW VOLTAGE FUSE WITH NO GREATER THAN 5 AMP FUSE.
6. DUAL CIRCUIT WIRING SHOWN.
7. USE 60 AMP CLASS K FUSES ONLY, FOR REPLACEMENT.
8. CONNECT R TO R, G TO G, ETC. SEE OUTDOOR INSTRUCTION FOR
DETAILS.
GND
ICM
H
2
2
Y/Y
D
R
W
1
W
Y
1
G
O
C
F1
PCB
SEC2SEC1
PL1
HEATER / MOTOR
RELAY 1
RELAY 2
REC
TDR
RELAY 3
REC
8
6
4
2
10
8
6
4
2
10
8
6
4
2
1
0
HTR1
HTR3
HTR2
HTR4
LS1
LS2
LS 3
&
4
R1
R2
R3
COMPONENT ARRANGEMENT
9
11
7
3
16
4
208/240VAC 24VAC
24VAC
PLUG 2
23
16
4
9117
L1 L2
FIELD POWER WIRING
FIELD
POWER
WIRING
BLK
YEL
RECP 2
COOLING CONTROL ONLY
2
COM
F1
ICM
FU
GND
HVTB
HTR
REC
COMMON
LOW VOLTAGE FUSE
FAN MOTOR
FIELD POWER WIRING
LINE FUSE
EQUIPMENT GROUND
HIGH VOLTAGE TERM BLOCK
HEATER
RECTIFIER
LS
PCB
TRAN
RECP
CB
R
TDR
LEGEND
LIMIT SWITCH
MARKED TERMINAL
PLUG AND RECEPTACLE
PRINTED CIRCUIT BOARD
TRANSFORMER
RECEPTACLE
CIRCUIT BREAKER
RELAY
TIME DELAY RECTIFIER
34

Table of Contents

Related product manuals